4 Bedroom House
£695,000
Beacon Drive, Selsey, PO20

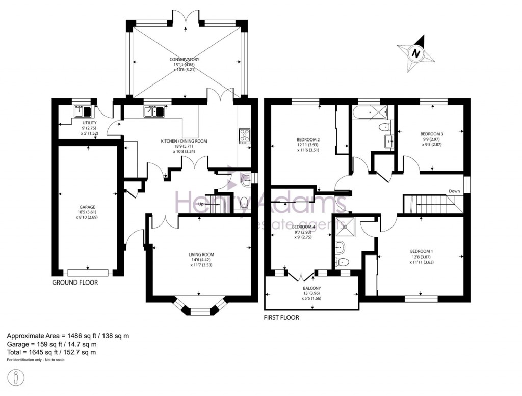
Floorplans For Beacon Drive, Selsey, PO20

Description


This beautifully presented sea fronted detached home offers the opportunity to acquire a family home or 'bolt hole' with panoramic sea views from all front facing rooms and the balcony. The accommodation is thoughtfully arranged, featuring four well-proportioned bedrooms (three of which benefit from built-in wardrobes), providing ample storage for family living. The living room is positioned to make the most of the seascape, while the kitchen breakfast room is both practical and inviting, complemented by a separate utility room for added convenience. A conservatory extends from the rear of the property, creating a light-filled space that seamlessly connects the indoors with the outdoors. The property is offered with no onward chain, making it an ideal choice for those seeking a smooth and swift move.

The outside space has been designed with ease of maintenance and versatility in mind. The front of the property is laid to block paving, providing ample off-road parking and the flexibility to accommodate additional vehicles if required. The rear garden features a patio seating area and a matching path that extends around the conservatory, perfect for enjoying the coastal air or entertaining guests. The remainder of the garden has been thoughtfully landscaped for low maintenance, with a shaped area of artificial grass and shingle or stone covered edges, ensuring it can be enjoyed throughout the year without the need for extensive upkeep. The garage is accessed via an electrically operated door and benefits from both light and power, providing secure storage or additional parking as needed. This property combines stunning views, practical features, and attractive outside space, making it a truly desirable coastal home.

Reference: 9a55e776-6a97-4cfa-a3cd-b0d20ea2f658

Request a viewing for this property

Simply fill out the form below or alternatively call us on 020 7839 0888

* Mandatory fields