2 Bedroom Flat
£225,000
High Street, Selsey, PO20

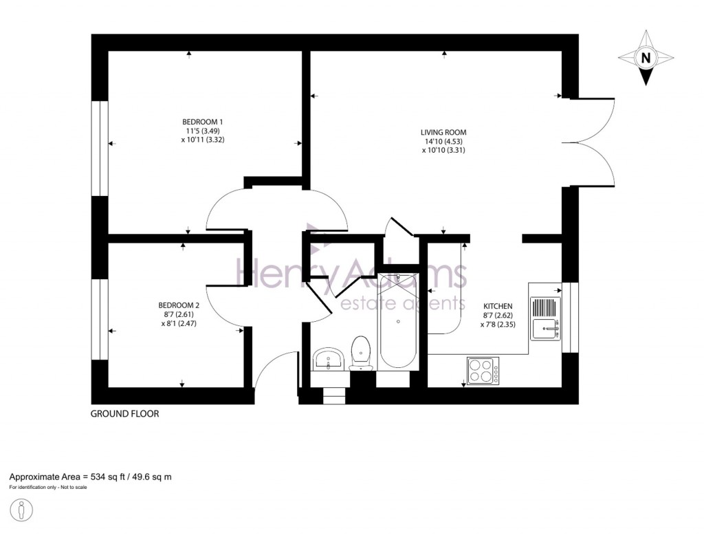
Floorplans For High Street, Selsey, PO20

Description


This beautifully presented ground floor garden flat offers a superb opportunity for those seeking comfortable and convenient living in a desirable location. The property benefits from a share of freehold, providing added security and peace of mind for the new owner.

Inside, you will find two generously sized double bedrooms, ideal for professionals, couples, or small families. The spacious living room is perfect for relaxing or entertaining guests, while the modern kitchen features ample storage and worktop space. The flat is situated just a short stroll from local amenities and the vibrant high street, ensuring easy access to shops, cafes, and transport links. Additional features include an allocated parking space (providing hassle-free parking at all times) and electic heating for year-round comfort.

With its combination of size, style, and location, this property is well suited to a range of buyers looking to enjoy the best of urban living. Early viewing is highly recommended to fully appreciate all that this charming property has to offer.

Reference: 9a55e764-65f1-427b-8a8b-dbeda58e6ebf

Request a viewing for this property

Simply fill out the form below or alternatively call us on 020 7839 0888

* Mandatory fields