2 Bedroom Flat
£150,000
High Street, Selsey, PO20

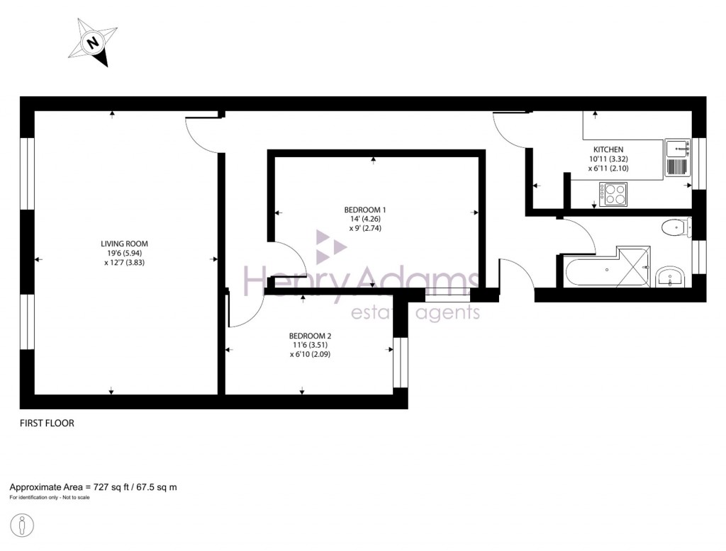
Floorplans For High Street, Selsey, PO20

Description


This two bedroom first floor flat is ideally situated on the High Street, offering convenient access to local amenities and a nearby bus stop. The property features a spacious living room that provides ample space for relaxation and entertaining. The kitchen is well laid out, offering plenty of room for meal preparation and storage. Both bedrooms are generously sized, with large windows that allow for plenty of natural light.

Outside, the property benefits from an exclusive space located at the top of the external entrance area. This area is perfect for enjoying a morning coffee, setting up a small seating area, or adding potted plants for a touch of greenery. There is a communal car park where you can park on a ‘first come, first serve’ basis. The location on the High Street means you are just steps away from shops, cafes, and public transport links, making this flat ideal for those seeking a blend of comfort and convenience. Whether you are a first-time buyer, downsizer, or investor, this property offers a fantastic opportunity to enjoy modern living in a vibrant setting. Early viewing is highly recommended.

Reference: 9a55e756-b3b3-474c-87bc-78630c7a7a20

Request a viewing for this property

Simply fill out the form below or alternatively call us on 020 7839 0888

* Mandatory fields