3 Bedroom House
£399,000
Riverside, Storrington, RH20

Floorplans For Riverside, Storrington, RH20

Description


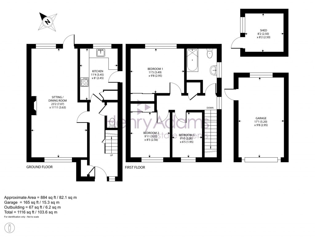
This well appointed three bedroom semi detached house is ideally situated within close proximity to the village centre, offering easy access to a range of local amenities including shops, schools and public transport links. The property features a spacious sitting room with attractive parquet flooring, a serving hatch to the kitchen and direct access to the rear garden, creating a welcoming space for both relaxation and entertaining. The kitchen, which benefits from a gas hob, electric oven and space for additional appliances, also provides convenient access to the side of the property. A ground floor cloakroom adds further practicality.

Upstairs, there are three well proportioned bedrooms and a family bathroom, making the home suitable for families or those seeking extra space for guests or a home office. Additional benefits include solar panels and a recently installed boiler, offering improved energy efficiency and lower running costs. The property is offered with no forward chain, providing an excellent opportunity for a swift and straightforward purchase.

Externally, the property enjoys a single garage and driveway parking, ensuring ample space for vehicles. The rear garden is raised, providing a pleasant setting for outdoor dining or gardening. The garden is accessible directly from the sitting room, making it ideal for entertaining or enjoying quiet moments in the sunshine. Mature planting and fencing offer a degree of privacy, while the layout provides scope for further landscaping to suit individual tastes. The side access from the kitchen is particularly useful for bringing in groceries or accessing the garden without passing through the main living areas. This property combines a convenient location with well planned outside space, making it an appealing choice for those seeking a comfortable home with practical features in a sought after village setting.

Reference: 9a55e5de-bd5b-4b73-a6c8-6b8d103eb0a8

Request a viewing for this property

Simply fill out the form below or alternatively call us on 020 7839 0888

* Mandatory fields