2 Bedroom House
£410,000
Sandrock, Haslemere, GU27

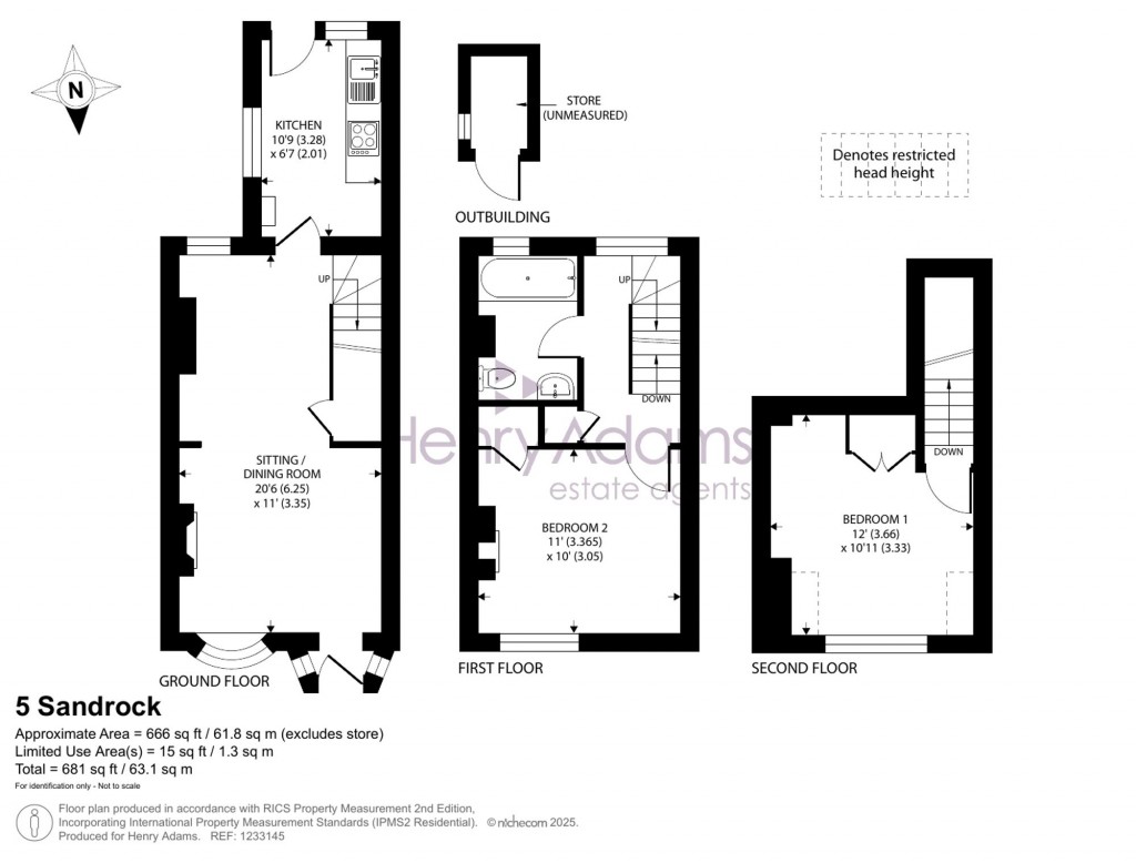
Floorplans For Sandrock, Haslemere, GU27

Description


This well presented terraced home is situated in a small no through lane forming a picturesque backwater of pretty cottages overlooking protected woodland to the front.

The cottage we understand was built in circa 1870 and now provides character accommodation over three floors. The sitting and dining room are open plan enjoying the outlook to the woodland in the front and the garden to the rear, the sitting room has a feature fireplace with brick surround. Both areas have exposed brick flooring. The kitchen is to the rear and has a lovely sunny aspect. On the first floor a double bedroom and bathroom will be found with a further double bedroom on the top floor. The gardens are a delightful feature divided into separate areas and are well-established.

Leasehold – Term: 1000 years from 25th March 1605

Mains: Gas, electric, water and drainage

Council Tax Band: D (£2,345.35)

SATNAV: GU27 2PS what3words: shampoos.taken.defends

EPC RATING: D

NB: There is a residents pedestrian right of way through the rear garden, with gates through the neighbouring gardens (As common in many period terraced homes).

Follow us for early alerts on Instagram at: @haslemerepropertyclub

Henry Adams

Henry Adams

Georgian Court
High Street
Haslemere
Surrey
GU27 2LA

+44 (0)1428 644002

Reference: 9a55e53b-1e63-4e3f-8f8a-93a3210f1ccc

Request a viewing for this property

Simply fill out the form below or alternatively call us on 020 7839 0888

* Mandatory fields