4 Bedroom House
£525,000
Selsey Road, Sidlesham, PO20

Floorplans For Selsey Road, Sidlesham, PO20

Description


A spacious semi-detached house standing in over a third of an acre of mature garden.

This attractive four-bedroom semi-detached Edwardian home retains a wealth of original character features, including internal doors, picture rails, while benefiting from modern conveniences such as gas-fired central heating, mains drainage and uPVC double glazed sash windows.

Set in approximately just over one-third of an acre, the property enjoys a mature, parkland-style rear garden backing onto open fields and screened by established trees, offering a high degree of privacy.

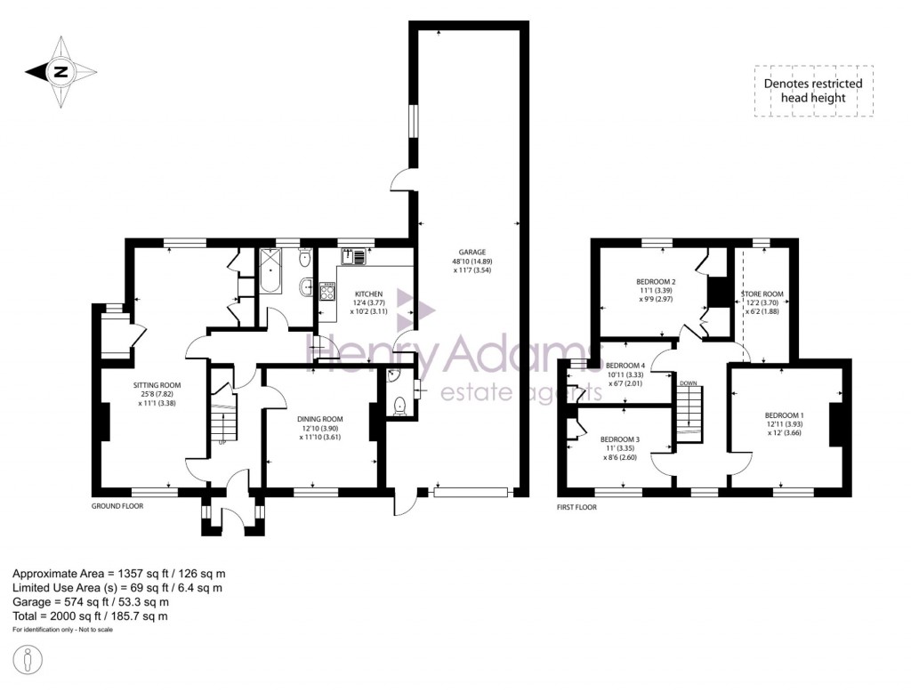
The ground floor comprises a welcoming porch and entrance hall, an extended sitting room arranged as two informal seating areas, a separate dining room, a kitchen, and a ground-floor bathroom.

Upstairs, there are four well-proportioned bedrooms, along with a door leading to a spacious store room with further potential.

Externally, the front garden is enclosed by a low wall and provides a driveway with additional hardstanding/turning space. An attached garage/workshop extends to approximately 48’10” in length and includes a cloakroom to one side.

The rear garden is a standout feature, offering expansive lawns and a variety of mature trees, creating a delightful outdoor setting.

Chichester District Council - 26/27 Tax Band D £2,474.28 EPC-E

Directions - From Chichester proceed south on the B2145 Selsey Road. Pass through the village of Hunston and on to Sidlesham. On entering Sidlesham, pass the Sidlesham Memorial Recreation Ground and Keynor Lane (signposted to Sidlesham CP School) on your right and Westway is a short distance along on the left. What3words - cuddling.soft.hologram

Reference: 998567bd-6a53-4f3e-a5be-dce85374e0cf

Request a viewing for this property

Simply fill out the form below or alternatively call us on 020 7839 0888

* Mandatory fields