3 Bedroom House
£475,000
Kenilworth Place, Billingshurst, RH14

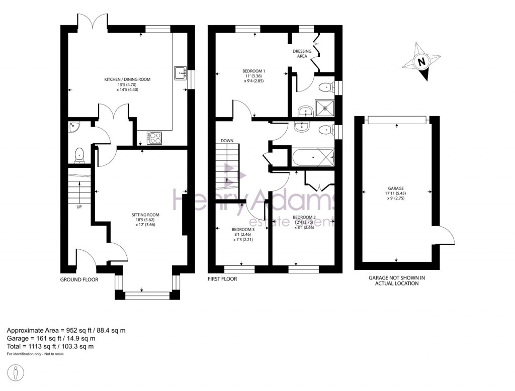
Floorplans For Kenilworth Place, Billingshurst, RH14

Description


This beautifully presented three bedroom semi detached house offers an exceptional opportunity to enjoy contemporary living within easy reach of village amenities and just a short walk from Billingshurst main line station, providing direct links to London and the South Coast.

The welcoming entrance hall leads to a spacious sitting room, featuring a charming bay window and a stylish gas fire, creating a perfect space for relaxing or entertaining guests. The modern kitchen and dining room is thoughtfully designed with French doors (opening to the garden), ample space for a washing machine and dishwasher, and integrated fridge and freezer, making it ideal for family meals or social gatherings. A convenient ground floor cloakroom adds to the practical layout of the home. Upstairs, the main bedroom benefits from a dressing area and a contemporary en-suite shower room, offering a private retreat. The second bedroom is a well-proportioned double, while the third bedroom provides flexibility as a single room or an ideal home office for those working remotely. The family bathroom serving the additional bedrooms. Additional features include gas central heating, double glazing, and a neutral, tasteful décor throughout, ensuring the property is ready to move into.

The enclosed rear south facing garden has large patio area ideal for entertaining and the property also has a garage and driveway parking for two vehicles, providing secure and convenient storage and parking solutions. This attractive home combines comfort, style, and convenience, making it an excellent choice for families, professionals, or anyone seeking a well-appointed property in a desirable location. Early viewing is highly recommended to appreciate all that this superb home has to offer.

Reference: 991a04d1-415d-4d44-bf70-56c39fa25558

Request a viewing for this property

Simply fill out the form below or alternatively call us on 020 7839 0888

* Mandatory fields