£395,000
Debach, Nr Woodbridge, Suffolk

Floorplans For Debach, Nr Woodbridge, Suffolk Floorplans For Debach, Nr Woodbridge, Suffolk Floorplans For Debach, Nr Woodbridge, Suffolk Floorplans For Debach, Nr Woodbridge, Suffolk

Description


Outline Planning Permission was granted by East Suffolk Council on 14th June 2023 for the construction of three detached houses with a new shared access, on a site that extends to approximately 0.71 acres (0.29 ha) in all.  
Approval of Reserved Matters was granted on 2nd August 2024.

Location
The site will be found on the northern edge of the popular rural village of Debach.  Debach is well placed for access to Wickham Market (5 miles), Framlingham (8 miles) and Woodbridge (5 miles). Woodbridge, a market town of some considerable character on the west bank of the River Deben, has extensive facilities including an array of independent and multiple shops, schools for students of all ages in the state and independent sectors and a railway station with some direct services running to London's Liverpool Street station. Further rail connections to both London and Norwich are available from Ipswich, Suffolk's County town, which has a population of some 130,000 and provides all the services and facilities one would expect from a town of this size. There are good sporting opportunities in the surrounding district and sailing can be enjoyed on the tidal rivers, Deben, Alde and Orwell or at sea. The picturesque Suffolk countryside also provides many attractive walks. 

Directions
Travelling in a westerly direction from Wickham Market on the B1078, continue through the village of Charsfield.  Before entering Clopton turn left where signposted to Debach, Bredfield and Woodbridge.  Continue along this road for approximately half a mile and the site will be found on the right hand side. 

For those using the What3Words app:  ///spearing.spreading.increases

Description
Outline Planning Permission was granted by East Suffolk Council on 14th June 2023 for the erection of three 3 bedroom detached dwellings with associated landscaping together with works to improve the existing access arrangement off Woodbridge Road - Reference DC/22/4835/OUT.  This was followed by approval of Reserved Matters ,which was granted by East Suffolk Council on 2nd August 2024 - Reference DC/23/3802/ARM.

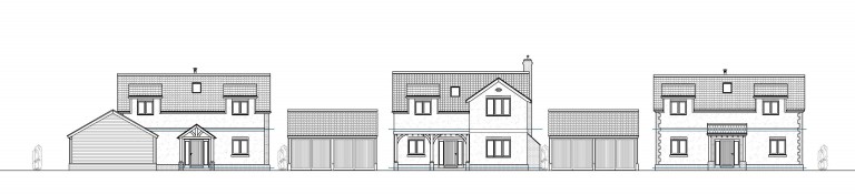
The three proposed dwellings are very similar in design with each extending to approximately 1,700 sq ft (155 sqm).  A general summary of the accommodation comprises an entrance hall, sitting room, open plan kitchen and dining room, study, utility room, pantry and WC on the ground floor.  On the first floor each property will offer bedrooms - a principal bedroom with en-suite shower room, two further bedrooms and a bathroom.  

Outside the properties will benefit from detached double garages and accessed via a shared driveway arrangement that will lead from the existing access, and which is to be retained by the vendors.  Each property will benefit from generous gardens at the rear, which will face in a south-westerly direction and therefore enjoy the sun during the second half of the day and into the evening. 

Accommodation

Plot 1    Approx GIA 1,668 sq ft - 155 sqm
Plot 2    Approx GIA 1,690 sq ft - 157 sqm
Plot 3    Approx GIA 1,700 sq ft - 158 sqm

CIL
The planning permission is subject to the local planning authority’s Community Infrastructure Levy (CIL) and a CIL Liability Notice was subsequently issued dated 13th September 2024 confirming that the amount of CIL payable is £122,935.54 - Reference LN00006559 - although we understand that this amount is subject to indexation.  Any detailed enquiries relating to CIL should be referred to the local planning authority, East Suffolk Council.  

Proposed Terms of Sale
The extent of the site being offered for sale is as per the indicative plans included within these particulars with the area to be sold edged red.  The vendors will also include an obligation within the sale contract for the purchaser to fence the boundaries marked A-B-C-D to a minimum standard of post and two rail design to include rabbit proof fencing.

The parcel of land to the north-west of the development site, hatched green, will be retained by the vendors, but available by separate negotiation if required for £25,000.  It should be noted that that land will be sold with a covenant restricting the use to garden/amenity land only.

The existing access from the public highway will be retained by the vendors, but a right of way will be granted in favour of the development site, for all purposes.  The purchaser will be obliged to improve the existing access as required by the Highway Authority and planning permission. 

The purchaser of the site and any future owners of the completed development will be obliged to contribute 75% towards the maintenance and upkeep of the existing access way, although the vendor will not be obliged to maintain that accessway to any better standard than an agricultural track down to hardstanding.  

It should also be noted that land drains currently cross the site.  Two of these will be re-routed but the third will remain in situ, and a suitable easement will be included within the sale contract for this to be retained and drain into the ditch running along the north-eastern boundary.

The vendors have applied for planning permission for two bungalows to the north of the access track which has been refused - Reference DC/24/0425/FUL.  This refusal is being appealed.  If the appeal is allowed, and that site is subsequently sold, the maintenance obligations of the existing access will be revised to allow for any additional dwellings. 

Services  
We understand that an overhead electricity supply currently crosses the land, and we assume a supply can be taken from this location, although we have not undertaken investigations in this regard.  We further understand that a mains water supply is available in the road, although again we have not carried out any detailed investigations in this regard.   We envisage that drainage will be to private treatment plants.   Notwithstanding the above, prospective purchasers should satisfy themselves with regard to the location and capacity of any services.

Architects
Acorus Rural Property Services Limited, The Old Market Office, 10 Risbygate Street, Bury St Edmunds, IP33 3AA; Tel: 01284 753271  Email: enquiries@rogerbalmerdesign.co.uk.  

Local Authority 
East Suffolk Council; East Suffolk House, Station Road, Melton, Woodbridge, Suffolk IP12 1RT; Tel: 0333 016 2000 

Viewing  
By prior appointment with the selling agents and thereafter with particulars in hand. 

NOTES

1.  Every care has been taken with the preparation of these particulars, but complete accuracy cannot be guaranteed.  If there is any point, which  is of particular importance to you, please obtain professional confirmation. Alternatively, we will be pleased to check the information for you.  These Particulars do not constitute a contract or part of a contract.  All measurements quoted are approximate.  The Fixtures, Fittings & Appliances have not been tested and therefore no guarantee can be given that they are in working order.  Photographs are reproduced for general information and it cannot be inferred that any item shown is included.  No guarantee can be given that any planning permission or listed building consent or building regulations have been applied for or approved. The agents have not been made aware of any covenants or restrictions that may impact the property, unless stated otherwise.  Any site plans used in the particulars are indicative only and buyers should rely on the Land Registry/transfer plan. 

2.  The Money Laundering, Terrorist Financing and Transfer of Funds (Information on the Payer) Regulations 2017 require all Estate Agents to obtain sellers’ and buyers’ identity.

Updated July 2025

Reference: 967431

Request a viewing for this property

Simply fill out the form below or alternatively call us on 020 7839 0888

* Mandatory fields