6 Bedroom Block of Flats
£180,000
Halesworth, Suffolk

Floorplans For Halesworth, Suffolk Floorplans For Halesworth, Suffolk

Description


A residential holding comprising the freehold of four flats across two blocks with two let on Assured Shorthold Tenancies and two sold off on long-leasehold interests. 

Currently producing £14,940 per annum from two ASTs. 

Ideal residential investment opportunity

Location

The property is located just a short walk to the east of the centre of the desirable market town of Halesworth. The town is probably best know for its busy high street, including independent shops, cafés, pubs and restaurants. It also has a supermarket, post office, primary school, pharmacy, library and train station, which provides services via Ipswich to London's Liverpool Street station. To the east of Halesworth lies the Heritage Coast which is renowned for its wide variety of leisure opportunities, including the well regarded seaside resort of Southwold, historic Dunwich and the RSPB sanctuary at Minsmere. 

Directions
From the town centre the agents Halesworth proceed out of the town on Saxons Way and at the roundabout take the third exit onto Quay Street. Continue for approximately ½ a mile where Albany Court will be found on the right hand side. 

For those using the What3Words app: ///crockery.jiffy.example

Description
Albany Court is complex of four flats with associated parking, gardens and garaging. The flats are split over two blocks, comprising two ground floor and two first floor flats. 

The flats are as follows:-

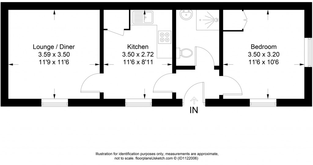
Flat 1
A two-bedroom ground floor flat of 82sqm (882sqft) with hallway, sitting room, kitchen, cloakroom, bathroom and two double bedrooms. 

Flat 2
A two-bedroom first floor flat of circa 80sqm (860sqft).

Flat 3
A one-bedroom first floor flat of circa 39sqm (419sqft).

Flat 4
A one-bedroom ground floor flat of 41sqm (441sqft) with hallway, sitting room, kitchen, shower room and bedroom. This flat is in the process of being refurbished with new kitchen and décor. 

Garage Block & Gardens
A block of four garages is located to the rear of the property with a single parking space in-front of each garage. In addition there are two communal garden areas and visitor parking to the front of the properties. 

Possession & Tenure

Flats 1 & 4 are held freehold and both let on Assured Shorthold Tenancies producing £14,940 per annum. 

Flats 2 & 3 were sold off on long-leasehold interests in 1982 on 99 year leases expiring: 2081. Ground rent, maintenance charges and insurance recharges are levied on the leaseholders. The ground rent is currently £100 per annum per flat.

Services
We understand mains water and electricity are connected to the flats with mains gas wet-radiator systems. Mains foul drainage. We have not undertaken any detailed investigations in relation to the availability and capacity of services and prospective purchasers should satisfy themselves in this regard.

EPC
Flat 1 - D(60)
Flat 4 - D(66)

Council Tax
Flat 1 - Band A. 
Flat 4 - Band A. 

Local Authority
East Suffolk Council.

Viewing                              
Strictly by appointment with Clarke and Simpson.

NOTES
1.      Every care has been taken with the preparation of these particulars, but complete accuracy cannot be guaranteed.  If there is any point, which  is of particular importance to you, please obtain professional confirmation. Alternatively, we will be pleased to check the information for you.  These Particulars do not constitute a contract or part of a contract.  All measurements quoted are approximate.  The Fixtures, Fittings & Appliances have not been tested and therefore no guarantee can be given that they are in working order.  Photographs are reproduced for general information and it cannot be inferred that any item shown is included.  No guarantee can be given that any planning permission or listed building consent or building regulations have been applied for or approved. The agents have not been made aware of any covenants or restrictions that may impact the property, unless stated otherwise.  Any site plans used in the particulars are indicative only and buyers should rely on the Land Registry/transfer plan. 

2.     The Money Laundering, Terrorist Financing and Transfer of Funds (Information on the Payer) Regulations 2017 require all Estate Agents to obtain sellers’ and buyers’ identity.

June 2025

 

Reference: 961958

Request a viewing for this property

Simply fill out the form below or alternatively call us on 020 7839 0888

* Mandatory fields