2 Bedroom House
£325,000
Green Lane, Chichester, PO19

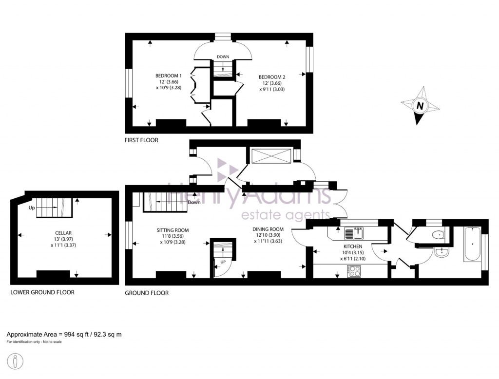
Floorplans For Green Lane, Chichester, PO19

Description


A linked detached two double bedroom house conveniently located close to the city centre.

An ideal renovation project, conveniently located just a half a mile level walk from Chichester city centre. This older-style two-double-bedroom attached house is unusually linked only by the entrance hall/side porch.

The property has remained in the same ownership for over 70 years and is offered with no onward chain.

The accommodation comprises an open-plan, dual-aspect sitting and dining room, featuring French doors opening onto the rear garden. The galley kitchen leads to a rear lobby, with a ground-floor bathroom and separate WC. To the first floor are two well-proportioned double bedrooms. There is also the benefit of a cellar accessed from the sitting room.

Outside, the property enjoys a paved forecourt front garden, enclosed by low walls and wrought-iron gates. To the rear is a long westerly-facing garden, currently a blank canvas and offering excellent potential for landscaping or extension (subject to planning).

A rare opportunity to acquire a character property in a highly convenient location with significant scope for improvement.

Chichester District Council - 25/26 Tax Band D £2,337.06 EPC-E

Directions - Proceed east out of Chichester along the The Hornet. Turn left at the Four Chesnuts public house into Oving Road and take the second left into Green Lane. Number 14 is a short distance along on the left. What3words - gums.reach.owners

Reference: 95fdf278-6c8f-4ec2-9c45-57d2efcad3f9

Request a viewing for this property

Simply fill out the form below or alternatively call us on 020 7839 0888

* Mandatory fields