2 Bedroom Bungalow
£325,000
East Street, Selsey, PO20

Floorplans For East Street, Selsey, PO20

Description


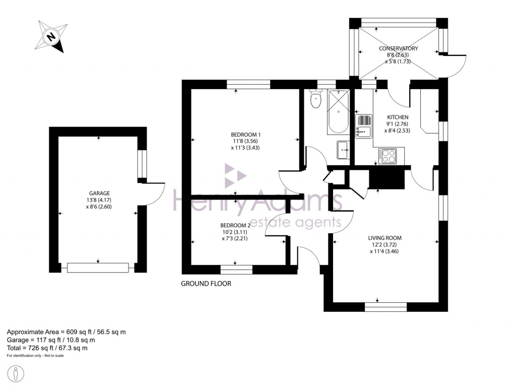
Offered to the market for the 1st time in around 20yrs is this detached bungalow, offering an excellent opportunity for buyers seeking convenience in a highly accessible location, situated just a short distance from the high street with its range of shops, cafes, and amenities. The property features two double bedrooms, both of which provide space for furnishings and storage.

The living room is perfect for relaxing or entertaining, benefitting from natural light that creates a warm and cosy atmosphere. Adjacent to the living room, there is a kitchen offering a range of fitted units and worktop space suitable for every-day meal preparation. A conservatory to the rear of the kitchen provides a versatile area that can be enjoyed, whether as a reading nook, or utility space. The bungalow also boasts a south-facing garden which wraps around onto the wester side ensuring plenty of sunlight and offering an outlook from the main living areas and conservatory. Practicality is further enhanced by the inclusion of a private driveway and a garage, which together provide off-street parking and valuable storage options. The property is offered with no onward chain, streamlining the purchase process and making it an appealing choice for those looking to move quickly. For added convenience, the bungalow is situated in close proximity to both primary & secondary schools along with being on a bus route, providing excellent transport links to surrounding areas and making it particularly suitable for those who value easy access to public transport. This property represents an ideal opportunity for downsizers, professionals, or anyone seeking single-level living close to local amenities.

Reference: 6fb10940-2ff8-4853-b045-8d0e14ed8df9

Request a viewing for this property

Simply fill out the form below or alternatively call us on 020 7839 0888

* Mandatory fields