1 Bedroom Flat
£150,000
Douglas Martin Road, Chichester, PO19

Floorplans For Douglas Martin Road, Chichester, PO19

Description


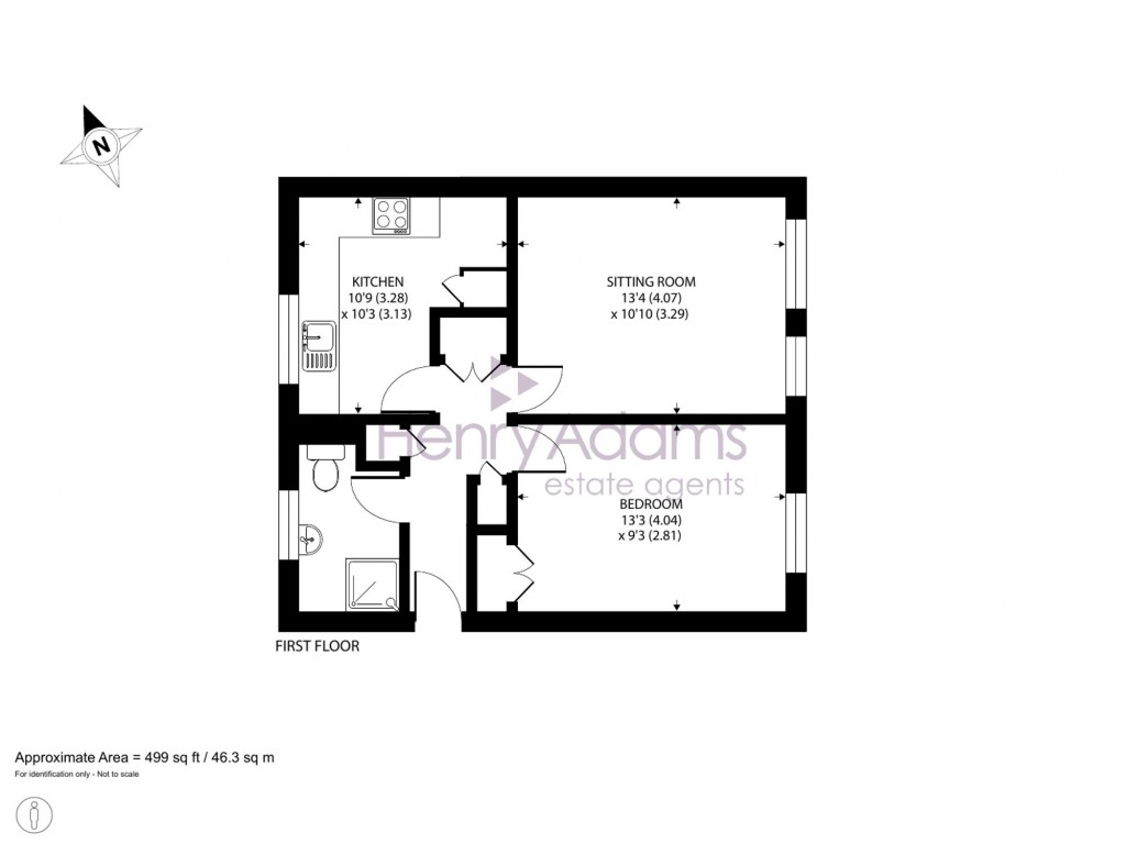
A light and airy first floor apartment, located within a purpose built block, situated near the city’s hospital and university and within an easy and level walk of Chichester’s vibrant city centre.

A private front door leading into the hallway which gives access to all the rooms. The sitting room is bright and spacious. The kitchen has a range of cupboards. There is a double bedroom with a built-in wardrobe and a shower room with white suite. There are night storage heaters and the property could benefit from some modernisation.

Outside, the property benefits from a brick built store in an adjacent block, allocated permit parking and being sold with no onward chain. Please note there is no gas to the property.

Lease: 125 years from Feb 1986

Service Charge: £1,519.54

Ground Rent: £10

Chichester District Council - 24/25 Tax Band A £1,483.40

From the top of North Street proceed in an easterly direction along Oaklands Way. At the roundabout, take the first exit into Spitalfield Lane. At the mini roundabout turn left into Douglas Martin Road and the apartment is on the left just before the mini roundabout.

what3words.com/scare.freed.preoccupied

Henry Adams

Henry Adams

Rowan House
Baffins Lane
Chichester
West Sussex
PO19 1UA

+44 (0)1243 533377

Reference: 6b3f4f89-9524-4fcb-a3a6-048323134e36

Request a viewing for this property

Simply fill out the form below or alternatively call us on 020 7839 0888

* Mandatory fields