3 Bedroom House
£450,000
Highfield Road, Petersfield, GU32

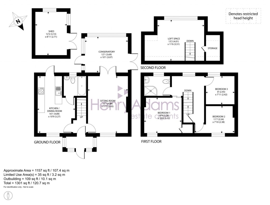
Floorplans For Highfield Road, Petersfield, GU32

Description


This well proportioned three-bedroom terraced house offering spacious and flexible accommodation.

On the ground floor, the property comprises a comfortable lounge, a kitchen which has been updated in recent years and provides a practical modern cooking space, and a ground floor bathroom. To the rear, a conservatory extends the living space and overlooks the garden, further offering an additional reception area suitable for dining or relaxing.

Upstairs, the first floor provides three good sized bedrooms along with a separate shower room, providing an ideal layout for family living. A staircase leads to a loft area, providing useful additional space that could potentially be used for a home office, hobby room or occasional guest space.

Externally, the property benefits from off-road parking for multiple vehicles to the front and is positioned within a cul-de-sac setting. The rear garden includes a summerhouse, offering further flexibility as a workspace, studio or storage area.

The property is conveniently located within walking distance of Petersfield town centre and the mainline station, providing easy access to local amenities and transport links.

A well-proportioned home offering versatile accommodation in a convenient location.

Reference: 648ad2c7-ba6f-460e-8811-f0507e1f77f5

Request a viewing for this property

Simply fill out the form below or alternatively call us on 020 7839 0888

* Mandatory fields