2 Bedroom Lodge
£375,000
East Bracklesham Drive, Bracklesham Bay, PO20

Floorplans For East Bracklesham Drive, Bracklesham Bay, PO20

Description


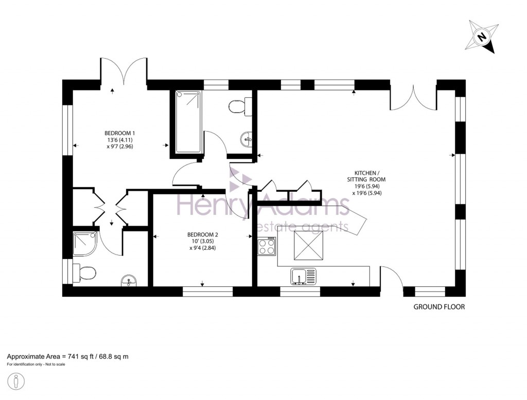
A well-presented and thoughtfully arranged two-bedroom ground floor home, ideally positioned on the sought-after seafront at Bracklesham Bay, offering a rare opportunity to enjoy coastal living with direct access to the beach.

The property is centred around a generous open-plan kitchen/sitting room, creating a bright and sociable living environment ideal for both everyday living and entertaining. The kitchen is neatly arranged with ample worktop space and storage, flowing seamlessly into the main reception area, which benefits from excellent natural light and access to the outside.

There are two well-proportioned bedrooms, with the principal bedroom offering particularly generous dimensions, while the second bedroom provides flexibility for use as a guest room, nursery or home office.

The accommodation is further complemented by a modern family bathroom, along with an additional shower room/WC, adding to the overall convenience and appeal of the home.

Situated in a prime coastal location, this attractive property is ideal as a main residence, holiday home, or investment, combining comfortable living with the lifestyle benefits of being on the beach.

Connected to mains water and gas.

50 year lease from January 2026.

Offered with no forward chain.

Reference: 61f6f557-2c37-4970-9cc3-8cadc669d566

Request a viewing for this property

Simply fill out the form below or alternatively call us on 020 7839 0888

* Mandatory fields