2 Bedroom House
£335,000
Russell Street, Chichester, PO19

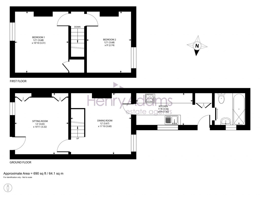
Floorplans For Russell Street, Chichester, PO19

Description


A charming brick and flint period cottage beneath a slate roof, this beautifully presented two-bedroom end-terrace is tucked away in a quiet cul-de-sac within a conservation area yet lies just over ½ mile (0.6 miles) from the city centre shopping precinct.

The property has been sensitively updated in recent years by the current owner, including sash-style double-glazed windows, while retaining its original character.

The accommodation comprises a welcoming sitting room with open fireplace, a separate dining room with staircase to the first floor, and a modern galley kitchen fitted with high-gloss fronted units. To the rear is a lobby and a ground-floor bathroom. Upstairs are two well-proportioned double bedrooms.

Outside, the walled front garden is block paved, with side pedestrian access leading to the rear. The long rear garden features a paved patio opening onto a central lawn, flanked on both sides by mature, well-stocked borders, creating a delightful and private outdoor space.

On-street parking is available.

NB the neighbouring cottage has a pedestrian right of way along the side pathway to gain access to the rear of their property

Chichester District Council - 25/26 Tax Band C £2,077.38

EPC- D

Directions - Proceed east out of Chichester along The Hornet turning left at The Four Chesnut public house into Oving Road. Take the second left onto Russell Street and number 8 is a short distance along on the left. What3words - stuck.punk.wheels

Reference: 6054fab1-cd29-4f01-a307-4eaf258b3b9e

Request a viewing for this property

Simply fill out the form below or alternatively call us on 020 7839 0888

* Mandatory fields