£583 PCM
Bridge Street, Framlingham, Suffolk, IP13 9AJ

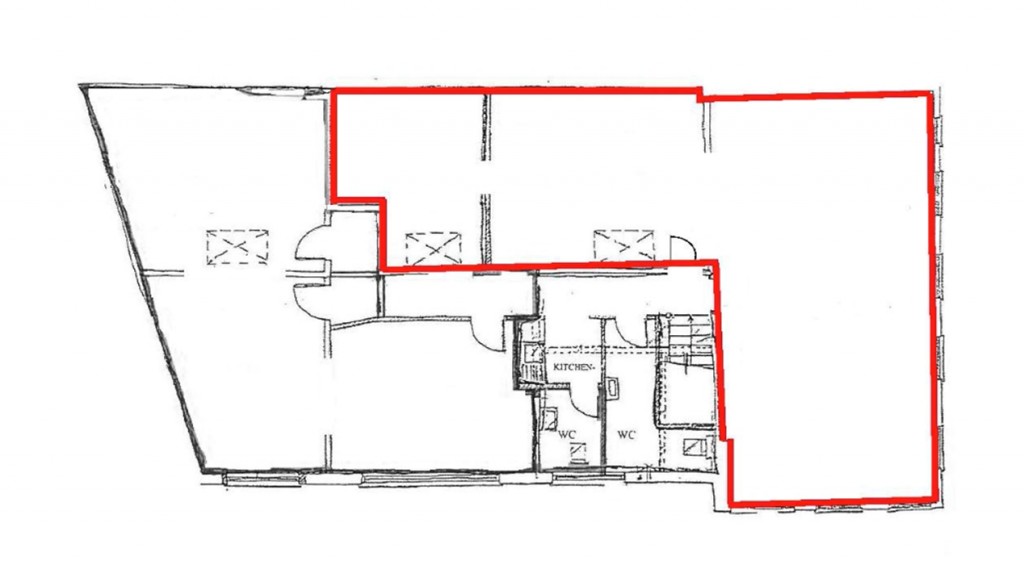
Floorplans For Bridge Street, Framlingham, Suffolk, IP13 9AJ

Description


A well-presented, self-contained first floor office suite of approximately 830 sq. ft (77 sqm) providing open plan office space with separate meeting room, private office, break-out areas, cloakroom and use of kitchenette.

Available from February 2026.

Location

The property is situated in an excellent location set back from Bridge Street and adjoining Framlingham’s Market Hill, the main retail destination of the town. The town offers an excellent range of local retailers including Collated, Framlingham Pharmacy, Fred Olsen Travel, Sue Ryder, Bulstrodes, Panorama, Fram Home & Gifts, Ruby Tyger and Hall Farm Butchers, together with a Co-op supermarket, restaurants, cafes and other local amenities. The town is famous for its late 12th century castle and is also home to Framlingham College. 

Directions

From the Clarke and Simpson offices at Well Close Square, proceed towards the Market Place on Bridge Street for approximately 200m, where the property will be located on the left hand side, set back from the road next to Framlingham Library. 

For those using the What3Words app: ///revamped.panther.sobered

Description

The premises comprise a self-contained first floor office suite arranged to provide a large open-plan office together with a separate meeting room, private office/file store and a generous break-out/amenity area. The accommodation is carpeted throughout and benefits from good levels of natural light, suspended ceilings with inset lighting and window blinds. In addition to the offices, there is use of a kitchenette (shared with one other occupier), and sole use of a WC. The suite is considered suitable for a range of office and retail, or similar uses, subject to the usual consents. The premises have an approximate Net Internal Area of 833 sq. ft (77.35 sqm).

Terms

The premises are available to rent on a new lease with an initial term to be agreed, an annual rent of £7,000 per annum exclusive. Any lease will be excluded from the security of tenure provisions of the Landlord & Tenant Act 1954. The lease will be on the basis of internal repairing obligations. A deposit will be held by the Landlord equivalent to three months rent. 

Insurance

The Landlord will insure the building and recharge the premium to the Tenant. 

Services & Outgoings 

The gas fired central heating system, water and drainage are all shared facilities and the incoming tenant will be required to pay a fair proportion towards these costs.  Electricity is separately metered.

Rateable Value 

£6,100 (£6,300 from 2026). Business Rates will be the responsibility of the Tenant, however  Small Business Rate Relief may apply for certain Tenants. 

Legal Costs

Each party to be responsible for their own legal costs. 

EPC   

C

Local Authority       

East Suffolk Council, East Suffolk House, Station Road, Melton, Woodbridge, Suffolk IP12 1RT; 

01394 383789. 

Viewing

By appointment with Clarke and Simpson.        

 

Reference: 51742

Request a viewing for this property

Simply fill out the form below or alternatively call us on 020 7839 0888

* Mandatory fields