£2,708 PCM
Framlingham, Nr Woodbridge, Suffolk

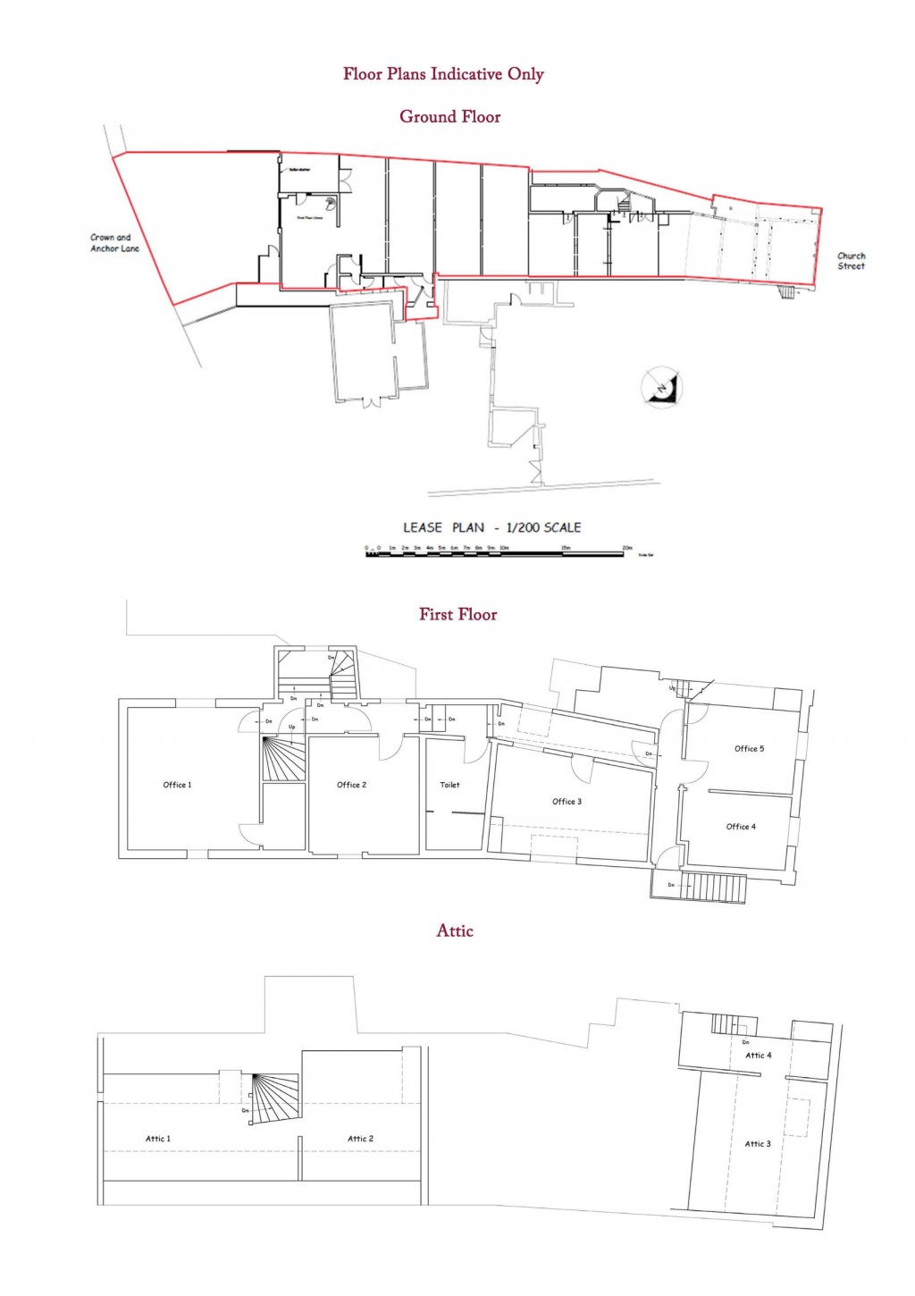
Floorplans For Framlingham, Nr Woodbridge, Suffolk

Description


A substantial ground floor retail unit of approximately 3,600 sq. ft. (335 sqm) with rear car parking/loading and frontages to both Market Hill and Fore Street.

Additional first floor offices extending to approximately 925 sq. ft. (86 sqm) that are partly let on annual licences. 

Approximately 778 sq. ft. (72 sqm) of attic storage.

Rear car parking with sufficient space for 4 to 5 vehicles.

Location

The building occupies a prominent position on the Market Hill, in the centre of the historic market town of Framlingham which is perhaps best known for its magnificent castle that is managed by English Heritage. This thriving town boasts a good selection of independent shops and businesses including cafés, restaurants, hairdressers, antique shops, a travel agency and delicatessen.  It is also home to the Crown Hotel, Two Magpies Café & Bakery and a Co-operative supermarket.  Off the Market Hill are a number of other businesses providing day-to-day services including pubs, vets, a medical centre and schools.  Sir Robert Hitcham’s Primary School is highly regarded and Thomas Mills High School is considered one of the best state schools in the East of England.  There is also Framlingham College, which is served by its prep school at Brandeston Hall some 5 miles away.  

Framlingham is surrounded by delightful villages, many of which have popular public houses.  There are lovely walks from Framlingham into the surrounding countryside and amenities such as golf in the nearby locations of Cretingham (6 miles), Woodbridge (12 miles) and Aldeburgh (13 miles). The world famous Snape Maltings Concert Hall is within easy reach (10½ miles).  There is also bird watching at the RSPB centre at Minsmere (15 miles).  Framlingham is only 12 miles from the coast as the crow flies, to popular destinations such as Southwold, Dunwich, Thorpeness and Orford. The county town of Ipswich lies approximately 18 miles to the south-west and from here there are regular services to London’s Liverpool Street Station, scheduled to take just over the hour.

Directions

From the Agent’s office, proceed along Bridge Street and into the Market Hill, where the property will be found at the top of the Market Hill to the left of The Crown public house, Framlingham Travel and Carley Hill Hair.  

///fortunes.strongly.gloom

Description

31 Market Hill comprises a Grade II Listed, substantial retail property that occupies a prominent position in the centre of Framlingham and overlooking the main trading area of the Market Hill.  

The accommodation comprises a substantial ground floor retail unit, with frontages to both the Market Hill and Fore Street at the rear.   There is also a customer car parking area to the rear, which is sufficiently large enough for 4 to 5 vehicles.  On the first floor there are a range of offices, and some of these are let on a rolling annual licence, with the remaining offices vacant.  There is also some storage space available within the attic. A Schedule of Areas is listed below.  

The property is served by gas fired heating with fluorescent lighting, carpeting and extensive shop fittings.

Schedule of Areas 

                                                            Approx Sq Ft                  Approx Sqm                     Rateable Value                 Status / Rent

Ground Floor Retail Unit                      3,607                               335.1                                £20,750                           Guide rent £32,500 pa

First Floor Offices (1 - 5)                       925                                 85.89                                                                        Part let. Some offices may be available to let.

Office 1                                                                                                                                 £3,250

Office 2                                                                                                                                 £2,275

Office 3                                                                                                                                 £2,650

Office 4/5                                                                                                                             £2,850

Attic (above offices)                             416                                  38.64                               Not Known                      Included

Store Room                                          362                                  33.69                               Not Known                      Included

TOTAL                                                   5,310                               493.30

 

Town Planning

The property is Grade II Listed and has been used as Class E retail for many years with separately accessed offices above. The property may be suitable for other uses - all enquiries to East Suffolk Council.

Terms

The property is available on a new interval repairing and insuring lease for a term to be agreed at a Guide Rent of £32,500 p.a.x.

Business Rates

£23,500 from 1 April 2026.

Viewing Strictly by appointment with the agent.  

Services  Mains water, gas, electricity and drainage connected.  

EPC  There is no EPC as the property is Listed.

Local Authority  East Suffolk Council; Station Road, Melton, Woodbridge, Suffolk 

IP12 1RT; Tel: 01394 383789

NOTES

1.    These particulars are produced in good faith, are set out as a general guide only and do not constitute any part of a contract. No responsibility can be accepted for any expenses incurred by intending purchasers or lessees in inspecting properties which have been sold, let or withdrawn. Interested parties should rely on their own/their surveyors investigations as to the construction type of the property and its condition. No warranty can be given for any of the services or equipment at the property and no tests have been carried out to ensure that heating, electrical or plumbing systems and equipment are fully operational. Any distances, room aspects and measurements which are given are approximate only. Any plans are indicative only and may not be the same as the transfer plan/s.  No guarantee can be given that any planning permissions or listed building contents or building regulations have been applied for or approved. The agents have not been made aware of any covenants or restrictions that may impact the property, unless stated otherwise.

2.    Under Money Laundering, Terrorist Financing and Transfer of Funds (Information on the Payer) Regulations 2017 we, as Estate Agents, are required to obtain identification from buyers in the form of the photo page of your passport or a photo driving licence. The document must be in date.  In addition, we need proof of address in the form of a utility bill with the name and address of the buyer. This must not be more than three months old. We are also under obligation to check where the purchase funds are coming from.

December 2025

 

 

 

 

 

Reference: 51551

Request a viewing for this property

Simply fill out the form below or alternatively call us on 020 7839 0888

* Mandatory fields