£1,667 PCM
High Street, Aldeburgh, Suffolk

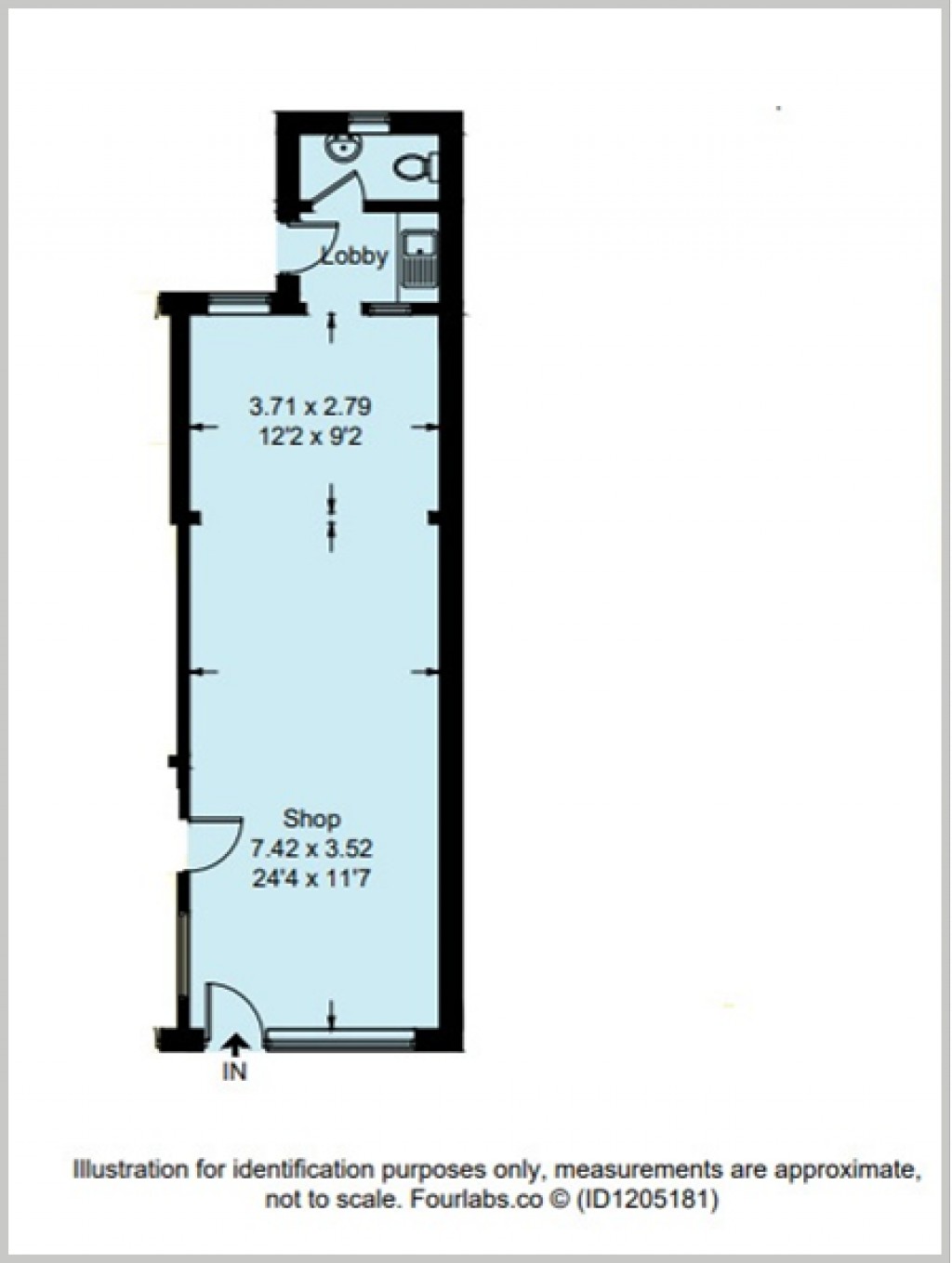
Floorplans For High Street, Aldeburgh, Suffolk

Description


A lock-up ground floor retail unit or former office premises extending to approximately 444 square feet (41.3 square metres) comprising a former coffee shop/ice cream parlour with kitchenette and WC. 

Location

The premises are situated on the High Street in the centre of Aldeburgh.  Aldeburgh is one of the region's most popular seaside towns with a thriving High Street offering an excellent range of local shops including two Co-op supermarkets, restaurants and art galleries.  Retailers include local, regional and national operators.  The town also benefits from a cinema, library, doctors’ surgery and hospital and has its own golf and yacht clubs.  Nearby Snape Maltings, with its world class concert hall, is home to the Aldeburgh festival.  Other attractions in the area include the popular resorts of Thorpeness, Walberswick, Dunwich and Southwold, together with nature reserves at RSPB Minsmere and Havergate Island. There are also ancient castles at Orford and Framlingham. The neighbouring market town of Saxmundham (7 miles away) has Waitrose and Tesco supermarkets and a railway station with direct and connecting services to London Liverpool Street Station. The County Town of Ipswich lies about 25 miles to the south-west.

As you approach Aldeburgh, follow the main road to the mini roundabout, continue straight onto High Street. 159 High Street is on the right, near the seafront. 

What 3 words: ///clockwork.chestnuts.lift

Description

The premises comprise a ground floor lock-up retail or office unit in a prime position along the High Street in Aldeburgh.  Other occupiers on the High Street and in the vicinity include the following: Aldeburgh Emporium, Aldeburgh Market, Fleur, O&C Butcher, Riley & Riley, Norfolk Natural Living, Joules and Crew Clothing.  Eateries include Munchies, Ives Ice Cream Parlour, Lawsons Delicatessen, The Lighthouse, The Regatta, Prezzo, as well as the well regarded hotels, The Brudenell, The White Lion and The Wentworth.

The accommodation essentially comprises an open plan former coffee shop with kitchenette and WC at the rear.  The main entrance to the shop is directly from the street.   There is a side entrance which provides shared access with the adjoining residential flat and is not intended for regular use. The right of access to the garden is reserved exclusively for the flat. The door leading to the garden serves as a fire exit only. No refuse is to be stored outside the rear door or within the shared front alleyway. The premises has a Net Internal Area of approximately 420 sq. ft (39 sqm).  

Terms

The premises are available to rent on an internal repairing basis at £20,000 per annum exclusive on a new lease with terms to be agreed.

Deposit

The Landlord will require a minimum deposit equivalent to three months’ rent (£5,000) by way of a security deposit which will be held for the duration of the term.

Services   

Mains water, electricity and drainage connected.  

Rates

Rateable Value  £17,250;   Rates payable £8,607.75 per annum 2025/2026

Local Authority 

East Suffolk Council, East Suffolk House, Station Road, Melton, Woodbridge, Suffolk IP12 1RT; 01394 383789.

EPC

B (35)

Insurance

The Landlord will insure the whole building and re-charge an appropriate proportion of the premium to the Tenant.

Viewing  

Strictly by appointment with the agent.

NOTES

1. Every care has been taken with the preparation of these particulars, but complete accuracy cannot be guaranteed.  If there is any point, which  is of particular importance to you, please obtain professional confirmation. Alternatively, we will be pleased to check the information for you.  These Particulars do not constitute a contract or part of a contract.  All measurements quoted are approximate.  The Fixtures, Fittings & Appliances have not been tested and therefore no guarantee can be given that they are in working order.  Photographs are reproduced for general information and it cannot be inferred that any item shown is included.  No guarantee can be given that any planning permission or listed building consent or building regulations have been applied for or approved. The agents have not been made aware of any covenants or restrictions that may impact the property, unless stated otherwise.  Any site plans used in the particulars are indicative only and buyers should rely on the Land Registry/transfer plan. 

2. The Money Laundering, Terrorist Financing and Transfer of Funds (Information on the Payer) Regulations 2017 require all Estate Agents to obtain sellers’ and buyers’ identity.

November 2025

 

 

Reference: 50494

Request a viewing for this property

Simply fill out the form below or alternatively call us on 020 7839 0888

* Mandatory fields