2 Bedroom House
£350,000
Farne Lane, Birdham, PO20

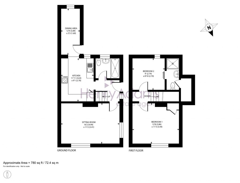
Floorplans For Farne Lane, Birdham, PO20

Description


A beautifully modernised end of terrace home in the sought-after Birdham village.

Since purchasing in 2023, the current owners have extensively modernised and transformed this charming two bedroom end-terrace home, ideally situated in a highly sought-after village location overlooking playing fields in Birdham.

The property has undergone numerous improvements, including replacement windows (*with the exception of the hall and bathroom), a stylish new kitchen and contemporary bathroom, full redecoration, updated floor coverings, new fencing and the addition of a wood-burning stove.

The accommodation comprises an entrance hall leading into a delightful dual-aspect sitting room, featuring a cosy wood burner. To the rear, a beautifully designed shaker-style kitchen boasts striking deep blue units, contrasting worktops, a butler sink and space for a range-style cooker. This space flows seamlessly into a bright dual-aspect dining area, perfect for entertaining. The ground floor also benefits from a refitted contemporary bathroom, complete with a freestanding bath.

Upstairs, there are two well-proportioned bedrooms, both offering comfortable and versatile living space. One of the bedrooms has a sliding door to a modern en-suite shower room.

Outside, the garden provides a blank canvas for landscaping, currently laid with a patio and lawn, ideal for those looking to create their own outdoor retreat.

Chichester District Council - 26/27 Tax Band B £1,912.50 EPC-C

Directions - Proceed south out of Chichester along the Birdham Road (A286) towards West Wittering. After entering Birdham take the fourth turning on the right, just before the petrol station, into Crooked Lane. Take the second turning on the right into Farne Lane and number 6 is on the right. What3words - recent.rentals.snuggled

Reference: 4c7131b1-b020-4b10-8bd1-888e68ff0119

Request a viewing for this property

Simply fill out the form below or alternatively call us on 020 7839 0888

* Mandatory fields