£917 PCM
The Street, Brockford, Suffolk, IP14 5PF

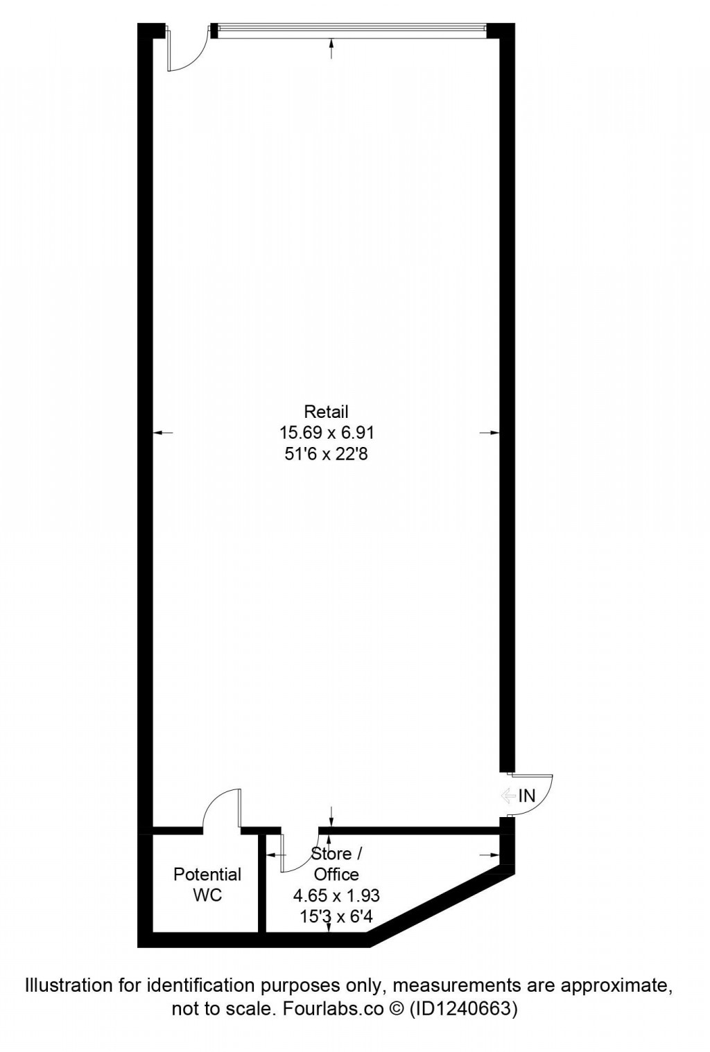
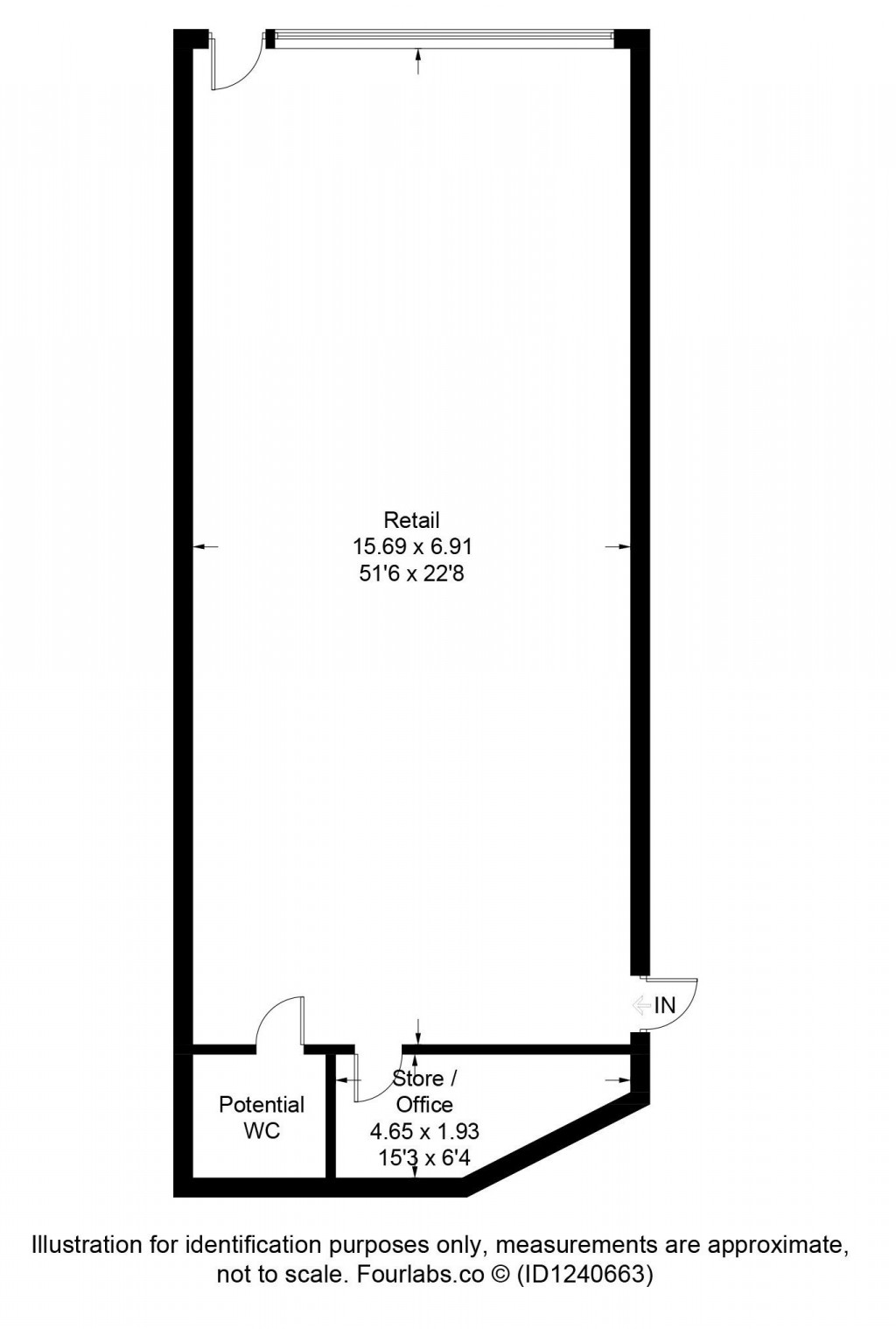
Floorplans For The Street, Brockford, Suffolk, IP14 5PF Floorplans For The Street, Brockford, Suffolk, IP14 5PF

Description


Location

The property is conveniently located for access to the A140, which provides good road links northward towards Diss and Norwich, 10 miles and 29 miles respectively, west to Bury St Edmunds, 23 miles, and southwards toward Ipswich and Stowmarket, which are 16 miles and 9 miles distance respectively. Diss, Norwich, Ipswich and Stowmarket all have railway stations providing a regular commuter service to London's Liverpool Street, as well as excellent shopping facilities.  

 

Description

Units 1 and 2 comprises two newly created retail units situated at Brockford Service Station. This recently renovated petrol station comprises a BP fuel forecourt with Budgens Supermarket, hand car wash, workshops and storage/office spaces. 

The accommodation comprises:-

                            Sq.m                              Sq.ft                               Rent                          Availability

Unit 1                  155                                  1666                              £15,000 pax                      To Let

Unit 2                  119                                 1279                               £11,000 pax                      To Let

Features include:-

· Recently created retail/office units

· Highly visible position facing the A140

· Frontage parking with further parking to the rear of the service station

· Open plan and spacious accommodation ready for fit out

· Suitable for a variety of uses

 

Terms

The units are available to rent on an effective full repairing lease for an initial term of 5 years, outside the Landlord and Tenant Act. A deposit will be held by the Landlord equivalent to three months rent, plus VAT

 

Service Charge

An annual service charge is payable towards buildings insurance, utilities and maintenance of common areas. 

 

VAT

We understand the property is elected for VAT and therefore VAT is payable on the rent and service charge. 

 

Services

We understand mains electricity, water and foul drainage are to be connected to the units. We have not undertaken any detailed investigations in relation to the availability and capacity of services and prospective purchasers should satisfy themselves in this regard.

 

Energy Performance Certificate (EPC)              

To be confirmed.          

 

Rateable Value

To be confirmed. The units are to be assessed by the Valuation Office Agency.  

 

Local Authority                                     

Mid Suffolk District Council.                      

 

Viewing

Strictly by appointment with Clarke and Simpson.

 

 

 

 

 

 

 

 

 

 

 

Reference: 48521

Request a viewing for this property

Simply fill out the form below or alternatively call us on 020 7839 0888

* Mandatory fields