2 Bedroom Apartment
£365,000
Sandown, Isle of Wight

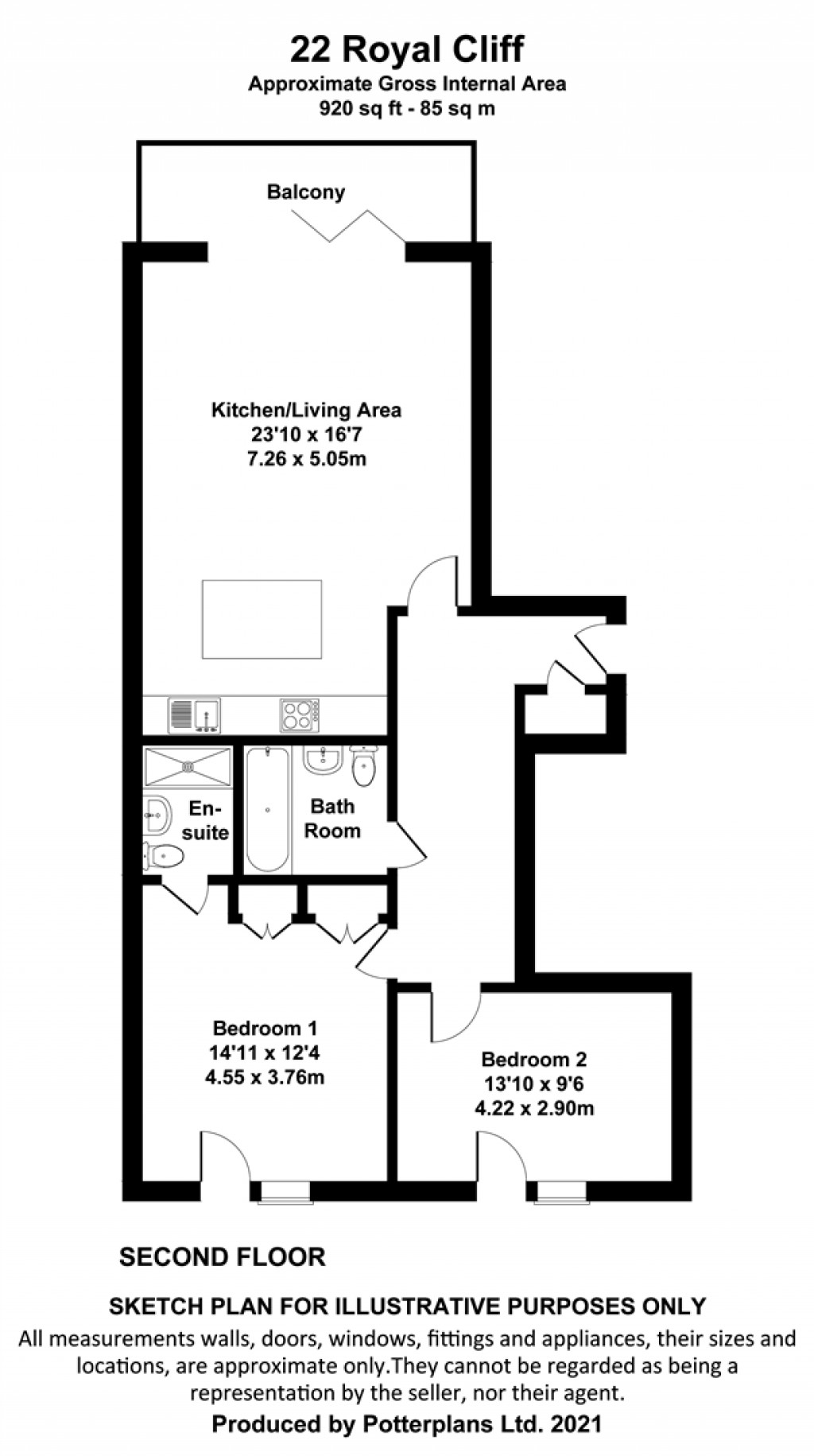
Floorplans For Sandown, Isle of Wight
EPC Graph for Sandown, Isle of Wight

Description


A stunning second floor apartment within a luxurious cliff top development, with unobstructed sea views, private balconies, communal gardens and underground parking.

A light and spacious apartment in a prime position within the development enjoying dual aspect panoramic views over the bay from a fabulous open plan kitchen, dining and living area. Bi-folding doors access a large balcony overlooking the sea and there are two generous sized double bedrooms and two bathrooms one of which being ensuite.

Completed in 2020 these high specification properties are finished to a high standard throughout boasting impressive fully equipped kitchens and bathrooms and number 22 situated on the second floor is larger than average at approx. 104m2 gross internal area with a position on the side of the building boasting some of the best views along the beach toward Culver Downs. Providing an ideal island retreat this apartment could also provide an excellent holiday letting property and offers relatively low-maintenance and high energy efficiency with under floor heating, fitted wardrobes and tiled floors and fitted carpets.

Offered with the comfort of the balance of an NHBC building warranty from 2020. The impressive apartments also have a secure underground car park with allocated parking, and the convenience of lift access to all floors, visitors parking and the added security of video entry to all apartments. Apartment 24 further benefits from an underground store next to the parking space.

Sandown Bay and surrounding areas are renowned for its long stretching sandy beaches and where there is plenty to see and do. The development occupies a particularly convenient location close to the Cliff Path with direct beach access and the town centre with amenities, restaurants and cafes as well as beautiful coastal walks to Yaverland and Shanklin. A short walk from Sandown train station providing links through to Ryde and access to passenger ferry services to Portsmouth where there are connecting trains to London Waterloo, the entire journey time taking an estimated time of 2.5 hrs door to door.

Open Plan Kitchen/Living Area
A fantastic family and entertaining space with aluminium bi-folding doors overlooking the sea. There is a large balcony through the bi-folding doors which extends the reception space outdoors. The kitchens have a contemporary style and are fitted with Corian work tops with integrated drainers, 'Smeg' sink with mixer tap over, induction Siemens hob and cooker with integrated microwave. There is pendant lights over the breakfast bar island and subtle LED lighting above the tiled splash backs. The dining and living area make for an excellent entertaining space from where the exceptional views over Sandown and Shanklin Bay can be enjoyed.

Bedrooms
Carpeted floors and large windows with Juliet balconies to the side and rear. The principal bedroom has built in wardrobe storage and an ensuite shower room.

Bathrooms
Tiled walls and flooring and usually consisting of a panelled bath, vanity unit wash basin, heated towel rail, W.C.

Underground Parking
Within the gated development there is allocated underground parking in addition to a separate private store and plenty of visitors parking to the front.

Services Mains gas, electricity, water and drainage. Heating is provided by gas fired boiler and delivered via zoned underfloor heating, Vaillant combination boilers.

Tenure
Leasehold - 125 year lease with a ground rent of £250pa. The annual service charge is £1,995 pa and covers building maintenance, communal areas, gardens and lighting as well as buildings insurance.

EPC Rating
B

Council Tax
Band C

Postcode PO36 8FB

Viewings All viewings will be strictly by prior arrangement with the sole selling agents, Spence Willard.

Important Notice

1. Particulars: These particulars are not an offer or contract, nor part of one. You should not rely on statements by Spence Willard in the particulars or by word of mouth or in writing ("information") as being factually accurate about the property, its condition or its value. Neither Spence Willard nor any joint agent has any authority to make any representations about the property, and accordingly any information given is entirely without responsibility on the part of the agents, seller(s) or lessor(s). 2. Photos etc: The photographs show only certain parts of the property as they appeared at the time they were taken. Areas, measurements and distances given are approximate only. 3. Regulations etc: Any reference to alterations to, or use of, any part of the property does not mean that any necessary planning, building regulations or other consent has been obtained. A buyer or lessee must find out by inspection or in other ways that these matters have been properly dealt with and that all information is correct. 4. VAT: The VAT position relating to the property may change without notice.

Spence Willard

Spence Willard

Sherbourne Street
Bembridge
Isle of Wight
PO35 5SB

+44 (0)1983 873000

Reference: 34617323

Request a viewing for this property

Simply fill out the form below or alternatively call us on 020 7839 0888

* Mandatory fields