2 Bedroom Apartment
£287,500
Taw Wharf, Sticklepath, Barnstaple

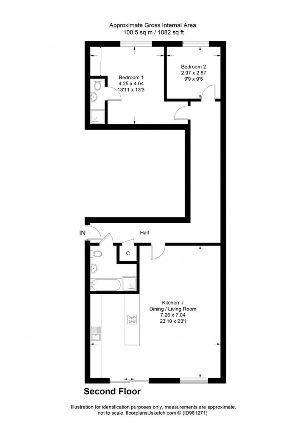
Floorplans For Taw Wharf, Sticklepath, Barnstaple
EPC Graph for Taw Wharf, Sticklepath, Barnstaple

Description


A Second Floor Waterside Apartment in a sought-after, modern development with stunning views of the River Taw Estuary and surrounding countryside. Council Tax Band C. EPC Rated B. Leasehold.

Situation & Amenities - Taw Wharf is located alongside the River Taw and the famous Tarka Trail, which is a level path along the estuary - popular with walkers, cyclists and bird enthusiasts alike. Close to the apartment is a retail park with an Asda Superstore, Costa coffee, gym and other businesses. Barnstaple town centre is a 10-minute walk away over the historic long bridge. Barnstaple train station is a 10-minute walk away past another retail park, with the indoor Tarka Tennis and Leisure Centre a 15-minute walk away. Within the catchment there are a choice of local primary and secondary schools along with a community college. North Devon District Hospital is also only a short drive away.

There is easy access to the A361 North Devon Link Road which links within about 45 minutes to Junction 27 of the M5 Motorway, and also to Tiverton Parkway with trains to London Paddington in just about 2 hours.

Saunton, with its sandy surfing beach and championship golf course, is about 20 minutes away. The beaches of Croyde and Woolacombe are about 30 minutes away and Exmoor can be reached in a similar time. Instow, a pretty coastal village with a cricket ground, yacht club and beach, is about 15 minutes by car, or about half an hour by bike along the famous Tarka Trail.

Description - A contemporary waterside apartment built in 2019 by local reputed house builders Pearce Homes and covered by the balance of an NHBC 10-year warranty. Communal entrance with stairs or lift access to the apartment, secure garage with allocated parking space. The layout briefly consists; entrance hall with a storage cupboard. A good sized inner hall that could be utilised as home office, gym, storage etc. Spacious open plan living/dining/kitchen with Juliet balcony overlooking the River Taw Estuary with its birdlife and changing patterns. The kitchen has modern wall and base units and integrated Bosch appliances: induction hob, oven, microwave, dishwasher and washer/dryer. There are two bedrooms, with the principal having an ensuite shower room and walk-in wardrobe. There is also a well proportioned family bathroom with both bath and walk-in shower. The property is an ideal primary residence, second home, or a rental property. Beneath the apartments there is secure garaging with remote electric roller doors. Each apartment has an allocated parking space with a power connection.

Tenure/Charges - 999-year leasehold from 1st January 2019.

Taw Wharf Leaseholder Service Charge 2023/24 - £1,176.00
This is for the block and includes: communal cleaning, lifts, door entry systems, roller shutter doors to garage, communal electricity, fire alarms, emergency lighting, building insurance, water tank servicing, ground rent (£1.00), contingency fund (£400.00) and management fees (£100.00).

Taw Wharf Estate Service Charge 2023/24 - £140.00
This is for the whole estate and includes: Estate electricity, grounds maintenance, aerial, communal area insurance and management fees.

Pets by agreement of the management company.

Services - All mains services are connected, Worcester-Bosch Boiler (last serviced 18 March 2023). Fibre broadband available.

Directions - w3w.co/shops.sentences.acute

If you are approaching the 'Barn-henge' roundabout on the A361 from the direction of Bishops Tawton, take the third exit and then stay in the left-hand lane. Turn left at the traffic lights. Proceed straight over the next roundabout into the Taw Warf development and proceed through the development, where the property can be found on the right-hand side.

Lettings - There has never been a better time to consider a buy-to-let investment and this property may be of interest to buy-to-let investors. Our lettings department has prepared some figures for this property, which should be achievable in the current market. The Stags Residential Letting team would be happy to discuss these figures and provide further information about the letting services on offer. They can be contacted on 01271 322837 or rentals.northdevon@stags.co.uk

Stags

Stags

30 Boutport Street
Barnstaple
Devon
EX31 1RP

+44 (0)1271 322833

Reference: 34610899

Request a viewing for this property

Simply fill out the form below or alternatively call us on 020 7839 0888

* Mandatory fields