4 Bedroom Detached
£450,000
Melmerby, Wilnecote, B77

Floorplans For Melmerby, Wilnecote, B77

Description


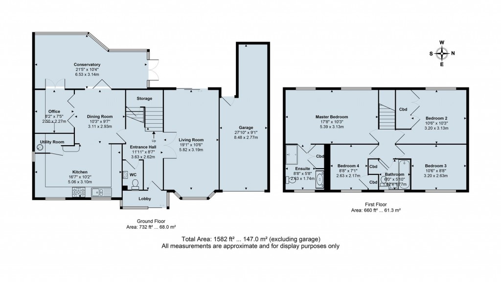
Occupying a pleasant position within this established residential setting, this detached family home extends to over 1500 sqft. The ground floor is particularly well suited to modern family living, featuring a generous dual aspect living room, dining room which opens seamlessly into the kitchen with a further opening through to an impressive conservatory, creating a superb open plan arrangement. The kitchen itself is well appointed and benefits from a separate utility room, while a versatile office provides additional flexibility with double doors leading into the conservatory, further enhancing the sense of space and connectivity. To the first floor there are four bedrooms, including a principal bedroom with en suite shower room, together with a family bathroom. Externally, the property is complemented by a driveway, 27ft garage and an attractively maintained rear garden with patio and lawned areas.

Location - Situated within the popular residential area of Wilnecote, this property enjoys a convenient position with a range of local amenities close at hand, including shops, supermarkets and schooling for all ages. Wilnecote itself benefits from a railway station providing direct links to Birmingham and beyond, making it an excellent choice for commuters. The nearby town of Tamworth offers a more extensive range of retail and leisure facilities, including Ventura Retail Park and the SnowDome. There is also excellent road connectivity, with the A5, A38 and M42 all easily accessible, providing links to Birmingham, Lichfield and the wider motorway network.

Travel Distances
Tamworth town centre - approx. 3 miles
Wilnecote railway station - approx. 0.8 miles
Ventura Retail Park - approx. 2.5 miles
A5 - approx. 1.5 miles
M42 (J10) - approx. 4 miles
Lichfield - approx. 9 miles
Birmingham city centre - approx. 20 miles
Birmingham Airport/NEC - approx. 18 miles

Accommodation Details - Ground Floor - Step through the front door into a useful entrance lobby, which in turn opens into a welcoming entrance hall with guest cloakroom/WC and stairs rising to the first floor with cupboard below. Double doors lead off to the right into the generous dual aspect living room, a well proportioned reception space enjoying plenty of natural light, with a feature fireplace and glazed doors opening out to the rear garden. To the left of the hallway is the dining room, which forms the central hub of the ground floor and connects neatly with the rest of the accommodation. From here, the space opens into the fully fitted kitchen, which is well equipped with an extensive range of fitted units, ample work surfaces and space for appliances, with a separate utility room positioned just off. The dining room also opens into the impressive P-shaped conservatory, providing a superb additional reception area overlooking the garden. A separate office/reception room is located to the front left of the property, accessed off the dining room, and also benefits from double doors leading through to the conservatory.

First Floor - To the first floor, the landing gives access to four bedrooms and the family bathroom. The principal bedroom is a generous double room with two windows to the rear elevation and benefits from its own en suite shower room. Bedroom two is another comfortable double and features a large built-in cupboard, while bedroom four also benefits from a built-in cupboard. Bedroom three provides further well proportioned accommodation, ideal for children, guests or continued home working if required. The family bathroom is fitted with a modern suite, serving the remaining bedrooms.

Outside - Outside, the property stands behind a neat frontage with lawned garden, driveway parking and access to the oversized garage which has a personnel door to the rear. The rear garden has been attractively maintained and enjoys a lovely balance of patio and lawn, with well stocked borders and established planting creating a pleasant backdrop, offering an excellent space for outside dining, entertaining and family enjoyment.

Viewing Arrangements - Strictly by prior appointment via the agents Howkins & Harrison - Tel:01827-718021 Option 1

Local Authority - Tamworth Borough Council - Tel:01827 709709

Council Tax - Band - D

Agents Note - Additional information about the property, including details of utility providers, is available upon request. Please contact the agent for further details.

Tenure & Possession - The property is freehold with vacant possession being given on completion

Fixtures And Fittings - Only those items in the nature of fixtures and fittings mentioned in these particulars are included in the sale. Other items are specifically excluded. None of the appliances have been tested by the agents and they are not certified or warranted in any way.

Services - None of the services have been tested. We are advised that the property benefits from mains water, drainage, gas and electricity, which are connected to the property. The central heating is gas fired and broadband is available. (There are solar panels fitted (owned outright - please ask for further details)

Floorplan - Howkins & Harrison prepare these plans for reference only. They are not to scale.

Additional Services - Do you have a house to sell? Howkins and Harrison offer a professional service to home owners throughout the Midlands region. Call us today for a Free Valuation and details of our services with no obligation whatsoever.

Important Information - Every care has been taken with the preparation of these Sales Particulars, but complete accuracy cannot be guaranteed. In all cases, buyers should verify matters for themselves. Where property alterations have been undertaken buyers should check that relevant permissions have been obtained. If there is any point, which is of particular importance let us know and we will verify it for you. These Particulars do not constitute a contract or part of a contract. All measurements are approximate. The Fixtures, Fittings, Services & Appliances have not been tested and therefore no guarantee can be given that they are in working order. Photographs are provided for general information and it cannot be inferred that any item shown is included in the sale. Plans are provided for general guidance and are not to scale.

Howkins & Harrison

Howkins & Harrison

12 Church Street
Atherstone
Warwickshire
CV9 1RN

+44 (0)1827 718021

Reference: 34610629

Request a viewing for this property

Simply fill out the form below or alternatively call us on 020 7839 0888

* Mandatory fields