2 Bedroom Semi-Detached
£300,000
Church Street, Bridport

Floorplans For Church Street, Bridport

Description


A charming, beautifully presented and well appointed period end of terrace stone cottage with a very attractive landscaped garden, occupying a tucked away position within the heart of the town centre. EPC: Exempt - Grade II Listed.

The Property - Peach Cottage is a charming end of terrace period stone cottage in a very tucked away setting within the heart of the town. It is estimated to date back 250 years and is Listed Grade II of Architectural of Historic Importance.

The cottage has been subject to extensive refurbishment to a very high quality and the many excellent features include gas fired central heating with cast iron style radiators, UPVC sealed unit windows/doors, polished limestone feature fireplace with wood burner style log effect gas fire, contemporary kitchen with extensive units, Quartz worktops and comprehensive appliances - integrated slimline dishwasher, integrated full size washer/dryer and cooker hood (slot in cooker Range with gas hob and electric oven available by separate negotiation), contemporary/period style shower room with corner entry mains shower, colonial style shutters and attractive floor coverings - laminate wood flooring to the living room, Italian floor tiles to the kitchen/dining room, bespoke stairs carpet and fitted carpets to the first floor. In addition, extensive landscaping has been undertaken to the lovely longer than average rear garden.

The accommodation is beautifully presented and to the front enjoys distant views to the church.

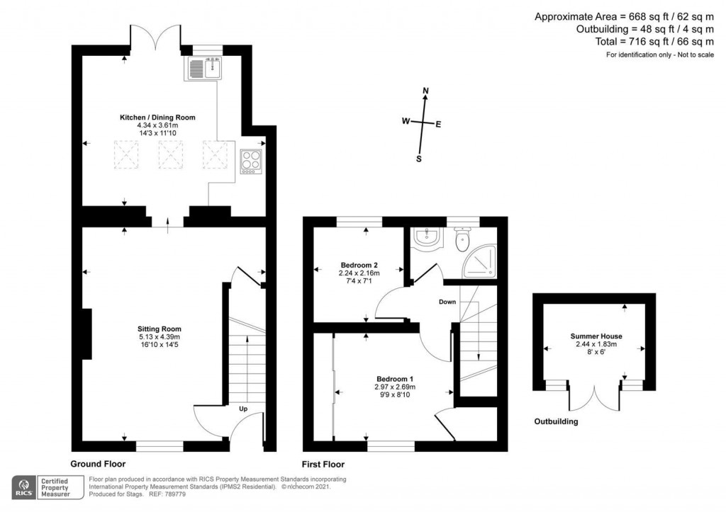
The accommodation is particularly spacious on the ground floor and extends in total to:
Ground floor - hall, living room with understairs cupboard incorporating hanging rails, kitchen/dining room with vaulted ceiling with Velux windows.
First floor - principal bedroom with built in wardrobe, second bedroom/dressing room and shower room.

Outside - Restricted on street parking is available on South Street and there are a number of public carparks very nearby including one directly adjoining (annual permits are available for long stay carparks).

The rear garden is a further big selling feature of the cottage, having a depth of about 50ft and very attractively landscaped. Immediately joining the house is a timber decking area with steps up to a crazy paved terrace and beyond, gravelled areas with pergola seating area and raised beds. At the far end is a large summer house with covered storage areas to both sides.

Situation - The cottage enjoys a highly convenient town centre location just off South Street close to all amenities. Bridport is a thriving and historic market town and holiday area. Extensive street markets are held twice weekly and the town has an excellent range of shopping facilities, primary and secondary schools, recreational and social amenities and a popular leisure centre with a swimming pool. A particular feature of Bridport town is the large number of independent and specialist shops which provide a unique atmosphere. The River Meadows are nearby providing lovely walks. The popular harbour of West Bay is only 2 miles to the south lying on the stunning Jurassic Coast.

Services - All mains services. Gas fired central heating.

Viewings - Viewings strictly by appointment with Stags, Bridport.

Directions - From our office on South Street, proceed south. Take the second turning on the left towards South Street Carpark where the property can be found on the left hand side.

Stags

Stags

29 South Street
Bridport
Dorset
DT6 4NR

+44 (0)1308 428000

Reference: 34608095

Request a viewing for this property

Simply fill out the form below or alternatively call us on 020 7839 0888

* Mandatory fields