3 Bedroom Terraced
£245,000
Guernsey Way, Banbury

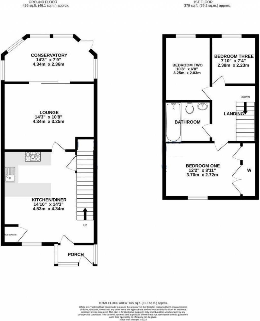
Floorplans For Guernsey Way, Banbury
EPC Graph for Guernsey Way, Banbury

Description


A three bedroom mid terraced home close to local school and amenities

Situation - BANBURY is conveniently located only two miles from Junction 11 of the M40, putting Oxford (23 miles), Birmingham (43 miles), London (78 miles) and of course the rest of the motorway network within easy reach. There are regular trains from Banbury to London Marylebone (55 mins) and Birmingham Snow Hill (55 mins). Birmingham International airport is 42 miles away for UK, European and New York flights. Some very attractive countryside surrounds and many places of historical interest are within easy reach.

A floorplan has been prepared to show the dimensions and layout of the property as detailed below. Some of the main features are as follows:

* Entrance porch opening to kitchen/diner which has wall and base mounted units, integrated oven and hob, ample space for table and chairs, window overlooking the front and access to storage cupboard.

* Light and airy lounge with sliding doors to the conservatory.

* Conservatory with door to the rear garden.

* First floor landing.

* The master bedroom is a double with built-in wardrobes.

* Two further bedrooms overlooking the rear garden.

* Bathroom comprising bath with shower over, WC and wash hand basin.

* Low maintenance rear garden which is mainly laid to lawn with gate leading to pathway which leads to the garages.

Services - All mains services are connected.

Local Authority - Cherwell District Council. Council tax band B.

Viewing - Strictly by prior arrangement with the Sole Agents Anker & Partners.

Energy Rating: C - A copy of the full Energy Performance Certificate is available on request.

Anti Money Laundering Regulations - In accordance with current legal requirements, all prospective purchasers are required to undergo an Anti-Money Laundering (AML) check. An administration fee of £30 plus VAT per applicant will apply. This fee is payable after an offer has been accepted and must be settled before a memorandum of sale can be issued.

Anker & Partners

Anker & Partners

31-32 High Street
Banbury
Oxfordshire
OX16 5ER

+44 (0)1295 271414

Reference: 34604897

Request a viewing for this property

Simply fill out the form below or alternatively call us on 020 7839 0888

* Mandatory fields