Description
A charming detached converted single storey former period stone shippen offering bright, spacious, rustic & well presented accommodation set in 7.2 acres and currently run as a smallholding but also suitable for equestrian use. In a peaceful Hamlet with lovely views. Lobby/boot room, cloakroom, vaulted sitting room, kitchen/dining room, utility, 3 bedrooms, 2 bathrooms, shepherds hut for overspill bedroom/office etc, double garage, buildings. EPC Rated D. Council Tax Band E. Freehold.
Situation & Amenities - The property forms one of a Hamlet of four dwellings, accessed over a driveway which is initially shared, before becoming private. The property benefits from delightful views over open countryside towards Roborough village on the horizon. Village amenities at Roborough, High Bickington and Dolton are within easy access. Wider amenities are available at Torrington, Bideford, Barnstaple and South Molton - again, all within access. The Link Road, coast, Dartmoor and Exmoor National Parks are all within striking distance, as are rail links to Exeter. The area is well served by excellent state and private schools, including the renowned West Buckland school. The nearest international airports are at Bristol and Exeter. North Devon's famous coastline and surfing beaches at Instow, Croyde, Putsborough, Saunton (also with Championship Golf Course) and Woolacombe are all about 45 minutes by car.
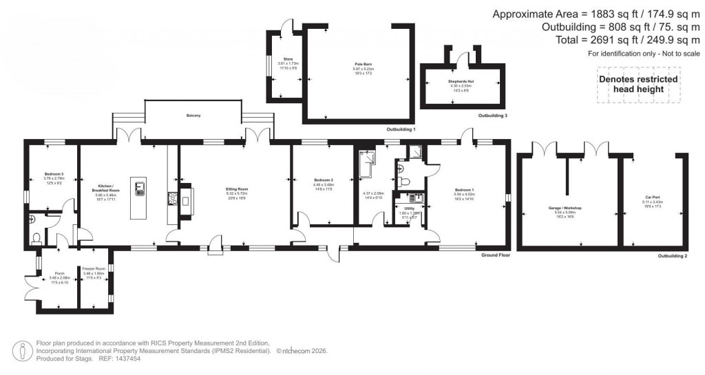
Description - Lower Barn comprises a charming detached single storey conversion of a former period shippen, which presents elevations mainly of stone, with hardwood framed double glazed doors and windows, beneath a slate roof. We understand that the property was converted in 2004. The accommodation is bright, spacious, rustic and well presented. Externally and strategically placed in the rear courtyard for ease of access to the dwelling is a shepherd's hut, which provides overspill bedroom accommodation, or alternatively makes a perfect office/studio, etc. Outbuildings include a double garage, car port, and pole barn/hay store (potential stabling). There is ample parking/motorhome/horsebox space, formal gardens and pasture - in all about 7.2 acres. The property is currently operated as a smallholding but is also ideal for equestrian use or for anyone to run dogs on their own land.
Accommodation - Pair of glazed doors to PORCH/BOOT ROOM with coats pegs, hat shelf, freezer room off. Half glazed stable door to ENTRANCE HALL. CLOAKROOM low level wc, pedestal wash basin, extractor fan, strip light. BEDROOM 3 a double aspect room with views over the garden and beyond. From the ENTRANCE HALL a doorway then leads to KITCHEN/DINING ROOM with vaulted ceiling and exposed A frame, slate flooring throughout. There is a good range of modern units in a cream theme, topped by dark wood work surfaces. There is a Rangemaster incorporating double oven, grill, induction hob with extractor fan over, central island accommodating a single drainer stainless steel sink unit, drawers, cupboards and plumbing for dishwasher, further cupboard housing the electrics. A pair of French doors with matching side panels lead to RAISED DECK and GARDEN. SITTING ROOM also with vaulted ceiling and exposed A frames, large stone Inglenook-style fireplace with Bressumer beam, fitted wood burner on slate hearth, glazed French doors to RAISED DECK and GARDEN, natural wood flooring, separate door to REAR COURTYARD, antique pine Gothic arched glazed door to BEDROOM WING and INNER HALL, glazed door to REAR COURTYARD, natural wood flooring. BEDROOM 1 double aspect with half glazed door to GARDEN, fine views. ENSUITE SHOWER ROOM with shower cubicle, aquaboard surround, pedestal wash basin, low level wc, Dimplex wall heater, ladder style heated towel rail/radiator, shaver point, mirror-fronted medicine cabinet, tiled flooring, stained glass window depicting dragonflies. BEDROOM 2 views over the garden. FAMILY BATHROOM newly created and fitted, panelled bath with aquaboard surround, shower screen, overhead shower unit, wash hand basin on plinth with dusky blue coloured cupboard beneath, low level wc, ladder style heated towel rail/radiator, tiled flooring. UTILITY ROOM single drainer stainless steel sink unit, adjoining work surfaces, cupboards and appliance space under, plumbing for washing machine, hot water cylinder, two wall mounted glazed-fronted cupboards, trap to loft space.
Outside - As previously mentioned, the initial part of the access lane is shared with three other neighbours, and all contribute 25% to maintenance costs on an if-and-when occurring basis. This then leads to a pair of solid private gates into the property itself, where there is an extensive car parking area. To the rear of the dwelling is a wall-enclosed COURTYARD, accommodating the SHEPHERD'S HUT with power connected, as well as oil tank and boiler. There is also a LEAN-TO LOG STORE. From the drive a pedestrian gate leads into the FORMAL GARDENS. From the top there is the raised SUN DECK with safety glass surround, ensuring that the view is not spoilt, as well as a remotely controlled awning. Steps lead down to a gravelled TERRACE running onto a whirligig position. There are well stocked stone edged beds and borders, an ORNAMENTAL POND, sweeping lawns interspersed with some fine specimen trees and shrubs. The GARDEN is fence enclosed. At the far end of the drive is access firstly to the CAR PORT with second LOG STORE adjoining, DOUBLE GARAGE with power and light connected - currently set up as a WORKSHOP, and below this a recently constructed POLE BARN, measuring about 20ft x 17ft with yard in front and access to the pastureland which is arranged as one large field. This runs down to stream frontage and a natural water supply. Within the top corner is a productive KITCHEN GARDEN with GREENHOUSE and timber GARDEN SHED, as well as a water supply.
Services - Mains electricity and water are connected. Solar panels provide energy and income. Central heating is oil-fired. Drainage is to a private septic tank located just below the whirligig position.
Directions - From the centre of Roborough, at The New Inn, follow the sign to Rapson. Follow the road for about 0.8 of a mile and you will reach the Hamlet of Rapson. Turn right here and pass a property known as 'Moor Park' on your left. The road then bends to the right. Continue, keeping to the left and the property is the last one you come to.