3 Bedroom Detached
£385,000
Westwood, Crediton

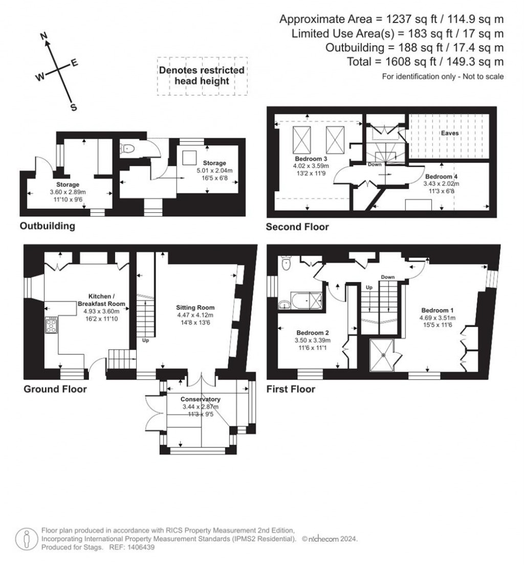
Floorplans For Westwood, Crediton
EPC Graph for Westwood, Crediton

Description


A charming three bedroom cottage with conservatory and useful outbuilding, presenting an attractive blend of character features and comfortable modern living.

Situation - Tucked away in a quietly desirable position on the fringes of Crediton, 3 Westwood Cottages enjoys a delightful balance of rural charm and everyday convenience. The property lies within easy reach of the town's excellent range of amenities, including independent shops, cafés, schooling and transport links, while the surrounding Devon countryside offers a wealth of scenic walks and outdoor pursuits. The location is particularly well placed for access to Exeter, making it an appealing choice for both commuters and those seeking a more relaxed pace of life.

Description - The thoughtfully arranged accommodation is set across three floors and is bathed in natural light, creating a warm, inviting and highly liveable interior. The accommodation is well balanced and comprises a kitchen/breakfast room, a welcoming sitting room, and a conservatory providing an attractive additional reception space with views over the garden. There are three bedrooms, arranged over the upper floors, served by a family bathroom, offering flexibility for family life, guests, or home working. Of particular note are the useful outbuildings, which lend themselves perfectly to use as a home office, studio, or craft room. Throughout the property, a wealth of period features including exposed timbers and traditional detailing combine seamlessly with thoughtful modern updates, resulting in a home that is both characterful and practical, ideally suited to contemporary living.

Accommodation - The property is approached via a pair of attractive white, double wooden gates, opening into a private garden and leading up to the front entrance, immediately setting a tone of seclusion and charm. The ground floor centres around a well-appointed kitchen/breakfast room, fitted with a tiled floor and a range of appliances. There is ample space for a breakfast table, while a traditional overhead clothes airer adds both character and everyday convenience.

From here, steps rise to a generously sized sitting room, where a focal wood-burning stove creates a cosy yet elegant atmosphere, ideal for both relaxation and entertaining. Leading off the sitting room, a conservatory provides an attractive additional reception area, enjoying pleasant views over the garden and an abundance of natural light. On the first floor, there are two well-proportioned bedrooms, one of which benefits from handy shower nook, while both are served by a neatly presented family bathroom. The second floor offers two further bedrooms, both of good size. One features some restricted head height owing to the eaves, making it particularly well suited as a child's bedroom, nursery, or occasional guest space.

Garden And Outbuildings - Externally, the property benefits from a delightful garden space, thoughtfully arranged to provide areas for relaxation and enjoyment. There is a mix of lawn and patio, complemented by mature planting, and the garden offers a peaceful retreat and an ideal setting for al fresco dining during the warmer months. The outbuildings comprise a Home office/Studio with power, light and heating, a Gardeners WC and a spacious shed with power and light.

Services - Utilities: Mains drainage, gas, electricity and water (on an assessed charge as meter in the road serves the property and adjoining house), drainage, gas, electricity.
Heating: Gas Central Heating - Combi Boiler
EPC: rating C
Council tax: Mid Devon District Council - Band B (£1960.91 pa)
Broadband: Utility Warehouse Ultra+ - Broadband average speed 29MB
Standard, Superfast and Ultrafast broadband available (Ofcom)
Three, O2, Vodafone and EE mobile network available indoors (Ofcom) - current vendors use Wi-Fi calling
Parking - on road across the road from the property

Agent's Notes - Right of Way: Adjoining property has right of way across the garden for maintenance purposes to the rea of their property. This has been exercised once in the time the current vendors have lived there (3 years).

Directions - what3words: ///toothpick.radar.piglet

Stags

Stags

21 Southernhay West
Exeter
Devon
EX1 1PR

+44 (0)1392 255202

Reference: 34598174

Request a viewing for this property

Simply fill out the form below or alternatively call us on 020 7839 0888

* Mandatory fields