5 Bedroom Land
£850,000
Dunsford, Exeter

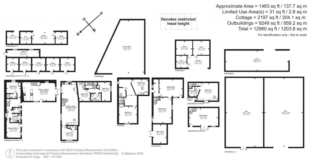
Floorplans For Dunsford, Exeter Floorplans For Dunsford, Exeter
EPC Graph for Dunsford, Exeter EPC Graph for Dunsford, Exeter

Description


A ringfenced stock farm with holiday accommodation within easy reach of Exeter and Dartmoor National Park. For sale by online auction concluding 13th May 2026 at 5pm. Two well presented holiday cottages, a range of modern and traditional agricultural buildings with productive pastureland and wildlife pond and pockets of woodland. Freehold

Method Of Sale - Auction - The property will be offered for sale by Online Traditional (unless sold prior.) The auction end date is 5pm on 3th May 2026.
The vendor reserves the right to withdraw or alter the property for sale prior to the auction end date. The property can be accessed via our website - stags.co.uk on the Auction Page.

Situation - Robertsacre Farm is situated to the West of Exeter and about 1.5 miles South of Dunsford, a popular village on the north-eastern edge of Dartmoor National Park in Devon. Dunsford is an attractive rural village, benefitting from strong visitor numbers throughout the year. The village hosts a range of amenities including a well-regarded village pub, post office, primary school and church. Steps Bridge, a famous 19th century bridge over the River Teign is located within a short drive. Nearby Exeter offers a more extensive range of amenities, services and leisure facilities to support the regional population. The surrounding area is well served by the A30 which is reached at Cheriton Bishop, about 6 miles North.

The surrounding area is a quiet rural landscape, popular with tourists and outdoor pursuit enthusiasts. Local residents benefit from close proximity to Exeter and other settlements. A number of footpaths and bridleways nearby provide good walking and hacking access to the surrounding countryside.

Introduction - Robertsacre Farm extends to approximately 77.50 acres (31.36 ha) in all and provides an opportunity to acquire a ring-fenced grassland farm with potential for further income from 2 holiday cottages.
The farm comprises a range of modern and traditional agricultural buildings as well as two well equipped holiday cottages. Adjacent to the farmyard is an orchard containing a variety of heritage Devon cider apple trees.

The land is predominately gently sloping pasture which is separated into productive enclosures. A wildlife pond lying to the North and attractive stands of mature trees across the farm provide a rich and diverse habitat.
The farm is accessed by a concrete track from Swanaford Road, which leads directly into the centre of the farmyard. A secondary access via a tarmac drive is available from the southern boundary
serving the holiday cottages.

Holiday Cottages -

(Holiday Accommodation Use)

Home Cottage - A blue front door leading to an open plan kitchen and living room with fitted kitchen units and
freestanding appliances, hardwood kitchen flooring and feature exposed stone surround to a
woodburning stove. Stairs to the first floor lead to two double bedrooms and a shared bathroom. Both bedrooms include fitted wardrobes, carpet flooring and space for a double bed. The shared bathroom featuring vinyl flooring and part tiled walls, corner wash basin, shower cubicle, corner bath and toilet.

Oakstone Cottage - (Holiday Accommodation Use)

A blue front door leading to an open plan kitchen and living room with fitted kitchen units and
freestanding appliances, hardwood kitchen flooring and feature exposed stone surround to a
woodburning stove. Stairs to the first floor lead to two double bedrooms and a shared bathroom. Both bedrooms include fitted wardrobes, carpet flooring and space for a double bed. The shared bathroom featuring vinyl flooring and part tiled walls, corner wash basin, shower cubicle, corner bath and toilet.

An internal door leads into further accommodation, briefly comprising a reception room, galley kitchen with fitted units and laminate floor and a bathroom with corner shower cubicle, toilet and wash basin. Prospective purchasers should be aware that Home Cottage and Oakstone Cottage have consent for holiday accommodation only.

The Plant Room - Comprising an oil-fi red boiler and a biomass boiler (decommissioned). Hot water produced is supplied to Home Cottage and Oakstone via a 3000-litre storage tank. In addition, water heating is supplemented by a solar iboost system which runs off an array of PV panels mounted on the roof.
Agricultural Building (32m x 10m) and (10.5m x 17.2m) plus Lean-to of (2.6m x 13m)
Reinforced concrete uprights supporting a corrugated fibre cement roof with elevations of concrete block and timber boarding. Cattle feeding barriers are included for wintering cows and rearing young stock.

Agricultural Storage Building - (18m x 5.5m) Constructed from stone walls with a hayloft to the first storey with timber boarding under a box profile roof, which was replaced in 2017. Fixed to the rear of the Storage Building is a Pole Barn (8.5m x 10.8m) constructed from timber uprights under a box profile roof.

Lambing Shed - (16.5m x 5.5m) Concrete block and corrugated fibre clad elevations under a box profile roof over a concrete base.

Stable Block - (16.5m x 3.7m) Brick and concrete block elevations with timber stable doors and cement rendered internal walls under a corrugated roof. A rendered concrete block lean-to (8.9m x 1.9)

Lower Yard Stable Block - (8.7m x 7.1m) Constructed from concrete block and timber board elevations under a box profile roof. Internally separated into loose boxes with concrete divisions.

Fodder Store - (12m x 14m Max.) Concrete block elevations with a compact earth and hardcore base under a corrugated roof.

The Land - The farmland extends to about 75 acres of productive pasture which is arranged into functional and gently sloping enclosures each surrounded by boundaries of mixed mature hedging and stock fencing. The land has been most recently used for livestock grazing and cutting crops of grass.

There are a number of small copses throughout the land and to the North is a spring fed wildlife pond which provides a haven for a range of birds and aquatic life.

The land benefits from natural water supplies from streams and ponds.There is potential for a mains connection to be installed to the land. A borehole is located in field number 3604. The borehole has not been operational for some time and prospective purchasers should satisfy
themselves as to its future use.

The land is identified as Grade 3 according to the Natural England Provisional Land Classification Maps. The soils may be described as freely draining slightly acid loamy soils, mostly suited to grass production and a range of spring and autumn sown crops.

Services - Electricity - Mains Supply
Water - Mains Supply
Oil Fired Central Heating
Private drainage to Klargester Septic Tank - Type, health and compliance
with General Binding Rules is unknown. Purchasers to satisfy themselves
with their own inspection.

Tenure - Freehold with vacant possession on completion.

Access - The property is accessed from the public highway.

Local Authority - Teignbridge District Council - www.teignbridge.gov.uk

Land Management Schemes - The land is not subject to any land management schemes.

Sporting And Mineral Rights - The sporting rights insofar as they are owned are included with the freehold title. The mineral rights are reserved by a third party. Further information is contained within the legal pack.

Fixtures And Fittings - All fixtures and fittings, unless specifically referred to within these particulars, are expressly excluded from the sale of the freehold.

Wayleaves, Rights Of Way - The property is sold subject to and with the benefit of any wayleave agreements in respect of any electricity or telephone poles, wires, stays, cables etc., or water or drainage pipes etc., either passing upon, over or under it. The property is sold subject to a right of way benefiting the neighbouring property Robertsacre House. Further details are contained within the legal pack. A public footpath crosses the land as identified on the sale plan.

Covenants - The property is sold subject to restrictive covenants contained within the title documentation. Prospective purchasers are deemed to have satisfied themselves as to the nature and effect of such covenants and are advised to inspect the legal pack and take appropriate professional
advice prior to bidding.

Plans And Boundaries - A plan, which is not to scale and is not to be relied upon, is attached to these particulars. Purchasers must satisfy themselves by inspection or otherwise as to its accuracy.

Definition Of Auction Guide And Reserve - Guide price(s) are an indication of the seller's expectation. Reserve price(s) are a figure below which the auctioneer cannot sell the lot at auction. We expect the reserve will be set within the guide range. Guide prices may change at any time prior to the auction.

Buyers & Administration Fee - The successful purchaser(s) will be liable to pay the sum of £10,000. From this a buyer's fee of £2,400 inc VAT is retained by Stags/Bamboo as a contribution towards the online auction platform costs, and £7,600 is payable towards the purchase price. An additional administration fee of £1,200 inc VAT will be payable by the successful purchaser immediately after the auction.

Deposit Payment - The Seller and Buyer agree that the winning Bidder will transfer the remainder of the 10% deposit (less the amounts paid online) within 48 hours of the end of this online auction. Clauses 6.1, 6.2 and 7.1 of the Holding Deposit Agreement shall be read as amended to reflect this accordingly. The remainder of the 10% deposit payment is handled by the buyer's solicitors and must be in their client account no later than 48 hours post exchange. It is essential that you instruct your solicitor in advance of the auction.

Proof Of Identity - Under Money Laundering Regulations 2017 it is a requirement for Estate Agents to perform due diligence checks on any person that intends to bid at auction. There will be a requirement for all bidders to register via the online sales site and complete the ID checks. There is no charge for
this administration.

Auction Legal Pack - Copies of the legal pack and special conditions of sale are available online to be downloaded, via the tab on the online auction property listing page. Prospective purchasers will need to register with the Bamboo Proptech online platform in order to download the legal pack. It is the purchaser's responsibility to make all necessary enquiries prior to the auction. Prospective purchasers are strongly advised to inspect the legal documentation, this will/may contain material information regarding the property, and to consult legal advice prior to bidding.

The incoming purchaser will reimburse the vendor for the cost of the searches (£948.50 + VAT) on completion.

Solicitor Acting - Tom Henry
Hethertons Solicitors
Tudor Court, Opus Avenue
York Business Park, York
YO26 6RS
Tel: 01904 528200 Email: th@hethertons.co.uk

Completion Date - The completion date will be as dictated by the solicitor and included in the legal pack.

Directions - From the A38 Devon Expressway, take the exit near South of Chudleigh and sign-posted A3193 "Teign Valley". At the end of the slip-road turn right towards the Teign Valley. Take the next right onto the A3193 sign-posted "Teign Valley". Follow the road for about 6 miles and pass Venn Park Garage on the left. Take the next left onto Neadon Lane and continue until the T-junction. Turn right and follow the lane for about 0.5 of a mile before reaching Robertsacre Farm.

What3words - ///hides.multiple.extend

Viewings - Viewings Strictly by appointment only. Please contact Stags Farm Agency on 01392 680059 or email farms@stags.co.uk

Warning - Farms can be dangerous places. Please take care when viewing the property, particularly in the vicinity of the farm buildings.

Disclaimer - Stags gives notice that: 1. These particulars are a general guide to the description of the property and are not to be relied upon for any purpose. 2. These particulars do not constitute part of an offer or contract. 3. All photographs, measurements, floorplans and distances referred to are given as a guide only. 4. Whilst we have tried to describe the property as accurately as possible, if there is anything you have particular concerns over or sensitivities to, or would like further information about, please ask prior to arranging a viewing.

Stags

Stags

21 Southernhay West
Exeter
Devon
EX1 1PR

+44 (0)1392 255202

Reference: 34597612

Request a viewing for this property

Simply fill out the form below or alternatively call us on 020 7839 0888

* Mandatory fields