3 Bedroom Detached
£350,000
Huntham Close, Stoke St. Gregory, Taunton

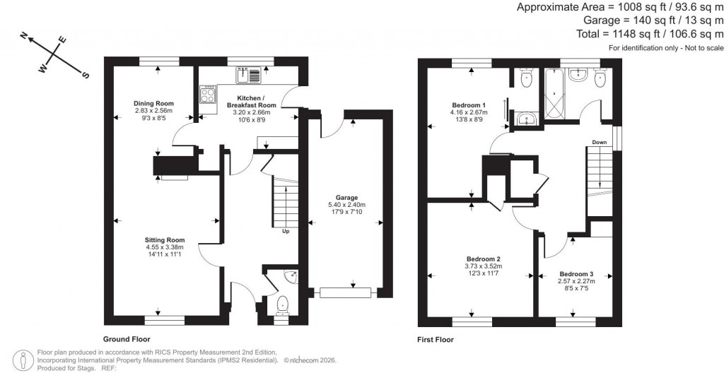
Floorplans For Huntham Close, Stoke St. Gregory, Taunton
EPC Graph for Huntham Close, Stoke St. Gregory, Taunton

Description


No chain. An attractive three-bedroom detached home set in a sought-after cul-de-sac, enjoying delightful views over a central green. Offering generous living space, a well-maintained low-maintenance garden, garage, and ample driveway parking, this property is ideal for comfortable family living in a desirable setting. Council Tax Band D, EPC rating D, Freehold

Situation - The property is located just on the edge of the favoured village of Stoke St Gregory. Stoke St Gregory provides a range of amenities with a community shop, and pub, primary school, church, village hall and the nearby village of North Curry is approximately 2 miles away and offers a more extensive range of local facilities with the County Town of Taunton being about 10 miles away offering an extensive range of shopping, educational, sporting and culture facilities, along with access to the M5 motorway and there is a mainline railway link. Stoke St Gregory is also on a bus route to Taunton.

Description - A detached family home in a quiet cul-de-sac on the edge of Stoke St Gregory, offering spacious accommodation, driveway parking and garage.

Accommodation - A welcoming and spacious entrance hall provides access to a cloakroom/W.C. with doors to the kitchen and the main living accommodation. The sitting room enjoys a pleasant front aspect and features an attractive wood-burning stove, creating a warm and inviting focal point. This room opens through to the dining area, which benefits from views across the rear garden. The kitchen is fitted with a range of matching wall and base units and offers space for a washing machine/dryer and fridge/freezer. A useful side door provides direct access to the garage and outside.

Stairs rise to a generous first-floor landing which benefits from a window, creating a light and airy space, together with a useful storage cupboard. The principal bedroom is a generous double room and enjoys the added benefit of a W.C. and wash basin, with further space available for wardrobes. Bedroom two is a large double room with a built-in wardrobe and attractive views over the front garden. Bedroom three is a good-sized single room, also fitted with a built-in wardrobe.

Outside - Outside, a useful covered area off the kitchen provides sheltered access to the garage and includes external electric sockets. The rear garden has been designed for ease of maintenance, featuring patio pathways and gravelled areas interspersed with well-stocked borders containing a variety of shrubs and bushes. The garden is enclosed by fencing and benefits from a useful shed with power and light. The garage is well equipped with power, lighting and water with an up-and-over door to the front. A side access path links the rear garden to the front of the property.

To the front is a colourful and well-stocked garden providing a good degree of privacy, alongside a private driveway offering parking for at least three vehicles. The property enjoys a particularly appealing position, overlooking an attractive green within the centre of the cul-de-sac, with further views across open countryside beyond neighbouring properties.

Services - Mains electric, water and drainage connected. Oil fired central heating. Mobile signal good outdoor with major networks, standard and superfast broadband available with Openreach (Information via OFcom). Please note the agents have not inspected or tested the services.

Directions - Proceed into the centre of the village of Stoke St Gregory and turn right into Huntham Lane. Proceed along this road turning right into Huntham Close where the property can be found after a short distance on the on the right hand side identified by a Stags for sale board.

Stags

Stags

5 Hammet Street
Taunton
Somerset
TA1 1RZ

+44 (0)1823 256625

Reference: 34593583

Request a viewing for this property

Simply fill out the form below or alternatively call us on 020 7839 0888

* Mandatory fields