8 Bedroom Detached
£925,000
Stradishall Road, Hundon, Sudbury

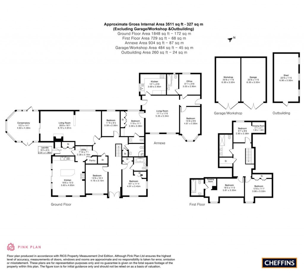
Floorplans For Stradishall Road, Hundon, Sudbury

Description


This idyllic country home is set within an expansive 1.5 acres of beautifully maintained grounds, offering approximately 3,500sq ft of living accommodation. The main house boasts an impressive layout with three reception rooms, six generously sized bedrooms and four well-appointed bathrooms. Adding to the charm of this property is a delightful two-bedroom annexe with two reception rooms, shower room and separate wc. The property enjoys an elevated setting, providing far reaching countryside views. (

The charming and picturesque village of Hundon with its highly regarded primary school, public house and village shop is located approximately six miles North East of the thriving market town of Haverhill and is within easy reach of the A143 providing access to Bury St Edmunds. Cambridge is approximately 22 miles distant, M11 (15 miles approx), Saffron Walden (18 miles approx).

Ground Floor -

Entrance Hall - Two radiators, stairs to first floor, storage cupboard housing boiler, doors to:

Bedroom One - 4.90m x 3.45m (16'1 x 11'4) - Dual aspect windows, radiator, fitted wardrobes, door to:

Ensuite - Three piece suite comprising panelled bath, pedestal hand wash basin, low wc, extractor fan, heated towel rail, obscure window.

Bedroom Two - 4.19m x 3.15m (13'9 x 10'4) - Window to front, radiator.

Bedroom Three - 3.58m x 2.57m (11'9 x 8'5) - Window to rear, radiator.

Shower Room - Three piece suite comprising shower enclosure, pedestal hand wash basin, low wc, extractor fan, radiator.

Family Room - 8.74m x 4.90m (28'8 x 16'1) - A large family room, divided into 2 areas with a window to the rear, fireplace with woodburner fitted, radiator, sliding doors to:

Conservatory - 4.62m x 4.29m (15'2 x 14'1) - UPVC with polycarbonate roof, radiator, power and lighting connected, doors to rear garden.

Utility Area - 2.39m x 2.16m (7'10 x 7'1) - Space for fridge/freezer, door to pantry, open to kitchen, door to:

Laundry Room - 2.79m x 1.96m (9'2 x 6'5) - Plumbing for washing machine, space for tumble dryer, storage cupboards, door to rear garden.

Kitchen/Diner - 5.64m x 4.65m (18'6 x 15'3) - Fitted with base and eye level units, integral dishwasher, twin ceramic sink, Rangemaster cooker with extractor over, Feature island with breakfast bar, two windows to front, sliding patio doors to garden.

First Floor -

Landing - Velux window, radiator, airing cupboard, doors to:

Bedroom Four - 2.92m x 2.59m (9'7 x 8'6) - Window to rear, radiator, doorway to dressing area.

Shower Room - Three piece suite comprising double shower enclosure, twin vanity hand wash basin, low wc, extractor fan.

Bedroom Five - 5.61m x 3.35m (18'5 x 11'0) - Window to front, radiator, fitted wardrobes, door to:

Ensuite - Three piece suite comprising panelled bath, pedestal hand wash basin, low wc, extractor fan, radiator.

Bedroom Six - 3.86m x 3.53m (12'8 x 11'7) - Window to front, eaves storage,

Annexe -

Entrance Hall - Open to living room, doors to:

Office - 3.02m x 2.95m (9'11 x 9'8) - Window to rear, door to:

Bathroom - Three piece suite comprising panelled bath with shower over, hand wash basin, low wc, heated towel rail, obscure window.

Bedroom One - 4.80m x 2.90m (15'9 x 9'6) - Bay window to front, radiator.

Living Room - 5.36m x 5.33m (17'7 x 17'6) - Woodburning stove, two windows to front, radiator, door to garden, door to bedroom two.

Kitchen - Fitted with base and eye level units, stainless steel sink, integral dishwasher, plumbing for washing machine, space for fridge/freezer, electric double oven, induction hob with extractor over, window to side, radiator, boiler.

Bedroom Two - 3.58m x 3.38m (11'9 x 11'1) - Window to rear, fitted wardrobes, radiator, door to:

Wc - Fitted two piece suite comprising vanity hand wash basin, low level wc, radiator.

Outside - A wonderful private garden, with panoramic views of the countryside. There are two outbuildings, allotment area, summerhouse with power and lighting connected, large patio area for seating with the remainder of the gardens being laid lawn. Enclosed by conifer hedging. There is the benefit of an orchard with a variety of fruit trees including Apple, Pear and Plum trees.

Garage/Cartlodge - Double garage/workshop with power and lighting connected.

Driveway - Electric gates open up onto a generous driveway for multiple vehicles.

Agents Note - We have been made aware that the council tax band for High Hollow is F, as shown on our particulars, however there is a separate council tax band for the Annexe which is called 'The Cottage' which is council tax band A.

We have been made aware the property has a septic tank.

AGENTS NOTE - For more information on this property, please refer to the Material Information brochure that can be found on our website.

VIEWINGS By appointment through the Agents.

SPECIAL NOTES 1. None of the fixtures and fittings are included in the sale unless specifically mentioned in these particulars.

2. Please note that none of the appliances or the services at this property have been checked and we would recommend that these are tested by a qualified person before entering into any commitment. Please note that any request for access to test services is at the discretion of the owner.

3. Floorplans are produced for identification purposes only and are in no way a scale representation of the accommodation.

Cheffins

Cheffins

Cavendish House
27a High Street
Haverhill
Suffolk
CB9 8AD

+44 (0)1440 707076

Reference: 34591803

Request a viewing for this property

Simply fill out the form below or alternatively call us on 020 7839 0888

* Mandatory fields