4 Bedroom Detached
£690,000
Fosbrooke View, Ravenstone, LE67

Floorplans For Fosbrooke View, Ravenstone, LE67 Floorplans For Fosbrooke View, Ravenstone, LE67

Description


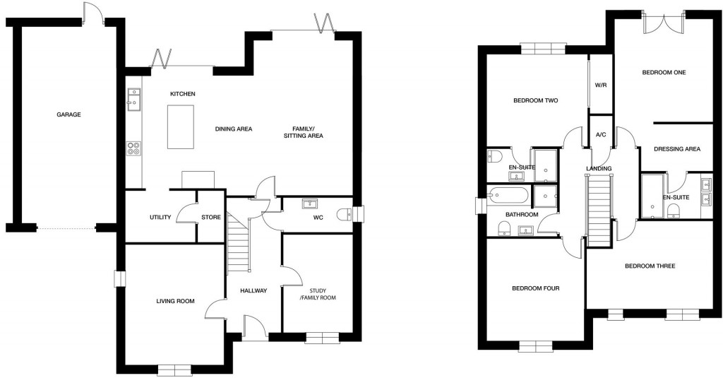
PLOT 5 - THE SYCAMORE HOUSE - Estimated completion - October 2026 - An elegant 4 bedroom home with an enclosed rear garden, driveway and garage, offering 2088sqft of stylish accommodation, backing onto beautiful open space. Featuring, En-suite to master bedroom & bedroom 2, Solar panels to the roof & an EV charging point. ASSISTED MOVE SCHEME now available

*First plots now released* - Fosbrooke View, is an exciting new development featuring nine, beautifully designed, luxury homes in a picturesque village location. These traditionally built residences offer the perfect blend of modern amenities whilst maintaining charming architectural detail. Each home has been thoughtfully crafted to provide spacious living areas, elegant finishes, and beautiful outdoor spaces, catering to families and individuals alike. Register your interest with our Ashby de la Zouch office/team.

Location - Nestled in the serene countryside of Leicestershire, Ravenstone is a hidden gem that perfectly captures the essence of rural England. Located just 5 miles northeast of Ashby-de-la-Zouch and about 15 miles southwest of the vibrant city centre of Leicester, this quaint village offers a unique escape into nature, history, and community spirit.

Surrounded by rolling hills and lush farmland, it is an idyllic spot for nature lovers and outdoor enthusiasts. The scenic landscape provides the perfect backdrop for walking and cycling, with numerous trails winding through the countryside. Whether you're looking for a peaceful stroll or an invigorating bike ride, the beauty of the area invites you to explore its many paths. The surrounding countryside is also dotted with local parks and nature reserves, offering ample opportunities for picnics, bird watching, exploring and more.

While Ravenstone is a small village it still offers amenities such as a village shop and post office, but residents are not far from larger towns like Ashby-de-la-Zouch and Coalville, where a large variety of shops, cafes, and amenities can be found. This proximity allows residents to enjoy the tranquillity of village life while still having access to everything they need for daily living. It's a perfect balance that many find appealing.

Specification - *Haden fitted kitchen

*Stone kitchen worktops

*Porcelanosa wall tiling

*Chrome door ironmongery

*De'Longhi & Bosch integrated appliances including oven, hob, fridge freezer and microwave

*Roca sanitary ware

*Hive heating system

Viewing Arrangements - Strictly by prior appointment via the agents Howkins & Harrison - Tel:01530-410930 Option 1

Local Authority - North West Leicestershire District Council - Tel:01530-454545

Floorplan - Howkins & Harrison prepare these plans for reference only. They are not to scale.

Important Information - Every care has been taken with the preparation of these Sales Particulars, but complete accuracy cannot be guaranteed. In all cases, buyers should verify matters for themselves. Where property alterations have been undertaken buyers should check that relevant permissions have been obtained. If there is any point, which is of particular importance let us know and we will verify it for you. These Particulars do not constitute a contract or part of a contract. All measurements are approximate. The Fixtures, Fittings, Services & Appliances have not been tested and therefore no guarantee can be given that they are in working order. Photographs are provided for general information and it cannot be inferred that any item shown is included in the sale. Plans are provided for general guidance and are not to scale.

Tenure & Possession - The property is freehold with vacant possession being given on completion

Howkins & Harrison

Howkins & Harrison

58 Market Street
Ashby De La Zouch
LE65 1AN

+44 (0)1530 410930

Reference: 34590454

Request a viewing for this property

Simply fill out the form below or alternatively call us on 020 7839 0888

* Mandatory fields