4 Bedroom Barn Conversion
£1,000,000
The Avenue, Exton, Rutland

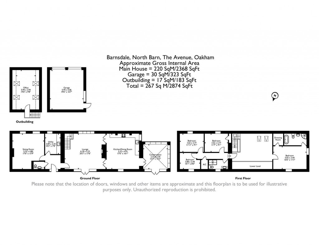
Floorplans For The Avenue, Exton, Rutland
EPC Graph for The Avenue, Exton, Rutland

Description


North Barn is a distinguished four-bedroom stone-built barn conversion that combines the charm of a period property with the advantages of modern energy efficiency. Set within a generous plot, it features a beautifully established garden, ample off-road parking with garaging, and a peaceful, private setting just outside the sought-after village of Exton.

Ground Floor - North Barn offers a rare opportunity to acquire a spacious family home that combines the character of a period property with the innovation of complete energy independence. Unlike many larger houses that are costly to run, North Barn has been carefully modernised with the capability of operating fully off-grid, powered entirely by renewable energy. The result is a home that delivers modern comfort alongside long-term sustainability.

Entering the property, a central entrance hall with flagstone flooring provides access to the ground floor accommodation. To the right lies the main reception room, a striking part-double height space with floor-to-ceiling glazing to both the front and rear, filling the room with natural light. A feature fireplace houses a log-burning, while double doors lead seamlessly through to the dining kitchen.

The dining kitchen has a range of fitted units, space for freestanding appliances, and ample room for a dining table. Double doors open into a timber-framed garden room, with French doors leading out to a patio area. At the opposite end of the house is a further reception room, equally light-filled thanks to ample glazing. Completing the ground floor is a large utility room with space for white goods, and a downstairs cloakroom, both accessed from the entrance hall.

First Floor - From the main reception room, stairs rise to a generous galleried landing with a vaulted ceiling and exposed beams. This versatile space is large enough to accommodate a study, seating area, or a variety of other uses. The principal bedroom suite sits to one side, complete with en suite bathroom, walk-in wardrobe, and a window framing pretty views over the garden. To the other side of the landing are three further bedrooms-one double and two singles-served by a beautifully appointed shower room with walk-in shower, wash hand basin, WC, and heated towel rail.

Outside - Externally, North Barn sits within a generous plot of just over half an acre. The well-established garden enjoys westerly sunshine, with a gravel terrace directly off the property providing a superb setting for outdoor entertaining. Beyond lies a large lawn, flanked by mature borders, specimen trees and hedging, creating year-round interest and a high degree of privacy.

The property is approached via a shared driveway, leading to ample private parking and a double garage. Above the garage is a useful home office, accessed via an external staircase. A timber pavilion with pizza oven sits at the far end of the garden, creating the ideal all-weather entertaining space.

Location - North Barn is located just outside of Exton, a charming conservation village set in rolling countryside just a mile north of Rutland Water. The village features a popular pub, The Fox and Hounds, and a well-regarded primary school. Nearby historic market towns, Oakham and Stamford, offer a wealth of shops, restaurants, and amenities. With the A1 just four miles east and the A606 providing east-west access, Exton enjoys excellent road connections for commuting and travel.

Services & Council Tax - The property is offered to the market with all mains services, a ground source heat pump and solar panels.

Rutland County Council - Tax Band F

Tenure - Freehold

Andrew Grant

24 Catmos Street
Oakham
Rutland
LE15 6HW

+44 (0)1572 724437

Reference: 34583777

Request a viewing for this property

Simply fill out the form below or alternatively call us on 020 7839 0888

* Mandatory fields