5 Bedroom Detached
£750,000
Saxons Lea, Pickwell

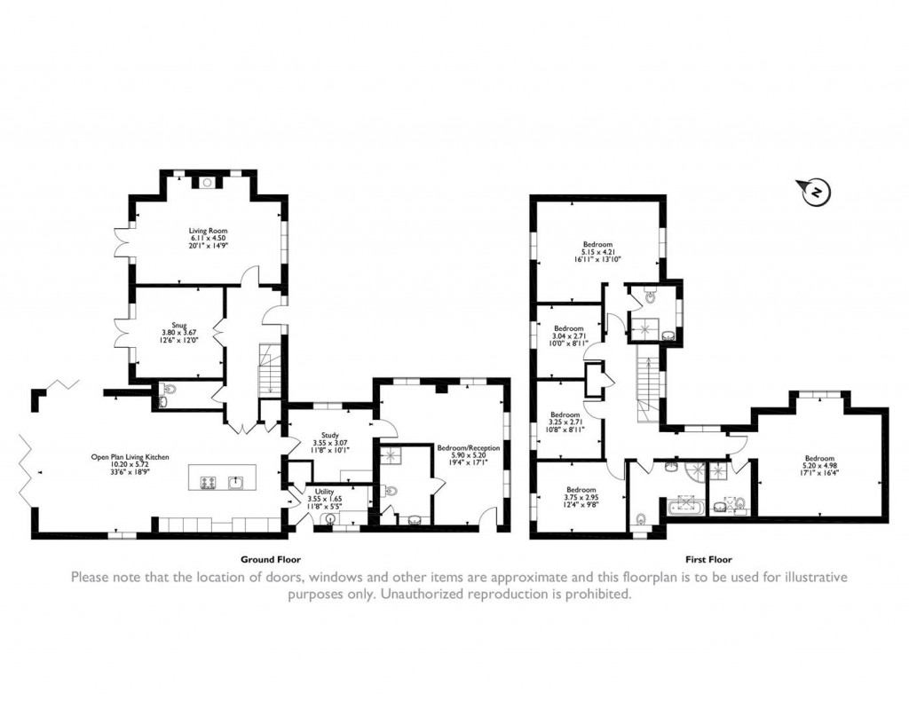
Floorplans For Saxons Lea, Pickwell
EPC Graph for Saxons Lea, Pickwell

Description


Athelstan House, originally built in 1996 is a five-bedroom, detached family home offering spacious and flexible accommodation whilst sitting on a substantial and mature corner plot in this popular Leicestershire village.

Ground Floor - A spacious entrance hall gives way to the ground floor that in brief comprises an open plan living kitchen, two reception rooms, a study, a ground floor ensuite bedroom, utility room and downstairs cloakroom. The centrepiece of the property is the incredible 34 ft. open plan living kitchen with bi-folding doors to two elevations creating a wonderful flow from in to out. The kitchen area itself has a comprehensive range of shaker style fitted units with a variety of integrated appliances and a large central island with breakfast bar. The utility room is accessed from the kitchen providing further storage, space for white goods and a door out to the side of the property.

The main living room spans the depth of the property from front to rear with a French door opening out to the garden and a beautiful, stone and brick fireplace featuring an exposed oak beam. The snug sits adjacent, also with a French door opening out to the patio and garden.

The ground floor is completed by a useful study, accessed from the kitchen that flows through to the converted garage that is currently used as a ground floor ensuite bedroom/reception room.

First Floor - To the first floor the light and airy landing gives way to five double bedrooms, a family bathroom and two ensuites. The generously sized principal bedroom sits above the garage and is complemented by an ensuite shower room with a Velux window. A second generously sized double bedroom sits to the other end of the property with a dual aspect, built-in wardrobes and a well-appointed ensuite shower room. There are three further double bedrooms all served by the large family bathroom with a bath, corner shower, wash hand basin, low flush lavatory and heated towel rail.

Outside - To the front of the property there is ample off-road parking on the private gravelled driveway and a large front garden that's mainly laid to lawn with mature planting and specimen trees. There is a set of timber double gates to the left-hand side of the property providing further secure parking on a gravelled driveway and side access to the rear garden.

The rear garden is predominantly laid to lawn with large patio sitting directly off the rear of the property and separate terraced area providing ideal spaces for outdoor entertaining. The garden is a wonderful size and due to its orientation enjoys the sun for the majority of the day and a beautiful view of the village church.

This superb village home provides ample and flexible living accommodation whilst sitting in its own generous grounds of approximately 0.3 acres and is a property that must be viewed to be appreciated.

Location - Pickwell is a tranquil village on the Leicestershire/Rutland borders. The village is located between the well-serviced market towns of Oakham and Melton Mowbray. The larger neighbouring village of Somerby offers a variety of services, including a village shop and post office, primary school, doctor's surgery and public house.

Services & Council Tax - The property is offered to the market with all mains services and gas-fired central heating. Council Tax Band G - Melton Borough Council

Tenure - Freehold

N.B. - *Under the provisions of the Estate Agent's Act 1979 we are required to disclose a personal interest in the sale of this property.

Andrew Grant

24 Catmos Street
Oakham
Rutland
LE15 6HW

+44 (0)1572 724437

Reference: 34582946

Request a viewing for this property

Simply fill out the form below or alternatively call us on 020 7839 0888

* Mandatory fields