3 Bedroom Bungalow
£450,000
Buckerell, Honiton

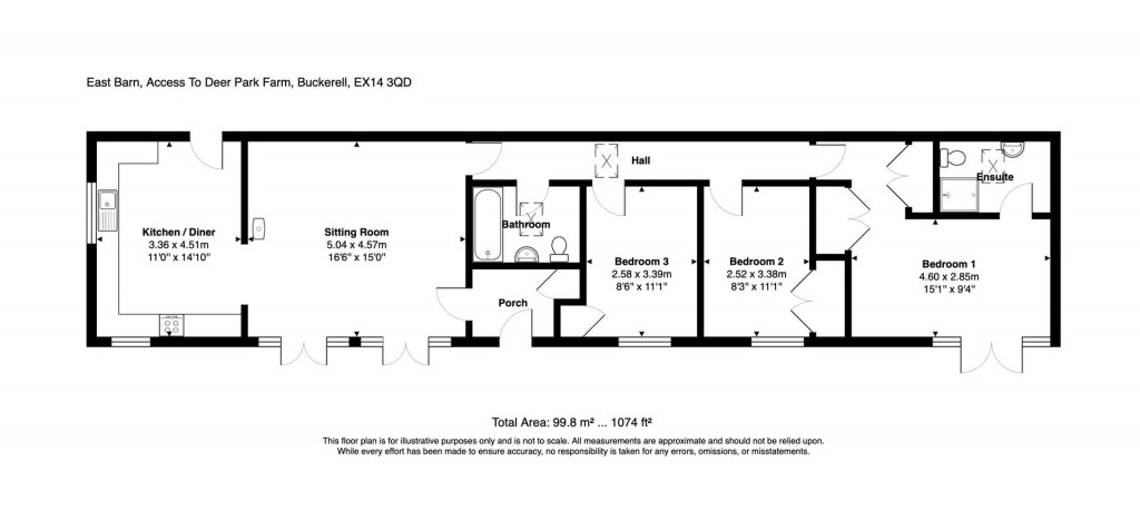
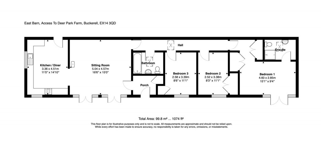
Floorplans For Buckerell, Honiton
EPC Graph for Buckerell, Honiton

Description


A rural semi-detached 3 double bedroom barn conversion surrounded by nearby farmland and rolling hills with parking, front and rear gardens and no onward chain.

Situation - East Barn is located East of the nearby village of Buckerell and enjoys a rural setting surrounded by nearby farmland and the rolling hills of this popular part of East Devon, an Area of Outstanding Natural Beauty. Buckerell has a thriving community with a pretty parish church situated east of the larger village of Feniton, which has a village shop, post office and main line rail link to Exeter central and London Waterloo. To the east is the busy market town of Honiton which has an excellent range of shops and facilities. These include many independent retailers and eateries, as well as a main line rail link to London Waterloo. The popular town of Ottery St Mary, with its renowned The King's School (secondary and in catchment) is to the south. The city of Exeter is to the west and has an excellent shopping centre, theatres, cinemas, sports and leisure facilities, main line rail link to London Paddington, M5 access and international airport. The World Heritage Jurassic Coast at Sidmouth, one of East Devon's most popular coastal resorts, is about 11 miles to the south.

Description - Nestled within an attractive development of barn conversions is this well proportioned 3 double bedroomed semi-detached property with no onward chain. Benefitting from, vaulted ceilings, underfloor heating throughout, exposed wooden cross beams, light and bright rooms and with each room overlooking an orchard garden to the front. The property comprises, entrance hall with storage cupboard, sitting room with log burner and patio doors to garden. Family bathroom with bath, W/C and wash hand basin. A double aspect kitchen/diner with modern wall and base units and tile splash backs, electric cooker with gas hob, door to rear garden, space and plumbing for washing machine and other utilities as well as space for a dining table. Benefitting from 3 double bedrooms all of which having windows overlooking the garden to the front and built in storage, additionally the master bedroom features an en suite shower room, two double built in wardrobes and patio doors out into the garden.

Outside - Outside there are two areas of garden, one laid to lawn at the rear and an enclosed garden to the front with trees and a patio adjoining the property. There is an area of parking next to the property.

Services - Mains electric and water. LPG gas. Communal sewage treatment plant. Fibre broadband via gigaclear (up to 1,000 Mbps) and standard broadband (up to 9 Mbps) and mobile coverage outside via EE, Three and Vodafone, O2 maybe limited, likely 5G via EE (OFCOM). Solar PV with FIT.

Residential Lettings - If you are considering investing in a Buy To Let or letting another property and require advice on current rents, yields or general lettings information to ensure you comply, please contact a member of our lettings team on 01404 42553.

Directions - What3words: ///woods.classed.removals

Stags

Stags

Bank House
66 High Street
Honiton
Devon
EX14 1PS

+44 (0)1404 45885

Reference: 34582326

Request a viewing for this property

Simply fill out the form below or alternatively call us on 020 7839 0888

* Mandatory fields