2 Bedroom Detached
£625,000
Shillingford St. George, Exeter

Floorplans For Shillingford St. George, Exeter
EPC Graph for Shillingford St. George, Exeter

Description


A charming and beautifully presented two-bedroom cottage with generous living space, landscaped gardens, ample parking and a substantial barn, set in a sought-after village on the edge of Exeter.

Situation - Honeysuckle Cottage is situated in the sought-after village of Shillingford St. George, a picturesque setting on the edge of Exeter. The village enjoys a strong community feel whilst offering convenient access to the Cathedral City of Exeter, which provides an extensive range of shopping, dining, schooling and transport facilities, including mainline rail links and access to the M5 and A30. The surrounding area offers an abundance of countryside walks and outdoor pursuits, making this an ideal location for those seeking a balance between rural living and accessibility.

Description - Honeysuckle Cottage is a charming and beautifully presented two-bedroom home, offering spacious and well-balanced accommodation throughout. The property combines character features with contemporary finishes, creating a light and welcoming living environment ideally suited to modern lifestyles. A particular feature of the property is the excellent flow between the principal living spaces, along with the generous proportions of both the accommodation and the plot. The property also benefits from substantial outbuildings, including a large barn, providing excellent versatility for storage, workshop use or garaging.

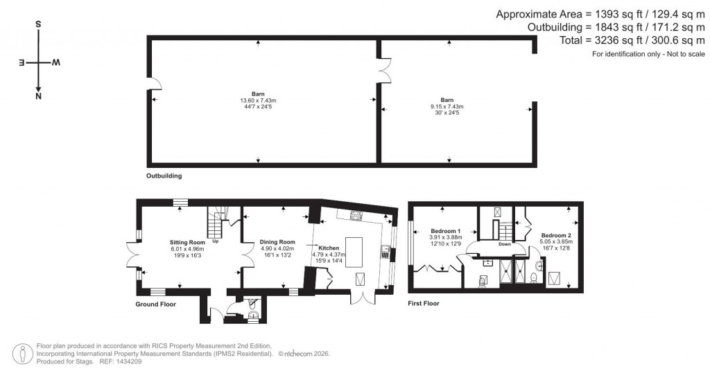
Accommodation - The property is entered via an entrance porch, with a conveniently located cloakroom/WC. The sitting room is an impressive and well-proportioned space, filled with natural light and enjoying direct access to the garden via glazed French doors. A freestanding log burner provides an attractive focal point, creating a warm and inviting atmosphere, whilst a staircase rises to the first floor. Double doors lead through to the spacious dining room, offering ample room for a large dining table alongside a further seating area, making it a highly versatile family and entertaining space. The dining room flows seamlessly into the kitchen, creating an open-plan feel. The kitchen is well-appointed with a range of fitted units, integrated appliances and a central island with breakfast bar. The room benefits from excellent ceiling height and extensive glazing, allowing for plenty of natural light, along with a side door providing access to the outside.

On the first floor are two generous double bedrooms, both benefiting from built-in storage and en-suite facilities. The principal bedroom enjoys an attractive outlook to the east, with large glazed windows allowing for an abundance of morning light and far-reaching views. The second bedroom is equally well-proportioned, making it ideal for guests or family.

Outside - The outside space is a particular feature of Honeysuckle Cottage, with the property set within a generous plot. The gardens provide a pleasant setting for outdoor dining and relaxation, with direct access from the sitting room enhancing the indoor-outdoor lifestyle. There is ample off-road parking for multiple vehicles.

A standout feature of the property is the substantial barn, currently utilised as a combination of storage, workshop and garaging, offering significant flexibility for a variety of uses. In addition, there is a further barn which is shared with neighbouring properties.

Services - Utilities: Mains electricity and water
Drainage: Mains drainage
Heating: Oil fired boiler - Underflooring heating on the ground floor and wood burner
Tenure: Freehold
EPC: C(74)
Council tax band: E
Standard and Ultrafast broadband available (Ofcom)
EE, Three, O2 and Vodafone mobile network available (Ofcom)

Stags

Stags

21 Southernhay West
Exeter
Devon
EX1 1PR

+44 (0)1392 255202

Reference: 34580642

Request a viewing for this property

Simply fill out the form below or alternatively call us on 020 7839 0888

* Mandatory fields