Land
£250,000
Horwood, Bideford

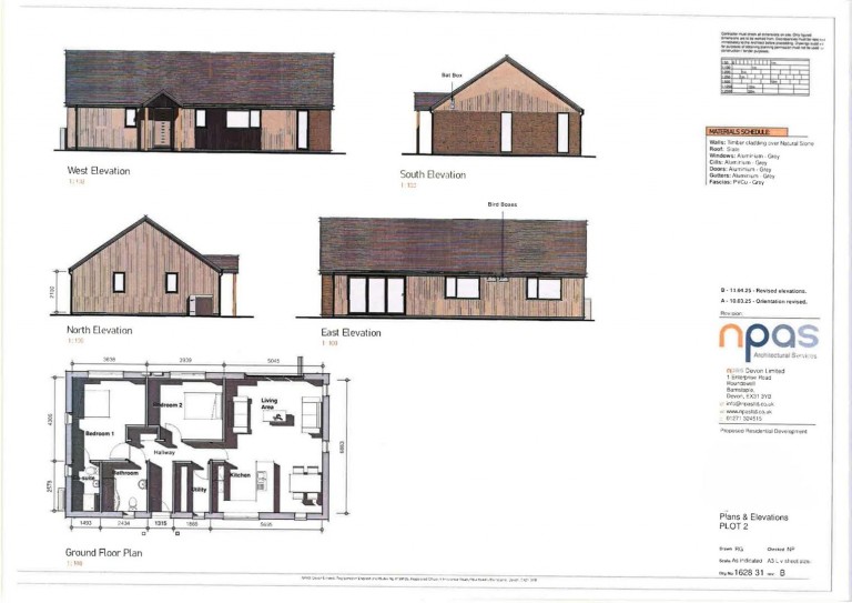
Floorplans For Horwood, Bideford

Description


A freehold re-development site of 0.65 acres, with consent for 2 new detached bungalows [2 bedrooms & 3 bedrooms] in a sought after village close to the coast at Instow.

Situation And Amenities - Parsonage Farm lies on the fringe of the village of Horwood in glorious rural surroundings yet is within easy reach of various towns and the North Devon Coastline. Horwood boasts an ancient Church. Other amenities nearby include Lovacott Primary School about 1 mile, and the Hunters Inn and restaurant at Newton Tracey, about 2 miles. The historic port town Bideford is about 4 miles and offers a range of every day amenities including supermarkets, pubs, restaurants and leisure facilities. Just 4 ? miles away is the popular coastal and estuary village of Instow with sandy beach and access to the Tarka Trail. The Regional Centre of Barnstaple, is about 6 miles north east and houses the area's main business, leisure and shopping venues as well as District Hospital. At Barnstaple there is access to the North Devon Link Road which runs on in about 45 minutes or so to Junction 27 of the M5 Motorway and where Tiverton Parkway offers a fast service of trains to London Paddington in just over 2 hours. The nearest International Airports can be found at either Bristol or Exeter.

Services - Mains electricity and water [currently metered] are available nearby. It is envisaged that a private drainage system/s will need to be installed.

Local Authority - North Devon District Council. Telephone: 01271 327711 (www.northdevon.gov.uk).

Viewing - Please contact Stags to arrange a viewing appointment. Tel: 01271 322833. Email: barnstaple@stags.co.uk

Directions - At Roundswell roundabout take the first exit on the B3232 towards Torrington and continue for approximately 2.7 miles. Once you reach the outskirts of Newton Tracey take the first right sign posted Lovacott/Horwood. Continue for approximately 1.5 miles. Just before the Church bear left signed posted Ashridge/Torrington follow the lane and the farm is about 1/3rd of a mile.

Disclaimer - These particulars are a guide only and are not to be relied upon for any purpose.

Description/Planning - Full planning permission was achieved on 17th June, 2025 for 'Demolition of rural building and erection of two dwellings and associated works [fall back position following approval 79017] (departure)' All relevant documentation can be viewed via the North Devon Council website, Planning Section, using the latest planning reference; 79706 for access. The two dwellings proposed are both bungalows. The proposed elevations and layouts are shown in the plans accompanying these particulars.
This former farmyard will eventually comprise 5 detached dwellings, 3 of which are already established, each with independent access points. The planning consent for the two proposed bungalows currently shows an access which is initially shared however, there may be scope to totally separate these, subject to planning permission.

Stags

Stags

30 Boutport Street
Barnstaple
Devon
EX31 1RP

+44 (0)1271 322833

Reference: 34577705

Request a viewing for this property

Simply fill out the form below or alternatively call us on 020 7839 0888

* Mandatory fields