4 Bedroom Detached
£649,950
Huntshaw, Torrington

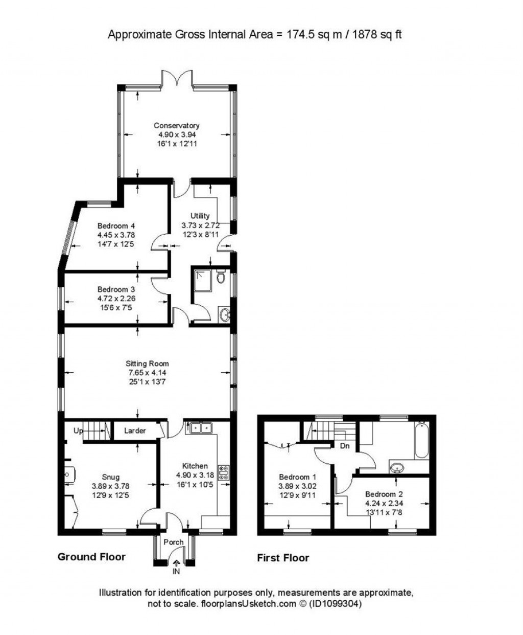
Floorplans For Huntshaw, Torrington
EPC Graph for Huntshaw, Torrington

Description


Set in a truly idyllic unspoilt valley, a delightful period cottage with mature gardens and grounds of around 1 acre, ample parking and garaging. No onward chain. EPC Band E.

Situation - The property is situated in the small Devonshire hamlet of Huntshaw Mill nestled in some of North Devon's most attractive and un-spoilt countryside where numerous woodland walks can be found. The property is situated an equal distance from Bideford and the market town of Great Torrington which offers a wide range of amenities for its size, including bank, butchers, bakeries, Post Office, greengrocers, various public houses, primary and secondary School. There is also a golf course on the outskirts along with other nearby tourist attractions include RHS Rosemoor, The Plough Arts Centre (theatre, cinema and gallery) and the Tarka Trail.
The port and market town of Bideford sits on the banks of the River Torridge, offering an excellent range of amenities including banks, butchers, bakeries, various shopping facilities, restaurants, schooling for all ages and five supermarkets. Nearby, Westward Ho! has a safe and sandy surfing beach, access to the South West Coastal footpath, Northern Burrows Country Park and the Royal North Devon Golf Club.

Barnstaple town offers all of the areas main business, shopping and commercial venues with good transport opportunities by road (A361 connecting to Junction 27 of the M5) to the motorway and rail via the Tarka line to Exeter and Tiverton Parkway.

Description - Set in a truly idyllic unspoilt valley, Mill Cottage is a delightful period cottage with mature gardens and grounds of around 1 acre. The original cottage has been extensively extended over time and now offers a wonderful home with spacious accommodation while also enjoying lovely unspoilt views. The property is accessed via a gated entrance leading to extensive parking with garage and workshop. The property is being offered with no onward chain and certainly needs to be viewed to be fully appreciated.

Accommodation - A useful porch leads into the modern fitted kitchen with a range of base and wall units with space for a range cooker and dishwasher and space for a free standing fridge freezer. The kitchen has ample space for a table and chairs and benefits from a walk in larder. The snug has stone and brick fireplace with multi-fuel stove, built in cupboard to the adjacent recess and window to the front elevation. The sitting room leads off of the kitchen which is a generous dual aspect room enjoying views over the garden. A rear inner hallway leads through to two ground floor double bedrooms, a wet room with walk in level shower, WC, heated towel rail and wash hand basin with vanity unit. The utility room has a range of built in units with space and plumbing for washing machine, tumble dryer and other white good. Door leading to the garden. To the rear of the property is the conservatory which is possibly the most impressive space of the house with stunning views of the garden and valley with direct access out onto a delightful balcony.

A further two bedrooms can be located on the first floor of the property. Both of these bedrooms are generous doubles, each having built in wardrobes and drawers, with bedroom one having a walk-in wardrobe. The bathroom has bath with shower attachment over, WC, built in storage cupboards with inset wash hand basin and airing cupboard.

Outside - The driveway is accessed via double wooden gates, gravelled and has plenty of space for many vehicles. along with a garage and workshop. The gardens themselves are a real compliment to the house and its setting, being completely private and secluded with views of the countryside and woodland in all directions. They are primarily laid to lawn and divided into manageable sections with an assortment of mature shrubs, plants and trees and a stream that borders the bottom of the garden All amounting to just under 1 acre.

Services - Council Tax Band E.
Mains electric.
Oil fired heating.
Private water supply and sewage.
According to Ofcom, Ultrafast broadband is available at the property. For further information such as mobile signal please visit the Ofcom website.

Stags

Stags

4 The Quay
Bideford
Devon
EX39 2HW

+44 (0)1237 425030

Reference: 34577073

Request a viewing for this property

Simply fill out the form below or alternatively call us on 020 7839 0888

* Mandatory fields