5 Bedroom Detached
£1,050,000
Launceston

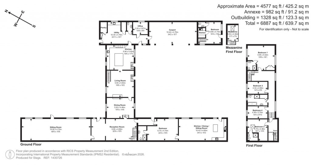
Floorplans For Launceston Floorplans For Launceston
EPC Graph for Launceston

Description


A truly exceptional barn with approximately 5,500 sqft of internal accommodation, ideal for dual or multi-generational living with income generation potential, set in 1.6 acres, just 2 miles from Launceston. Stunning detached barn, Luxury, single storey very spacious annexe, Wealth of character features, Oil fired central heating, Kitchen with oil-fired Aga, South facing, sheltered courtyard, Triple open garaging, Separate studio, ideal work from home office. Freehold, Council Tax Band: F, EPC Band: D.

Situation - The property occupies a wonderfully private semi-rural setting within approximately 1.63 acres of level gardens and grounds, forming part of a small and exclusive cluster of just three homes, known as Lower Bamham. Despite its seclusion, the property is conveniently positioned approximately 2 miles from the historic town of Launceston, renowned for its medieval castle and comprehensive range of amenities. The popular village of Lifton lies some 3 miles distant and offers day-to-day facilities including a farm shop and restaurant, primary school, post office/shop and public houses. Further facilities can be found in the market town of Tavistock. The A30 dual carriageway is readily accessible, located about 1 mile away by road, providing excellent links across the region and onwards to the M5 at Exeter and its international airport.

Description - Set within beautifully maintained grounds, this magnificent and substantial detached stone barn conversion offers an exceptional standard of living. Constructed of attractive stone elevations beneath a slate roof, with solid wood doors and windows, the property immediately impresses on approach. Owning the majority of the shared, sweeping entrance driveway in, leading into its own drive, bound by wrought iron railings and granite posts - this driveway leads to the beautiful brick paved courtyard set to the rear. The original conversion was completed to an exacting standard and offers extensive and flexible accommodation ideally suited to multi-generational living, whilst also presenting exciting potential for income generation, subject to any necessary consents.

Accommodation - The accommodation is both generous and adaptable, filled with an abundance of natural light and arranged to suit a variety of living arrangements and boasts around 5,500 sq ft of internal space. On the ground floor of the main residence, there is a well-appointed, dual-aspect kitchen/dining room featuring a central island, oil-fired Aga with four ovens, two hot plates and a warming plate, a tiled floor, and ample space for a dining table. The living room benefits from a 'Woodwarm' stove set within a stone fireplace, while both it and the formal dining room feature wooden floors that add character.

From the living room, stairs lead to a light-filled landing, with a large picture window, providing access to four double bedrooms (2 ensuite) and the main family bathroom, with an additional staircase offering further flexibility. One of the standout features on this level is the impressive principal bedroom, which is exceptionally spacious and benefits from a high-quality ensuite, built-in wardrobe, and exposed A-frame beams-a design feature that continues throughout the barn. Completing the ground floor is a useful utility room with slate flooring, seating, and a work surface, along with space for a cooker and a Belfast sink. Located off this sizeable room is a meter cupboard, cold-shelf pantry, separate WC, boiler cupboard, and a study, with doors opening to the garaging, front drive, and the stunning courtyard. Windows are high quality timber double glazed and there is oil fired central heating .

The luxury annexe is by no means secondary. Offering potential to create two annexes or holiday lets (subject to consent), it is currently arranged with a large entrance hall, an exceptionally spacious sitting room with exposed A-frames, a very large double bedroom with a fully tiled en suite, and a generous kitchen/dining/living room fitted with modern units, marble-effect work surfaces, a central island, integral appliances, and practical contemporary flooring. There is an additional staircase leading to one of the first floor bedrooms with an ensuite. There is the possibility of adding another 2 bedroom annexe in the current annexes sitting room.

The barn also benefits from excellent work-from-home facilities, including a separate external suite with a mezzanine level, kitchenette, and separate WC. This studio could be adapted into an Airbnb, subject to the addition of a shower and any necessary consents.

Overall, the layout provides an ideal balance of open-plan living and private spaces, perfectly suited to a large or extended family, or for buyers seeking income-generating potential to complement their lifestyle.

Outside - The property is set within approximately 1.63 acres of delightful gardens and grounds, enjoying a high degree of privacy with views over the neighbouring fields. The approach is via a driveway that leads through well-tended grounds, where mature planting, areas of lawn and thoughtfully landscaped features create an attractive environment. This leads to the courtyard and the open triple garaging set to the rear. The courtyard enjoys a sheltered, southerly aspect, and has numerous sitting areas to soak up the sunshine and when the Wysteria is in bloom, it creates a gorgeous backdrop. Most of the gardens are to laid to lawn, with a kitchen garden area, greenhouse and 3 raised beds, an all weather paddock, ideal for dog agility, with an adjacent stable block and a timber outbuilding forming a garage/workshop and a separate log store.

Services - Main electricity, water and private drainage via septic tank. Oil fired central heating. Broadband availability: Ultrafast and Standard ADSL, Mobile signal: voice and data available (Ofcom). Please note the agents have not inspected or tested these services. The property is sold subject to all local authority charges.

Viewing - Strictly by prior appointment with the vendors' appointed agents, Stags.

Directions - From Launceston proceed towards Lifton along the A388. Just before reaching the rugby ground, the private driveway to The Barns will be found on the right hand side, before the road bears to the left.

What3words.com - ///sketching.gasping.former

Stags

Stags

Kensey House
18 Western Road
Launceston
Cornwall
PL15 7AS

+44 (0)1566 774999

Reference: 34572929

Request a viewing for this property

Simply fill out the form below or alternatively call us on 020 7839 0888

* Mandatory fields