4 Bedroom Detached
£775,000
Whitchurch Canonicorum, Bridport

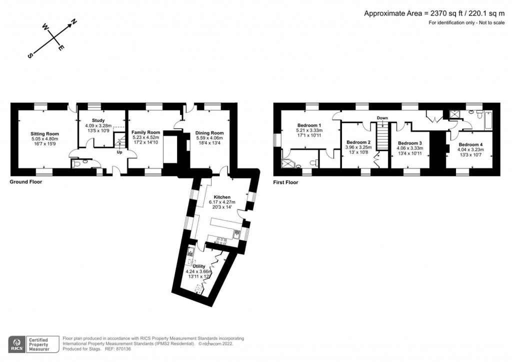
Floorplans For Whitchurch Canonicorum, Bridport

Description


This early 16th century period Dorset longhouse has a wealth of character and charm being the village centrepiece opposite the 'Cathedral of the Vale' church and is one of the oldest houses in the village. EPC: Exempt - Grade II Listed

The Property - Berehayes Farmhouse is situated in coastal West Dorset in a picturesque village setting only 2 miles from the World Heritage Jurassic Coast in an Area of Outstanding Natural Beauty

This early 16th century period Dorset longhouse has a wealth of character and charm being the village centrepiece opposite the 'Cathedral of the Vale' church and is one of the oldest houses in the village. The house is Grade II listed and built of stone under a thatched roof and is believed to be built in 1506. The farmhouse provides spacious family accommodation and retains many features including the original arched front door, inglenook fireplace with bread oven, window seats, window shutters, flagstone floors and beamed ceilings.
The accommodation in brief comprises, hall, cloakroom with WC, family room, study (or 5th bedroom), sitting room, dining room, kitchen/breakfast room (gas hob/electric oven) and utility room. On the first floor is a landing, four spacious bedrooms, one with en-suite shower room and a recently refurbished family bathroom with roll top bath.
Outside, to the rear of the farmhouse is a delightful, secluded southerly facing garden mainly laid to lawn with patio areas and a shed. Running along the edge of the garden is a small stream. To the side of the garden is a greenhouse, vegetable patch and separate lawned area with a duck pond.
Planning permission was granted (now lapsed) to connect the attached cottage, Cider Barn which could then be used as a separate annex . This can be reinstated, Guide price £190,000 further details of Cider Barn are shown separately on Stags web.
Although the Farmhouse is next to a courtyard of 8 cottages you wouldn't know it. From the moment you enter the gate to its private car park at the rear to the moment you reach the back door there is complete privacy. The same applies to the gardens and from inside the house.

Access To Berehayes Spa - The pool complex has an indoor pool, Jacuzzi/hot tub and sauna and is mainly open during summer holidays. New owners will be able to book a day pass.

A recent Thatch Report shows that it was replaced 10 years ago using water reed which can last up to 40 years. Full report available on request.
Access for private parking for 4/5 cars is via a shared driveway into a gated area with carport which could be converted to a garage or one could be built in the garden, both subject to obtaining planning permissions.

Services - Mains electricity and water is connected to the farmhouse.
Oil fired central heating. LPG gas to kitchen hob
Private Sewerage Treatment Plant is shared with 8 others, which greatly decreases costs . It is underground in the car park and meets current standards with an annual permit from the Environment Agency. The proportional costs for the Farmhouse for maintenance & repair costs are £1100 p.a. paid through the management company which also includes water.

Broadband - Standard up to 21Mbps.
Mobile phone service providers available are O2 and Vodafone for voice and data services inside and outside in addition to EE and Three for voice and data services outside.
(Broadband and mobile phone information taken from Ofcom website Results are predictions and not a guarantee. Actual services available may be different from results and may be affected by network outages).

Outgoings - Farmhouse - Council Tax Band G
Vacant possession, no onward chain.

Location - In a peaceful country setting in the centre of the pretty village of Whitchurch Canonicorum, which lies on the southern side of the beautiful Marshwood Vale. It has a thriving community and facilities include a church, a village hall and a friendly pub with great food. The surrounding countryside is designated as an Area of Outstanding Natural Beauty (AONB). The stunning World Heritage Coast and Golden Cap Estate are both within only a few miles.

The thriving market town of Bridport, the delightful coastal village of Charmouth and historic coastal town of Lyme Regis are all within easy reach.

The village has a pre-school and there are excellent primary and secondary schools very nearby, including Colyton Grammar School.
Services - Mains electricity and water. Oil heating.

Stags

Stags

29 South Street
Bridport
Dorset
DT6 4NR

+44 (0)1308 428000

Reference: 34568043

Request a viewing for this property

Simply fill out the form below or alternatively call us on 020 7839 0888

* Mandatory fields