5 Bedroom Plot
£200,000
Pine Ridge, Lyme Regis

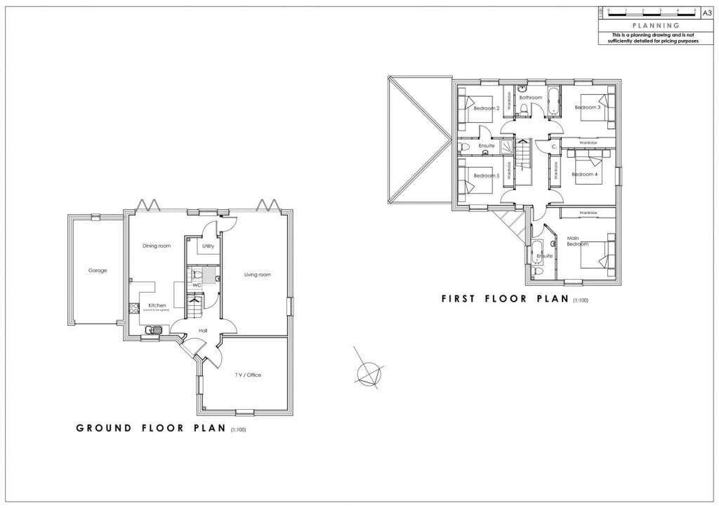
Floorplans For Pine Ridge, Lyme Regis

Description


A building plot that has planning permission for a substantial five bedroom detached house situated in an elevated position in Lyme Regis.

The Plot - This plot presents an unusual opportunity to purchase a plot that has planning permission for a substantial five bedroom detached house situated in an elevated position in Lyme Regis. The plot lies on the edge of the Monmouth Park development.

The proposed property briefly comprises of a kitchen/dining room, utility, living room, office and cloakroom to the ground floor, and five double bedrooms, two with ensuite shower rooms, and a family bathroom to the first floor along with parking and an attached garage.

Planning application number: P/FUL/2021/00704.

Situation - Monmouth Park is a stunning collection of traditionally designed homes built to a superior standard with spacious accommodation in the popular coastal town of Lyme Regis. A short drive or a fifteen-minute walk will take you into the centre of Lyme Regis, a picturesque town noted for its attractive period buildings, the famous centuries-old Cobb and harbour. In the town is an excellent selection of facilities including many independent shops and a number of restaurants and hotels, together with various museums. Moments from the high street is the charming award-winning sandy beach which is ideal for families. The harbour is popular with anglers and those keen on deep sea fishing trips, and the sailing and power boat clubs are also nearby. The market town of Axminster, approximately 6 miles distant, provides a good range of day to day amenities, as well as a vibrant market every Thursday and a mainline train service to London Waterloo.

Services - It is understood that there will be ready connections on site for electricity, mains drainage, water, gas and telephone/broadband.

Directions - What3Words///welfare.daredevil.brink

Symonds and Sampson

Symonds & Sampson

23 South Street
Bridport
Dorset
DT6 3NU

+44 (0)1308 422092

Reference: 34558497

Request a viewing for this property

Simply fill out the form below or alternatively call us on 020 7839 0888

* Mandatory fields