3 Bedroom Detached
£730,000
Whitestone

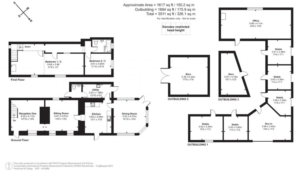
Floorplans For Whitestone Floorplans For Whitestone Floorplans For Whitestone Floorplans For Whitestone
EPC Graph for Whitestone

Description


An idyllic smallholding extending to just over 8.18 acres with stables and outbuildings - additional 9.63 acres of land available

Situation - Situated in a peaceful and picturesque location a few miles from Exeter, Hornbeam Farm offers an exceptional opportunity for those seeking a rural lifestyle with equestrian, smallholding, or environmental interests. Nestled in the heart of the Mid Devon countryside, Hornbeam Farm enjoys a tranquil setting surrounded by gently rolling hills, pockets of woodland, and far-reaching rural views. The property combines the serenity of country living with convenient access to the nearby cathedral city of Exeter, a University town which provides an extensive range of business, cultural, and leisure amenities, as well as excellent schooling, rail connections to London, and access to the M5 motorway and Exeter International Airport.

Description - Believed to date from the early 1800s, the cottage has been extensively and sympathetically refurbished, seamlessly blending period charm with modern comfort. Constructed of traditional materials under a new natural slate roof, the property retains a wealth of character features including inglenook fireplaces, exposed beams, and stripped floorboards, complemented by Brazilian slate flooring throughout the ground floor. The current owner has carried out a comprehensive programme of improvement, including insulation, rewiring with LED lighting and USB-C sockets, new bathroom, upgraded heating with programmable Haverland radiators, and a new sewage treatment system. The works also accommodate a future solar array installation, providing the potential for energy efficiency and export to the grid.

Accommodation - The welcoming entrance opens into a charming reception room with a feature inglenook fireplace, oak bressummer, and views across the surrounding countryside. The sitting room enjoys dual-aspect windows, including a stained-glass feature, and a further inglenook with bread oven, a warm and inviting atmosphere. The kitchen has a number of freestanding units, Belfast sink, and a range cooker, while still leaving scope for the new purchaser to create their own layout while adjacent is the utility/boot room with a second Belfast sink, pressurised immersion tank, and cloakroom. A delightful sunroom with a thermal roof provides an ideal year-round dining space, overlooking the gardens and land beyond. Upstairs, the first floor is beautifully appointed, with one large open bedroom suite (formerly two rooms) featuring a woodburning stove, dual windows and countryside views, a further double bedroom, and a newly fitted bathroom with elegant Crosswater brass fittings, L-shaped bath, and valley views.

Outbuildings And Land - Hornbeam extends to approximately 8.18 acres, comprising paddocks, pasture, and woodland areas. Considerable investment has been made in the new stable block including a very large workshop/office and tack room with woodburning stove, additional barn, stock fencing, gates, field shelters, and water infrastructure. The garden surrounding the house are thoughtfully landscaped with a variety of trees, shrubs, and seasonal planting, creating a peaceful and private setting that will appeal to gardeners and nature enthusiasts alike.

Additional land is available of 9.63 acres with field shelters and water infrastructure - supply from Hornbeam Farm.

Services - Mains electricity and water are connected.
Drainage is provided by a newly installed sewage treatment plant.
The property has been hardwired with smoke, heat, and carbon monoxide alarms for additional safety and peace of mind.
Council Tax: Band D - Teignbridge District Council

Agent's Note - Restrictive Covenants - please ask the agent for more information

Directions - What3words:///friday.applauded.butterfly

Stags

Stags

21 Southernhay West
Exeter
Devon
EX1 1PR

+44 (0)1392 255202

Reference: 34558284

Request a viewing for this property

Simply fill out the form below or alternatively call us on 020 7839 0888

* Mandatory fields