4 Bedroom Detached
£595,000
Battleton, Dulverton

Floorplans For Battleton, Dulverton Floorplans For Battleton, Dulverton
EPC Graph for Battleton, Dulverton

Description


A substantial detached residence enjoying far reaching rural views with gardens, parking and garage on the edge of the town. EPC Band E.

Situation - The property is situated in Battleton on the edge of Dulverton with lovely far reaching views to the countryside beyond. The property is within easy walking distance of the amenities of central Dulverton town.

Dulverton nestles in the Barle River valley enjoying many riverside walks and is known as 'The Gateway to Exmoor'. The town has a strong community and provides good day-to-day shopping together with three churches, post office, chemist, medical, dental and veterinary surgeries and a well-supported town hall. In addition, there are good restaurants and recreational facilities including squash courts, all-weather tennis courts, football and cricket pitches.

Tiverton (13 miles) offers further shopping and entertainment facilities and the well-known Blundells School, together with easy access to the M5 and mainline railway station at Tiverton Parkway. The University and Cathedral city of Exeter (29 miles south) boasts a wealth of shopping, recreational and leisure facilities. To the east of the city, Exeter Airport offers national and international flights.

Situated within the Exmoor National Park, the property is ideally located to take advantage of the extensive walking. The North Devon coastline has an excellent range of beaches from which to enjoy numerous water sports, whilst Wimbleball Lake is just 6 miles away.

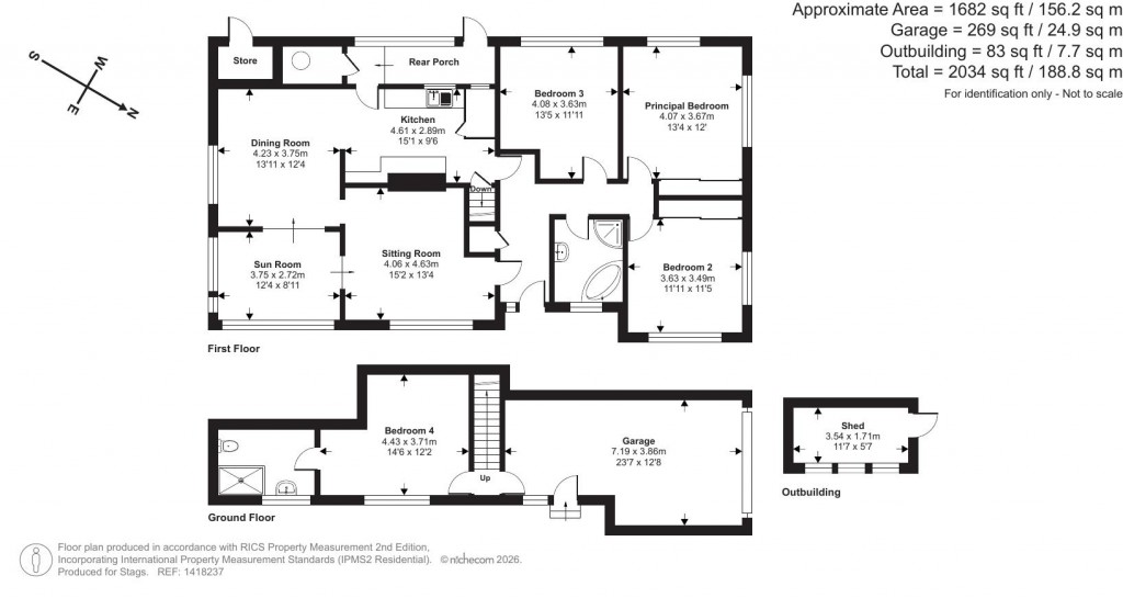
Description - Situated in an elevated position this detached four bedroom home enjoys lovely far reaching views. Dulverton's shops and amenities are a short walk, whilst being close to wonderful riverside and woodland walks, which lead up on to the moorland. The flexible accommodation features a bright, light-filled open plan sitting /dining room sited on the first floor to take advantage of the views. It is complemented by its generous garden and ample parking.

Accommodation - Entering the property, the hallway leads through to the sitting room, a generous and bright space with a large window enjoying stunning views across Dulverton and the Barle Valley. A doorway also connects to the kitchen which is well fitted with a range of wall and base units and a larder. Leading off the kitchen is the dining area with lovely views over the garden and plenty of room for a large table. The sun room is a lovely space to sit and enjoy the views over Dulverton and also the garden. A door from the kitchen leads to a useful rear porch with store and access to the garden. Also on this level are three double bedrooms and the family bathroom

Stairs lead down to the ground floor which comprises of a double bedroom with en suite shower room. With internal access to the garage this level could be converted to provide an annex subject to any necessary permissions required.

Outside - The property is approached over a tarmac driveway providing parking for several cars and access to the large garage. The neighbouring cottage has access to their garage over the driveway. The mature gardens which surround the house provide ample outdoor space and enjoy wonderful views over the surrounding countryside. They are mainly laid to lawn with a variety of trees and shrubs with a decked area from which to sit and enjoy the outdoor life.

Services - Mains water and electricity, private drainage via a septic tank. Type and compliance with General Binding Rules is unknown. Purchasers to satisfy themselves with their own inspection. oil fired central heating, Somerset West & Taunton (west Somerset) Council Tax Band G.

Viewing - Strictly via the agent please

Directions - From the centre of Dulverton proceed out of the town towards Tiverton, over the bridge and after a short distance the property can be found on the right hand side.

What3words - ///dote.quickly.stadium

Stags

Stags

13 Fore Street
Dulverton
Somerset
TA22 9EX

+44 (0)1398 323174

Reference: 34557998

Request a viewing for this property

Simply fill out the form below or alternatively call us on 020 7839 0888

* Mandatory fields