2 Bedroom Semi-Detached
£235,000
Legion Way, Okehampton

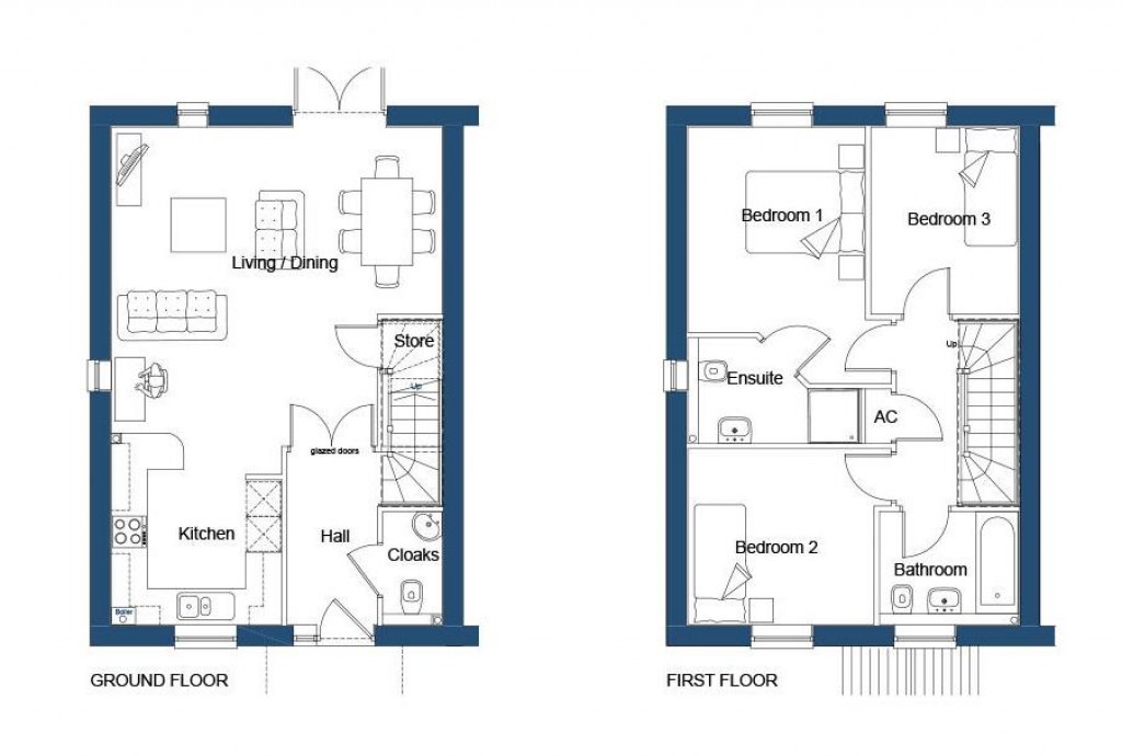
Floorplans For Legion Way, Okehampton

Description


Coming Soon - Two bedroom new build on the edge of Okehampton.

Situation - Abbeyford Vale is a prime modern development built by Adpad (Okehampton) Ltd, which can be found towards the north eastern edge of the town, approximately 1 mile distant. The properties are well situated, being within easy travelling distance of the A30 dual carriageway. Okehampton Town itself, has an excellent range of shops and supermarkets including a Waitrose, doctors surgery and dentist. There is schooling from infant (new Primary School within a short walk) to A-Level standard and numerous sports and leisure facilities including cinema, leisure centre and swimming pool in the attractive setting of Simmons Park. The A30 dual carriageway is easily accessible providing a direct link west into Cornwall or east to the cathedral and University City of Exeter with its M5 motorway, mainline rail and international air connections. The newly opened trainline to Exeter and beyond lies on the edge of the town, where you can also access the Granite Cycle Way and the beautiful expanse of Dartmoor.

Description - A selection of newly constructed, two bedroom homes , located on the edge of Okehampton. The properties offer full double glazing and gas fired central heating, together with the benefit of a 10 year ICW Warranty.

Incentives - Incentives are available on selected plots. Please contact Stags for further details

Services - Mains: Water, electricity, and sewerage. Air source heat pump
Broadband Coverage: Standard, Superfast and Ultrafast available (Ofcom)
Mobile Coverage: Indoor EE and Three likely. Outdoor. All major providers likely outdoor.

Directions - From the A30 main exit for Okehampton follow the main B3260 into Okehampton. After approx. 1.6 miles turn right at the traffic lights onto Barton Road (B3215 Crediton Road) Continue on this road for 0.7 of a mile and look out for the Abbeyford Vale development on the left hand side just before leaving the town.

Agent's Note - Due to different build stages, the internal photos used are from rendered models of the finished plots.
A detailed specification is available upon request.
Ready September 2026

Stags

Stags

11 Charter Place
Okehampton
Devon
EX20 1HN

+44 (0)1837 659420

Reference: 34557900

Request a viewing for this property

Simply fill out the form below or alternatively call us on 020 7839 0888

* Mandatory fields