1 Bedroom Semi-Detached
£225,000
Seaview, Isle of Wight

Floorplans For Seaview, Isle of Wight Floorplans For Seaview, Isle of Wight

Description


An excellent opportunity to purchase part of this historic building in the centre of Seaview Village with planning approval to convert into a residential property and potential for use as a studio, office, storage or treatment room.

Occupying a convenient position in the heart of Seaview village this beautiful old chapel was originally constructed in 1854 and is now being offered for sale or rent with the benefit of drawings and planning approval for conversion into separate residential dwellings (Class C3) but could also be perfect for an office, artists studio, shop or therapy suite or just for additional storage.

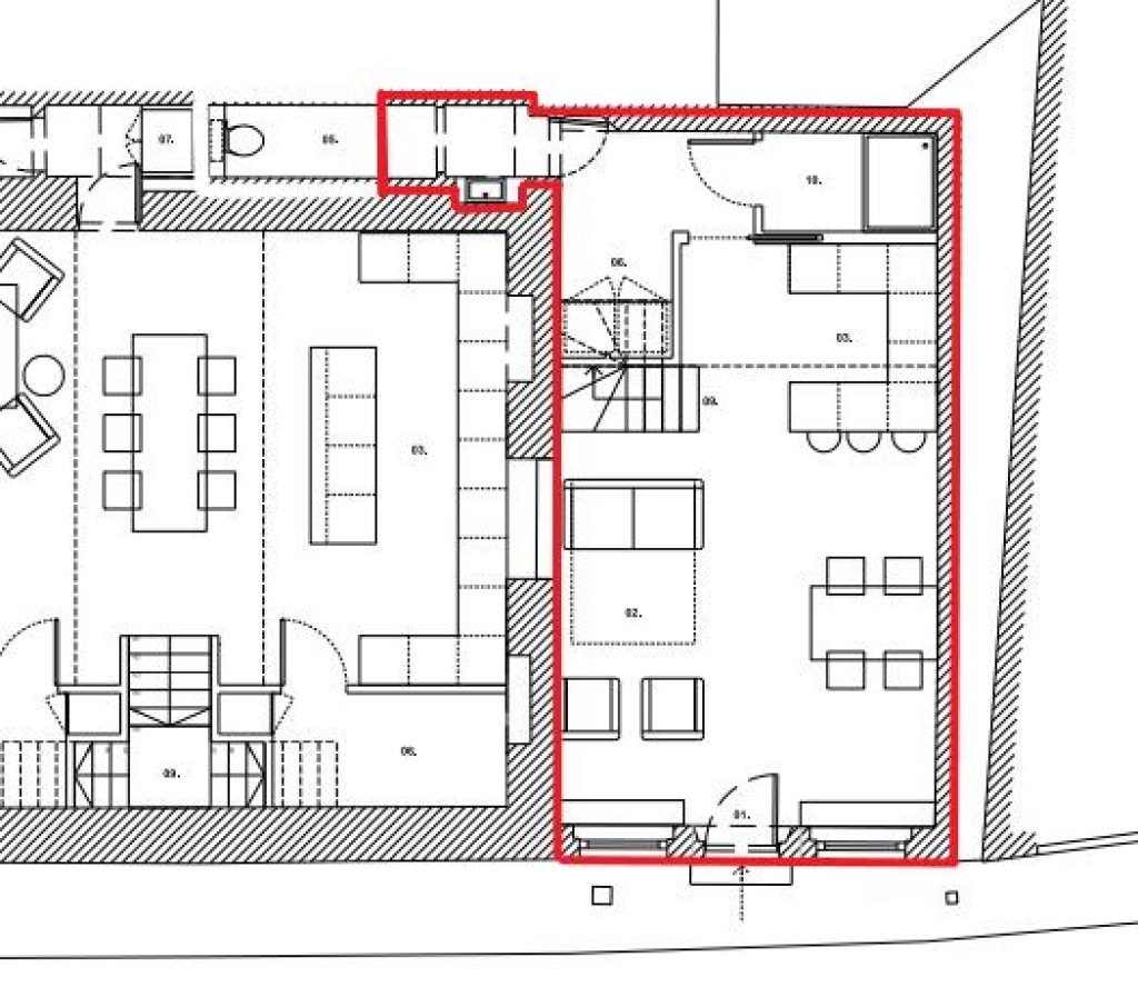
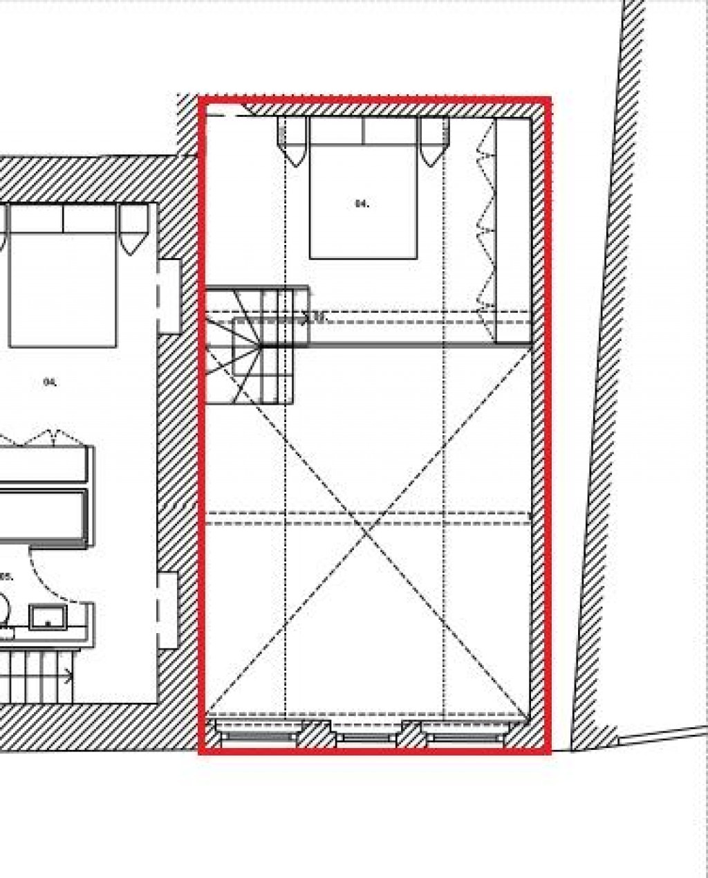
Little Beulah
Occupying a quiet position on the one-way Steyne Road, Little Beulah has beautiful charachter with vaulted ciliengs and kitchenette and W.C. to the rear and offers a desirable open plan studio measuring 50m2 of gross internal area. The open plan living space could incorporate a sitting room, kitchen, and bedroom space beneath vaulted ceilings, currently open to the rafters with a shower room, W.C. and dressing area located to the rear.

Planning permission 23/00017/FUL was achieved on 05/06/2023 for conversion from its current usage as a chapel into residential homes. A community contribution payment to the local council as part of the section 106 planning approval is payable on completion of the conversion or sale to the occupant.

Location
Conveniently situated a short walk from the village centre, beach and sailing club. The picturesque seaside village of Seaview offers a prestigious Yacht Club, shops, restaurants and coastal paths with walks to the sandy beaches of Puckpool and Ryde and along to the idyllic Priory Bay. There are also high-speed passenger ferry and hovercraft services to Portsmouth available from the town of Ryde approximately 3 miles away.

Services and Tenure
There is currently no gas connected but is available in the street, drainage, electricity and water available. The property is offered with the freehold.

Access and Parking
Viewings by appointment. On road parking is available on Church Road and Steyne Road outside of the properties.

Post Code
PO34 5EN

Important Notice
1. Particulars: These particulars are not an offer or contract, nor part of one. You should not rely on statements by Spence Willard in the particulars or by word of mouth or in writing ("information") as being factually accurate about the property, its condition or its value. Neither Spence Willard nor any joint agent has any authority to make any representations about the property, and accordingly any information given is entirely without responsibility on the part of the agents, seller(s) or lessor(s). 2. Photos etc: The photographs show only certain parts of the property as they appeared at the time they were taken. Areas, measurements and distances given are approximate only. 3. Regulations etc: Any reference to alterations to, or use of, any part of the property does not mean that any necessary planning, building regulations or other consent has been obtained. A buyer or lessee must find out by inspection or in other ways that these matters have been properly dealt with and that all information is correct. 4. VAT: The VAT position relating to the property may change without notice.

Spence Willard

Spence Willard

Sherbourne Street
Bembridge
Isle of Wight
PO35 5SB

+44 (0)1983 873000

Reference: 34549022

Request a viewing for this property

Simply fill out the form below or alternatively call us on 020 7839 0888

* Mandatory fields