4 Bedroom Town House
£525,000
Douglas Court, Ely

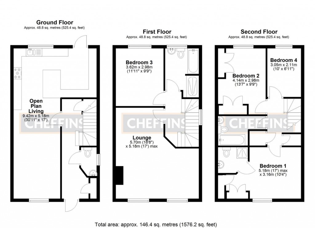
Floorplans For Douglas Court, Ely
EPC Graph for Douglas Court, Ely

Description


A four bedroomed end terrace townhouse situated in a most attractive position within walking distance of the city centre and convenient for the country park, river and railway station.

Comprises on the ground floor, entrance hall, cloakroom and spacious open plan kitchen/dining/living room. On the first floor is the lounge, a double bedroom and family bathroom whilst on the second floor is the master bedroom with ensuite, two further bedrooms and another bathroom.

Outside is a low maintenance rear garden and the front has a pleasant outlook toward mature trees and a cartlodge and parking.

Entrance Hall - With door to front aspect, stairs to first floor, radiator.

Cloakroom - With low level WC, wash basin, double glazed window to side, radiator.

Kitchen/Dining/Living Room - With a range of matching wall and base level storage units and drawers together with oak worktops, sink, space for range oven and extractor canopy, plumbing for washing machine and dishwasher, cupboard housing gas fired boiler, double glazed windows to front and rear and door to rear garden, oak flooring, radiator.

First Floor Landing - With stairs to second floor.

Lounge - With fitted gas fire with marble hearth, two double glazed windows to front with attractive outlook, radiator.

Bedroom 3 - With double glazed window to rear, radiator.

Bathroom - With suite comprising low level WC, panelled bath, wash basin, shower cubicle, double glazed window to rear, radiator.

Second Floor Landing - With double glazed window on stairs to side giving a view of the Cathedral, access to loft, airing cupboard.

Bedroom 1 - With double glazed window to front, fitted wardrobes, radiator.

Ensuite - With low level WC, wash basin, shower cubicle, radiator.

Bedroom 2 - With double glazed window to rear giving an attractive view, fitted wardrobes, radiator.

Bedroom 4 - With window to rear giving an attractive view, radiator.

Bathroom - With suite comprising low level WC, panelled bath, wash basin, radiator.

Outside - The front of the property has an attractive outlook towards a grassed area and mature Horse Chestnut trees fronting Prickwillow Road, A driveway shared with neighbouring properties leads to parking allocated to number 1 and a cartlodge providing undercover parking. Pedestrian access leads to an enclosed rear garden which is mainly paved together with a large storage shed.

Agent Notes - We understand there is annual service charge - currently in the sum of £371 in respect of the upkeep of all communal areas

Viewing Arrangements - Strictly by appointment with the Agents.

Cheffins

Cheffins

25 Market Place
Ely
Cambridgeshire
CB7 4NP

+44 (0)1353 654900

Reference: 34544325

Request a viewing for this property

Simply fill out the form below or alternatively call us on 020 7839 0888

* Mandatory fields