2 Bedroom Terraced
£284,995
Encombe Street, Plymstock, Plymouth

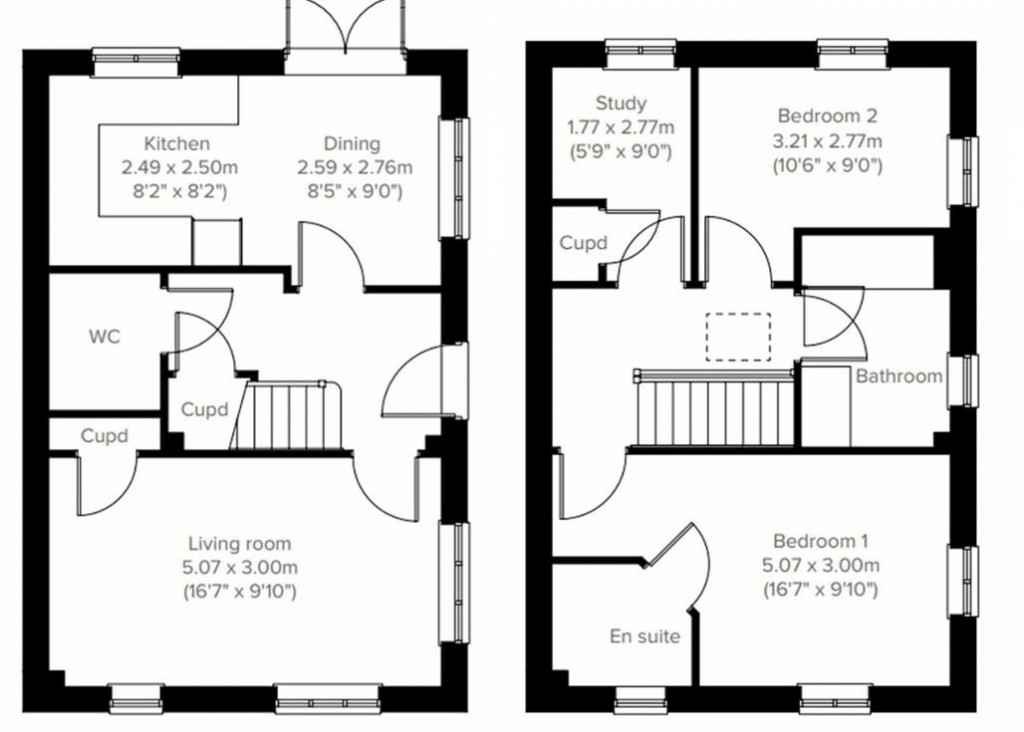
Floorplans For Encombe Street, Plymstock, Plymouth

Description


The Deepdale, a 2 bedroom end terrace home offers a balanced feel with flexible living options to suit your needs. Freehold. Council tax band TBC. EPC TBC.

Situation - The new homes at Saltram Meadow in Plymstock give you a little bit of everything - just minutes from Plymouth city centre, close to the coast and with scenic countryside all around. Whether you're starting out or moving up, there's something for everyone, with energy-efficient one and two-bedroom apartments and two, three and four-bedroom homes designed for modern family living.

Description - The Deepdale has a lovely balanced feel, created by a central entrance hall and generous living space to either side. It's much the same upstairs, with bedroom one to one side of the landing, and two bedrooms on the other side. If two bedrooms are plenty for you, the third, smaller room, would make a great home office and a great option.

Outside - This home benefits from parking for 2 cars and a private rear garden.

Agent Notes - Annual service charge will be payable.
Some images may be CGI. Internal photos are provided to illustrate the high-quality finish and are taken from a similar property.

Viewings - Please call the Stags Plymouth office on 01752 223933.

Directions - Exit the Devon Expressway (A38) at the junction for Plymouth City Centre onto Plymouth Road and then continue along Embankment Road until you reach the left turning signposted Faraday Mill Business Park. Go over the Laira Bridge and onto Billacombe Road until you reach the left turning for Encombe Street where you will find Saltram Meadow.

Stags

Stags

Plym House, 3 Long Bridge Road
Plymouth
Devon
PL6 8LT

+44 (0)1752 223933

Reference: 34543701

Request a viewing for this property

Simply fill out the form below or alternatively call us on 020 7839 0888

* Mandatory fields