Farm
£245,000
Wellow, Isle of Wight

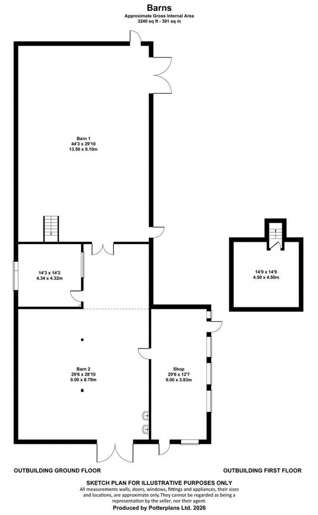
Floorplans For Wellow, Isle of Wight

Description


A good quality modern timber framed barn located around 1.5 miles from the historic harbourside town of Yarmouth and is available as a whole or in two lots, with power, light, plumbing and concrete flooring.

Available to the market for the first time, is this quality barn which benefits from a separate space with a shop and stairs to a first-floor storage room. The barn(s) would suit a variety of different uses and are located in the centre of this sought after village with excellent access from the main road.

The barn is available as a whole or in two lots with provision for a separating wall to divide the two. Please look at the floor plan, which delineates Barn 1 & Barn 2 - currently it is just one detached barn. There will be a strip of land to the northern side of the barn to allow for plenty of parking.

The property is located in this sought after and rural village of Wellow, which is located a short drive from Yarmouth where there are two ferry companies and a good range of amenities and services. The village of Shalfleet is around 5 minutes' drive, and has a popular village school, shop, church, pub and access to the Newtown Nature Reserve. From the barn to the south there is a fine aspect over attractive rural fields with The Downs (hills) beyond.

The property would suit a variety of different uses, subject to planning. It is currently used for storage of agricultural equipment, a retail premises and some livestock are housed at one end. There are several pedestrian access doors into the building with two large doors - perfect for bulky trailered items or tractors.

The building is timber framed and has been sympathetically timber clad with several skylight roofing panels allowing plenty of natural light into the building. There are two storage rooms in the centre with the ground floor room benefitting from south facing double glazed windows. The barn will have parking immediately to the south and a section of land on the eastern side, which could also be used for parking.

Note:
Unless otherwise, agreed, the sellers would require use of the barn until September 2026.

The sale will be subject to a residential overage clause of 20% over 30 years

Tenure Freehold, with a right of way from Wellow Main Road.

Services Water, light and basin drainage. There are 3 wash hand basins in the barn.

Postcode PO41 0SZ

Viewings Strictly by prior appointment with the sole selling agents, Spence Willard.

Important Notice
1. Particulars: These particulars are not an offer or contract, nor part of one. You should not rely on statements by Spence Willard in the particulars or by word of mouth or in writing ("information") as being factually accurate about the property, its condition or its value. Neither Spence Willard nor any joint agent has any authority to make any representations about the property, and accordingly any information given is entirely without responsibility on the part of the agents, seller(s) or lessor(s). 2. Photos etc.: The photographs show only certain parts of the property as they appeared at the time they were taken. Areas, measurements and distances given are approximate only. 3. Regulations etc.: Any reference to alterations to, or use of, any part of the property does not mean that any necessary planning, building regulations or other consent has been obtained. A buyer or lessee must find out by inspection or in other ways that these matters have been properly dealt with and that all information is correct. 4. VAT: The VAT position relating to the property may change without notice.

Spence Willard

Spence Willard

The Square
Yarmouth
Isle of Wight
PO41 0NP

+44 (0)1983 761005

Reference: 34541116

Request a viewing for this property

Simply fill out the form below or alternatively call us on 020 7839 0888

* Mandatory fields