5 Bedroom Detached
£700,000
Newbiggen Street, Thaxted

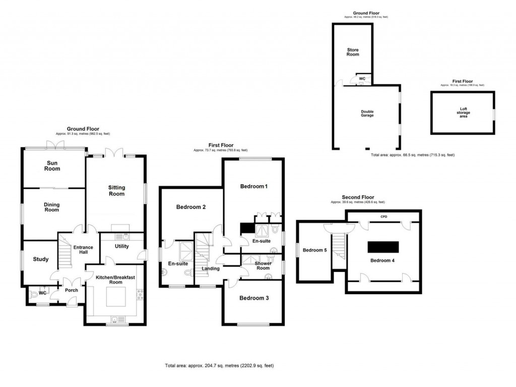
Floorplans For Newbiggen Street, Thaxted
EPC Graph for Newbiggen Street, Thaxted

Description


A substantial five bedroom home situated in a prominent position within the well-served town of Thaxted. The property offers extensive and well-presented living accommodation in excess of 2,200 sqft, together with a west facing rear garden, ample off-street paring and a double garage with a workshop and annexe potential.

Ground Floor -

Entrance Porch - 1.79m x 1.4m - Entrance door, double doors to the entrance hall and door to:

Cloakroom - Comprising ceramic wash basin with vanity cupboard beneath, low level WC and obscure double glazed window to the side aspect.

Entrance Hall - 3.5m x 3.03m - Doors to adjoining rooms and staircase rising to the first floor with understairs storage cupboard.

Kitchen/Breakfast Room - 4.08m x 3.99m - Recently refitted with a range of base and eye level units with polished concrete worktops, incorporating central island with breakfast bar, sink unit, five ring gas hob with extractor hood over, electric double oven, full height fridge and freezer, wine cooler and useful corner pantry cupboard. Double glazed window to the front aspect. Opening to:

Utility Room - 3.1m x 2.16m - Fitted with base and eye level units, sink unit, space and plumbing for washing machine and tumble dryer, double glazed window to the side aspect and stable door opening to the side passage.

Study - 3.04m x 2.25m - Double glazed window to the side aspect.

Sitting Room - 4.86m x 3.68m - Double glazed window to the side aspect and double glazed French doors to the rear. Feature fireplace with wood burner.

Dining Room - 4.41m x 3.45m - Double glazed window to the side aspect.

Sun Room - 3.4m x 2.77m - Double glazed windows to the rear and side aspects.

First Floor -

Landing - Doors to adjoining rooms, built-in airing cupboard, triple glazed window to the front aspect and staircase rising to the second floor.

Master Bedroom - 4m x 3.6m - Double glazed window to the rear aspect, fitted wardrobes and door to:

En Suite Shower Room - L-shaped - Comprising corner shower enclosure, low level WC, ceramic wash basin with vanity cupboard beneath and heated towel rail.

Bedroom 2 - 4.37m x 3.6m - Double glazed window to the rear aspect and door to:

En Suite Shower Room - 2.96m x 2m - Comprising shower enclosure with dual shower head, ceramic wash basin, low level WC, heated towel rail and obscure triple glazed window to the side aspect.

Shower Room - 2.82m x 1.8m - Comprising shower enclosure with dual shower head, ceramic wash basin, low level WC and obscure double glazed window to the side aspect.

Bedroom 3 - 4.04m x 2.84m - Triple glazed window to the front aspect.

Second Floor -

Landing. - Doors to adjoining rooms.

Bedroom 4 - 5.05m x 4m - Velux window to the rear aspect and recess storage.

Bedroom 5 - 4.05m x 2.31m - Double glazed window to the side aspect.

Outside - The property enjoys a west facing rear garden with a raised, paved terrace area for al fresco entertaining and a pergola with built-in lighting. The rest of the garden is predominantly laid to lawn with mature beds bordering and a further paved terrace area. There is gated side access to the driveway and garage.

Detached Double Garage - 5.88m x 5.31m - Power and lighting connected, no fitted doors, large eaves storage space and door to:

Workshop - 5.35m x 3.25m - Double glazed window to the rear aspect, power and lighting connected. Door to WC comprising low level WC and wash basin.

Viewings - Strictly by appointment with the Agents.

Cheffins

Cheffins

Hill Street
Saffron Walden
Essex
CB10 1JD

+44 (0)1799 523656

Reference: 34531280

Request a viewing for this property

Simply fill out the form below or alternatively call us on 020 7839 0888

* Mandatory fields