Land
£375,000
Whitestone, Exeter

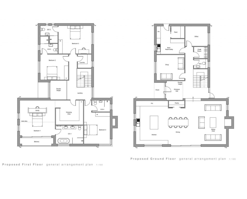
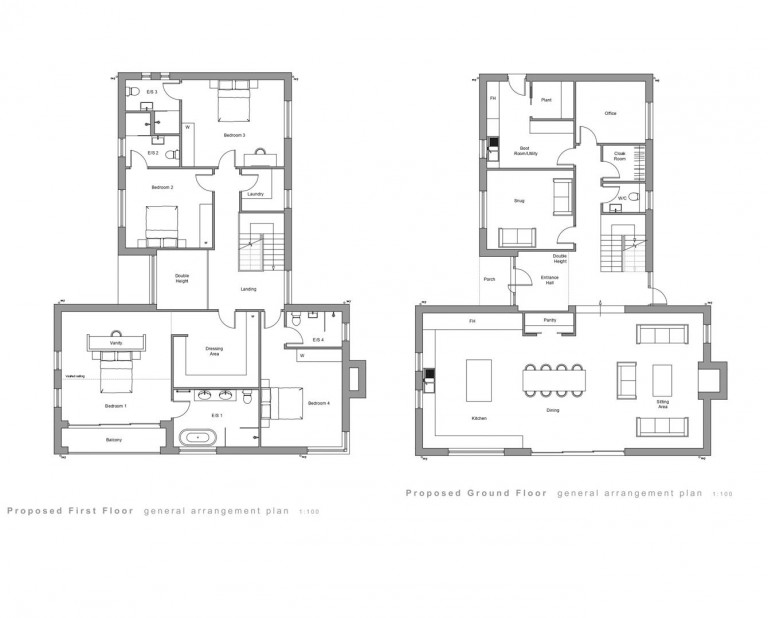
Floorplans For Whitestone, Exeter

Description


A rare opportunity to acquire an agricultural barn with full planning permission for conversion into an impressive residential home, complete with a detached double garage/carport and approx. 2.44 acres

Situation - Hill Farm Barn enjoys a delightful and elevated setting to the west of Exeter, just outside the village of Whitestone, on the edge of the glorious Devon countryside. Its position offers the perfect balance of peaceful rural surroundings while being only 4.6 miles from Exeter city centre. Exeter, the regional capital of the South West, is a thriving hub, offering excellent business facilities alongside an abundance of restaurants, cafés and wine bars. The city also boasts a wide range of leisure and cultural amenities, together with extensive shopping facilities. The development is ideally placed for communications. The M5 at Exeter provides swift links north towards Bristol and London, as well as south via the A38 to Plymouth and the A30 into Cornwall. Rail connections are equally convenient, with regular services from Exeter to London Paddington in just over two hours. For those travelling further afield, Exeter International Airport offers both domestic and international flights.

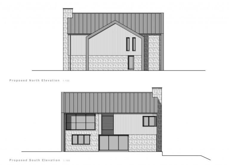
Description - A rare opportunity to acquire an agricultural barn with full planning permission for conversion into an impressive residential home, complete with a detached double garage/carport. The approved scheme provides for the creation of a spacious dwelling of approximately 320 sqm, together with a garage block of around 70 sqm.
This exceptional development occupies its own generous plot extending to approximately 2.44 acres, offering privacy and a delightful rural setting.
Ideal for both custom build developers and self-builders, the site combines seclusion with excellent accessibility, being conveniently located close to Exeter.

Planning Permissions - Originally the development secured prior approval under part 3 Class Q (a) and (b) paragraph W of the GPDO change of use of an agricultural building to a dwelling house. Further details can be found on the Teignbridge planning portal Ref - 23/01001/NPA.

Latterly the owners secured full planning permission for the demolition of the agricultural building for change of use to residential, and construction of a self build detached house with a detached double garage/carport. Further details can be found on the Teignbridge planning portal Ref - 25/01025/FUL.

Cil & Habitat Contribution - A Community Infrastructure Levy (CIL) is due on this development of £64,824.20. There is an exemption from CIL payments for self-builders.

There is a Habitat Mitigation Regulation Contribution of £335.00.

Conditions - A full list of conditions can be found on the Teignbridge planning portal Ref - 25/01025/FUL

Services - Purchasers must satisfy themselves as to the ability to make adequate connections for mains services that may be required. However, we understand that the site has mains electricity located nearby. A sewage treatment plant (STP) and bore hole (water) will need to be installed as part of the development.
The present owners have secured quotes for the provision of services. Please ask the Agents for further information.

Agents Note - The neighbouring property a right of way along the entrance drive. This access will be removed once obtaining permission to build a new access track to their land.

Viewings - By appointment only. Please contact agent for further information.

Directions - What3words - ///putter.eyelid.gossiping

Stags

Stags

21 Southernhay West
Exeter
Devon
EX1 1PR

+44 (0)1392 255202

Reference: 34531113

Request a viewing for this property

Simply fill out the form below or alternatively call us on 020 7839 0888

* Mandatory fields