5 Bedroom Detached
£1,500,000
Harberton, Totnes

Floorplans For Harberton, Totnes Floorplans For Harberton, Totnes

Description


A remarkable Grade II listed former estate stable complex with indoor swimming pool, extensive outbuildings and delightful gardens and grounds of about 3.6 acres including a meadow, set in an idyllic South Hams location close to Totnes. EPC Band: Exempt.

Situation - Dundridge Stables occupies a peaceful rural position on the edge of the highly regarded South Hams village of Harberton, surrounded by unspoilt countryside yet conveniently located for the historic market town of Totnes, approximately two miles away.

Totnes offers an excellent range of independent shops, cafés and restaurants together with a mainline railway station providing regular services to London Paddington. The town is well known for its vibrant community and cultural scene. Harberton itself is a charming village with a parish church and the popular Church House Inn. Footpaths lead directly from the surrounding countryside, including a nearby route down into the village.

The South Devon coastline lies within easy reach, with beautiful beaches and sailing waters at Dartmouth, Salcombe and Bigbury, whilst Dartmoor National Park offers exceptional opportunities for riding, walking and outdoor pursuits.

Description - Dundridge Stables is an exceptional Grade II listed property forming part of the historic Dundridge Estate. The earliest sections date from around 1840, with the principal coach house and stable complex constructed in the late nineteenth century during the ownership of Robert Harvey. Originally serving Dundridge House, the buildings retain an extraordinary wealth of historic character, including the impressive coach house with cobbled floor and original doors, together with beautifully preserved Victorian internal stabling with wrought iron partitions, mangers and saddle racks.

The property has been thoughtfully converted to create a substantial and highly individual home that blends historic architectural detail with modern comfort. The current owners have extensively improved and carefully maintained the property, enhancing its efficiency and functionality while preserving the character and integrity of the original buildings. Later additions include a superb garden room and an impressive indoor swimming pool complex enjoying views across the gardens and surrounding meadow. The result is a distinctive country home offering flexible living space, extensive ancillary buildings and beautiful grounds in a peaceful rural setting.

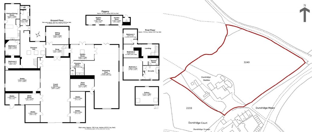
Accommodation - The property is approached through the impressive former coach house, an atmospheric entrance space retaining its original character with cobbled floor, historic coach doors and access to the stable complex. From here a doorway leads into the main house. An entrance hall provides a welcoming introduction to the property, with a wood burner and access to the principal rooms.

From the hall, the accommodation flows into the kitchen/dining room, which forms the heart of the home. The room is fitted with handmade wooden cabinetry and a central island, together with a Rangemaster cooker and wood burning stove, creating a warm and sociable space for everyday living and entertaining. A utility room lies adjoining and provides additional practical storage and workspace.

Continuing through the ground floor are two bedrooms, located within the oldest part of the building which originally served as the tack room and stableman's office. These rooms retain a strong sense of the building's historic origins while providing flexible accommodation for guests or family.

The accommodation then leads through to the snug, a comfortable and intimate sitting area, which in turn opens into the sitting room, a generous reception room enjoying views over the gardens. Above this part of the house is a gallery level, providing a versatile additional space ideal for a study, studio or occasional accommodation.

From the sitting room the property flows naturally into the garden room, a bright and inviting space with extensive glazing overlooking the gardens and grounds. Beyond the garden room lies the indoor swimming pool complex, a particularly impressive feature of the property comprising a spacious pool hall together with a changing room, WC and plant room.

Stairs then rise to the first floor, where the principal bedroom occupies the former hayloft and is a striking room with exposed beams and an en suite bathroom. Two further bedrooms are located on this level and are served by a family shower room.

Outside - The property is approached via a shared private driveway leading to the impressive coach house archway and cobbled courtyard, providing extensive parking and access to the stable buildings, garaging and stores.

The former piggery has been converted to provide a studio or home office, creating a useful workspace separate from the house.

The gardens surrounding the property are attractively landscaped with lawns, established flower beds and mature trees with a large curved terrace adjoining the garden room and swimming pool.

In total the grounds extend to approximately 3.6 acres, including orchard, vegetable garden, wildlife pond and a delightful meadow of around 2 acres, currently managed as a wildflower meadow and bordered by mature woodland.

Services - Private borehole water supply (with access to mains water if required). Private drainage via a treatment plant installed in 2023. Mains electricity. Heating via oil fired boiler with thermal store, supplemented by solar PV panels and a wood burner. Ground source heat pump serving the swimming pool, garden room and changing area.

According to Ofcom, standard broadband is available with predicted download speeds of up to 2 Mbps and upload speeds of up to 0.3 Mbps. Superfast broadband is available with predicted download speeds of up to 54 Mbps and upload speeds of up to 9 Mbps.

According to Ofcom, mobile coverage is likely outdoors from EE, O2 and Vodafone, with both indoor and outdoor coverage predicted from Three.

Directions - From Totnes, take the A381 towards Kingsbridge and Dartmouth. After approximately one mile, take the second right-hand turning signposted Harberton. A short distance along, the entrance to Dundridge Stables will be found on the left-hand side, just after the entrance to the main house. Continue along the drive, where the property will be found on the right.

Stags

Stags

The Granary
Totnes
Devon
TQ9 5GN

+44 (0)1803 865454

Reference: 34525998

Request a viewing for this property

Simply fill out the form below or alternatively call us on 020 7839 0888

* Mandatory fields